
Charing Cross Road, London, WC2H
- PROPERTY TYPE
Land
- SIZE
Ask agent
Description
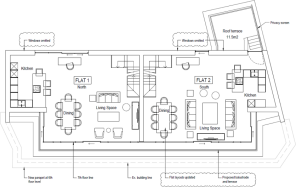
• Planning permission for two triplex penthouse apartments featuring private roof terraces
• Spectacular views over London's West End, The City, and beyond
• The proposed apartments extend to approximately 1,634 sq ft NSA and 1,640 sq ft NSA respectively, the total GIA is 3,400 sq ft
• The Property benefits from excellent transport links and is located approximately 200m from Tottenham Court Road Underground Station - served by the Elizabeth, Central, and Northern Lines. Charing Cross National Railway Station is approximately 0.4 miles away
• Immediate proximity to Covent Garden and Soho, hosting some of the finest hospitality and entertainment establishments in the UK
The site is located on Charing Cross Road in London's vibrant West End, on the border of The City of Westminster and The Borough of Camden. Charing Cross Road and London's bustling West End is bordered by Soho to the west, Covent Garden to the east, Fitzrovia to the north, and Leicester Square to the south. The site's surroundings are synonymous with London's cultural and entertainment scene, featuring theatres, historic architecture and lively streetscapes. The building itself is situated in a prime location on Charing Cross Road, while still offering easy access to green space in The Phoenix Garden and Soho Square Gardens. Quality retail offerings are within walking distance in Covent Garden, while Seven Dials offers a variety of restaurant, café, and shopping experiences. The West End's iconic venues and the world-famous Shaftesbury Avenue are within walking distance, providing unrivalled access to entertainment. Phoenix Theatre is a partial Grade II Listed building, however the proposed development is not subject to listed status, and is situated within the Denmark Street Conservation Area.
Brochures
More DetailsFinal Brochure.pdfCharing Cross Road, London, WC2H
NEAREST STATIONS
Distances are straight line measurements from the centre of the postcode- Tottenham Court Road Station0.1 miles
- Leicester Square Station0.2 miles
- Covent Garden Station0.2 miles
Notes
Disclaimer - Property reference KRD012566985. The information displayed about this property comprises a property advertisement. Rightmove.co.uk makes no warranty as to the accuracy or completeness of the advertisement or any linked or associated information, and Rightmove has no control over the content. This property advertisement does not constitute property particulars. The information is provided and maintained by Knight Frank Land, London. Please contact the selling agent or developer directly to obtain any information which may be available under the terms of The Energy Performance of Buildings (Certificates and Inspections) (England and Wales) Regulations 2007 or the Home Report if in relation to a residential property in Scotland.
Map data ©OpenStreetMap contributors.







