4 bedroom town house for sale
53 Albany Street, Edinburgh, EH1

- PROPERTY TYPE
Town House
- BEDROOMS
4
- BATHROOMS
2
- SIZE
3,493 sq ft
325 sq m
- TENUREDescribes how you own a property. There are different types of tenure - freehold, leasehold, and commonhold.Read more about tenure in our glossary page.
Freehold
Key features
- 4 Bedrooms
- 4 Reception Rooms
- 2 Bathrooms + 2 WC
- Upper Townhouse
- New Town
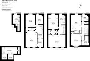
Description
53 Albany Street is a four-bedroom Georgian upper townhouse with a private south-facing garden, located in Edinburgh's New Town.
Entry is via a grand vestibule leading to a hallway with an original stone stair and cupola above, allowing natural light to flood the home.
To the rear of the ground floor is a sitting room with direct access to the south-facing garden via a patio, alongside a utility room. These two spaces could be combined to create a superb kitchen and dining room, subject to the necessary consents.
At the front of the ground floor, an impressive room currently used as an office could serve as a striking living room.
A WC is located centrally on this level.
A study sits quietly in the basement, accessed via stairs from the entrance hallway.
On the first floor, a stunning drawing room at the front of the house features three large windows overlooking Albany Street.
This elegant room showcases Georgian period details, including high ceilings of around 3.5 metres, ornate cornicing, and a marble fireplace.
To the rear is a room presently used as a dining room, which would make an excellent principal bedroom.
Adjacent to this is the current kitchen, which could be converted into an en suite bathroom, subject to consent.
There is also direct access between the drawing room and rear dining room, with generous storage that could be transformed into a walk-in wardrobe for the principal suite.
The 2nd floor has three further bedrooms (1 with en suite) and a family bathroom with separate WC.
The south-facing garden is accessed directly from the ground floor sitting room (could be the kitchen). It stretches all the way to York Lane at the rear.
A mews house / triple garage could be created at the end of the garden.
Please note: The images for this property include CGI generated images for possible reconstruction. These are purely for illustrative purposes to show the potential of the property if reconfigured and redecorated.
EPC Band C
Albany Street is located in Edinburgh's New Town.
Construction began in 1801, and although it was not part of Reid and Sibbald's original extension, it was soon incorporated, with Abercromby Place and Heriot Row laid out on the same axis.
Residents of Albany Street can apply for access to Queen Street Gardens (East) for a small annual fee.
53 Albany Street is a Category A Listed property.
It lies within the catchment areas for St Mary's RC Primary School and Broughton Primary School, with secondary options at St Thomas of Aquin's RC High School or Drummond Community High School.
There are also several highly regarded independent schools nearby, including Edinburgh Academy, Fettes College, St George's School for Girls, and ESMS.
Albany Street is well positioned for rail, bus and tram transport - with a direct tram line to the airport.
The area is also excellent for shopping with St James Quarter a short walk away, whilst there are a range of dining options on nearby Broughton Street.
Brochures
Brochure- COUNCIL TAXA payment made to your local authority in order to pay for local services like schools, libraries, and refuse collection. The amount you pay depends on the value of the property.Read more about council Tax in our glossary page.
- Ask agent
- PARKINGDetails of how and where vehicles can be parked, and any associated costs.Read more about parking in our glossary page.
- On street,Permit
- GARDENA property has access to an outdoor space, which could be private or shared.
- Private garden,Communal garden,Rear garden,Terrace,Back garden
- ACCESSIBILITYHow a property has been adapted to meet the needs of vulnerable or disabled individuals.Read more about accessibility in our glossary page.
- Ask agent
53 Albany Street, Edinburgh, EH1
Add an important place to see how long it'd take to get there from our property listings.
__mins driving to your place
Get an instant, personalised result:
- Show sellers you’re serious
- Secure viewings faster with agents
- No impact on your credit score
Your mortgage
Notes
Staying secure when looking for property
Ensure you're up to date with our latest advice on how to avoid fraud or scams when looking for property online.
Visit our security centre to find out moreDisclaimer - Property reference 53-albany-st. The information displayed about this property comprises a property advertisement. Rightmove.co.uk makes no warranty as to the accuracy or completeness of the advertisement or any linked or associated information, and Rightmove has no control over the content. This property advertisement does not constitute property particulars. The information is provided and maintained by Macgregor, Edinburgh. Please contact the selling agent or developer directly to obtain any information which may be available under the terms of The Energy Performance of Buildings (Certificates and Inspections) (England and Wales) Regulations 2007 or the Home Report if in relation to a residential property in Scotland.
*This is the average speed from the provider with the fastest broadband package available at this postcode. The average speed displayed is based on the download speeds of at least 50% of customers at peak time (8pm to 10pm). Fibre/cable services at the postcode are subject to availability and may differ between properties within a postcode. Speeds can be affected by a range of technical and environmental factors. The speed at the property may be lower than that listed above. You can check the estimated speed and confirm availability to a property prior to purchasing on the broadband provider's website. Providers may increase charges. The information is provided and maintained by Decision Technologies Limited. **This is indicative only and based on a 2-person household with multiple devices and simultaneous usage. Broadband performance is affected by multiple factors including number of occupants and devices, simultaneous usage, router range etc. For more information speak to your broadband provider.
Map data ©OpenStreetMap contributors.





