
3 bedroom semi-detached house for sale
Causeway View, Plymouth, PL9

- PROPERTY TYPE
Semi-Detached
- BEDROOMS
3
- BATHROOMS
3
- SIZE
Ask agent
- TENUREDescribes how you own a property. There are different types of tenure - freehold, leasehold, and commonhold.Read more about tenure in our glossary page.
Freehold
Key features
- • Prime location – Causeway View, Hooe (PL9)
- • Immaculately presented throughout
- • Three spacious bedrooms
- • Master bedroom with en-suite
- • Modern kitchen/breakfast room
- • Lounge/diner with French doors to garden
- • Family bathroom & downstairs W/C
- • Two parking spaces directly in front
- • Landscaped garden with patio, lawn & decked area
- • Water views from the rear aspect
Description
Stunning 3 Bedroom Semi-Detached Home – Causeway View, Hooe, PL9
Yopa Estate Agents are delighted to present this beautifully presented three-bedroom semi-detached home, located in one of Plymouth’s most desirable waterside locations – Causeway View, Hooe.
The property benefits from two private parking spaces directly to the front and a superbly landscaped rear garden featuring a patio, lawn and decked entertaining area – perfect for family living and social occasions.
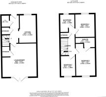
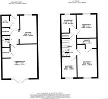
Inside, the accommodation is immaculately presented throughout. The welcoming entrance hall leads to a convenient downstairs W/C, a modern kitchen/breakfast room, and a bright and spacious lounge/dining room with French doors opening to the garden.
Upstairs, you’ll find a family bathroom, a useful storage cupboard on the landing, and three excellent-sized bedrooms. The master bedroom further enjoys its own en-suite shower room.
A key feature of this home is the lovely aspect from the rear, where you can take in charming water views, adding a touch of tranquillity to everyday living.
This exceptional property offers style, comfort, and location in abundance – making it a must-see for families and professionals alike.
---
Key Features
Highly sought-after Hooe location (PL9)
Three spacious bedrooms
Master bedroom with en-suite
Modern kitchen/breakfast room
Lounge/dining room with French doors to garden
Family bathroom & downstairs W/C
Two parking spaces directly in front
Beautiful landscaped garden with patio, lawn & decked area
Immaculately presented throughout
Rear aspect with delightful water views.
EPC band: A
Disclaimer
Whilst we make enquiries with the Seller to ensure the information provided is accurate, Yopa makes no representations or warranties of any kind with respect to the statements contained in the particulars which should not be relied upon as representations of fact. All representations contained in the particulars are based on details supplied by the Seller. Your Conveyancer is legally responsible for ensuring any purchase agreement fully protects your position. Please inform us if you become aware of any information being inaccurate.
Money Laundering Regulations
Should a purchaser(s) have an offer accepted on a property marketed by Yopa, they will need to undertake an identification check and asked to provide information on the source and proof of funds. This is done to meet our obligation under Anti Money Laundering Regulations (AML) and is a legal requirement. We use a specialist third party service together with an in-house compliance team to verify your information. The cost of these checks is £82.50 +VAT per purchase, which is paid in advance, when an offer is agreed and prior to a sales memorandum being issued. This charge is non-refundable under any circumstances.
- COUNCIL TAXA payment made to your local authority in order to pay for local services like schools, libraries, and refuse collection. The amount you pay depends on the value of the property.Read more about council Tax in our glossary page.
- Ask agent
- PARKINGDetails of how and where vehicles can be parked, and any associated costs.Read more about parking in our glossary page.
- Yes
- GARDENA property has access to an outdoor space, which could be private or shared.
- Yes
- ACCESSIBILITYHow a property has been adapted to meet the needs of vulnerable or disabled individuals.Read more about accessibility in our glossary page.
- Ask agent
Energy performance certificate - ask agent
Causeway View, Plymouth, PL9
Add an important place to see how long it'd take to get there from our property listings.
__mins driving to your place
Get an instant, personalised result:
- Show sellers you’re serious
- Secure viewings faster with agents
- No impact on your credit score

Your mortgage
Notes
Staying secure when looking for property
Ensure you're up to date with our latest advice on how to avoid fraud or scams when looking for property online.
Visit our security centre to find out moreDisclaimer - Property reference 204468. The information displayed about this property comprises a property advertisement. Rightmove.co.uk makes no warranty as to the accuracy or completeness of the advertisement or any linked or associated information, and Rightmove has no control over the content. This property advertisement does not constitute property particulars. The information is provided and maintained by Yopa, Midlands, South West & Wales. Please contact the selling agent or developer directly to obtain any information which may be available under the terms of The Energy Performance of Buildings (Certificates and Inspections) (England and Wales) Regulations 2007 or the Home Report if in relation to a residential property in Scotland.
*This is the average speed from the provider with the fastest broadband package available at this postcode. The average speed displayed is based on the download speeds of at least 50% of customers at peak time (8pm to 10pm). Fibre/cable services at the postcode are subject to availability and may differ between properties within a postcode. Speeds can be affected by a range of technical and environmental factors. The speed at the property may be lower than that listed above. You can check the estimated speed and confirm availability to a property prior to purchasing on the broadband provider's website. Providers may increase charges. The information is provided and maintained by Decision Technologies Limited. **This is indicative only and based on a 2-person household with multiple devices and simultaneous usage. Broadband performance is affected by multiple factors including number of occupants and devices, simultaneous usage, router range etc. For more information speak to your broadband provider.
Map data ©OpenStreetMap contributors.





