Residential Development Plot, 36 Rodborough Avenue, Rodborough , Stroud, South West, GL5
- SIZE AVAILABLE
6,970 sq ft
647 sq m
- SECTOR
Land for sale
Key features
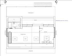
- Detailed planning permission for a detached 4no. bed dwelling
- 3 Phase Electricity, mains water and STP services installed already
- Offers in excess of £200,000
- Offers to be submitted by Noon on Tuesday 11th November 2025
Description
3 Phase Electricity, mains water and STP services installed already
Offers in excess of £200,000
Offers to be submitted by Noon on Tuesday 11th November 2025
The plot is located in a primarily residential location at the end of Rodborough Avenue, approximately 0.6 miles south of the market town of Stroud. Stroud is a market town and civil parish within Gloucestershire. The Cotswold Area of Outstanding Natural Beauty surrounds the town with Gloucester city centre located some 10 miles north, Cheltenham approximately 14 miles northeast, Cirencester 13 miles southeast and Bristol some 26 miles southwest. The property benefits from its convenient proximity to road networks to include Bath Road and the A419 which connects to the M5 providing direct links to Gloucester and Bristol.
Nearby Facilities & Amenity
The Town Centre is located approximately 0.6 miles to the north of the site. It provides a range of amenities to include supermarkets, pubs/restaurants, leisure opportunities and Stroud Railway Station. The Town Centre is within a 16 minute walk or 7 minute cycle providing opportunities for non-car mode journeys to surrounding amenities. It is a short walk to Rodborough Primary School. The town is served by a local bus service which runs from Rodborough Hill and connects to Stroud and the surrounding settlements.
Stroud Town Centre - 0.6 miles
Gloucester - 10 miles
Cheltenham - 14 miles
Cirencester - 13 miles
Bristol - 26 miles
The area of the title for sale extends to approximately 0.16 acres and comprises the former residential garden and garden studio of no 34, located at the end of Rodborough Avenue. The parcel is broadly rectangular in shape and slopes slightly downwards towards the eastern boundary. To the west lies 34
Rodbourgh Avenue and to the east 49 Rodborough Avenue with open meadows beyond. An area of open space borders the site to the south with 'Oak Drive' beyond. A two storey garden studio is located to the northwest corner of the site, which is to be demolished as part of the planning permission.
The consented development commenced in 2023 with the installation of services. Building Control have confirmed that the development has commenced and the permission is therefore considered extant. The site is accessed directly off Rodborough Avenue via a private driveway which is to be included within
title offered for sale.
The site is connected to mains water and 3-phase electricity and the current owners have installed a WPL Diamond DMS 3 Sewage Treatment Plant. It is understood that an air source heat pump is proposed to be installed as part of the permission. Please note we have not carried out any tests in this regard and recommend purchasers undertake their own investigations.
The site falls within the administrative area of Stroud District Council and benefits from the following relevant consents:
S.19/2210/FUL - Erection of new dwelling to replace outbuilding - Permitted 6th February 2020
S.21/0908/VAR - Variation of condition 2 (approved plans) and condition 9 (materials) from the application S.19/2210/FUL. 04.06.2021 - Withdrawn
S.21/3020/VAR - Variation to Condition 2 - Approved Plans, Condition 8 - Construction Method Statement and Condition 9 - Material Samples of S.19/2210/FUL - Permitted 16th February 2022
S.22/1203/DISCON - Discharge of Condition 4 (Drainage Pre-commencement) of permission S.19/2210/FUL - Permitted 11th July 2022
A purchaser will be responsible for discharging all remaining conditions attached to the planning permission.
The Freehold is offered For Sale by Informal Tender. Unconditional offers are invited by Noon on Tuesday 11th November 2025.
Offers should be submitted in accordance with the 'Tender Form' and sent via email to Lauren Gaunt.
Each party is to meet their own professional fees.
Walking of the site is strictly by appointment only, however the site can be viewed directly off Rodborough Avenue.
Brochures
Residential Development Plot, 36 Rodborough Avenue, Rodborough , Stroud, South West, GL5
NEAREST STATIONS
Distances are straight line measurements from the centre of the postcode- Stroud Station0.2 miles
- Stonehouse Station2.5 miles
Notes
Disclaimer - Property reference 12313FH. The information displayed about this property comprises a property advertisement. Rightmove.co.uk makes no warranty as to the accuracy or completeness of the advertisement or any linked or associated information, and Rightmove has no control over the content. This property advertisement does not constitute property particulars. The information is provided and maintained by Bruton Knowles, Gloucester. Please contact the selling agent or developer directly to obtain any information which may be available under the terms of The Energy Performance of Buildings (Certificates and Inspections) (England and Wales) Regulations 2007 or the Home Report if in relation to a residential property in Scotland.
Map data ©OpenStreetMap contributors.






