
Winkfield Manor, Forest Road, Ascot, Berkshire, SL5

- PROPERTY TYPE
Terraced
- BEDROOMS
3
- BATHROOMS
2
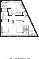
- SIZE
1,504 sq ft
140 sq m
- TENUREDescribes how you own a property. There are different types of tenure - freehold, leasehold, and commonhold.Read more about tenure in our glossary page.
Freehold
Key features
- CALL NOW FOR YOUR SHOW HOME VIEWING
- 18 stunning homes in the grounds of a Georgian Manor house and the surrounding paddocks
- Exclusive gated private estate on the fringes of Winkfield and Ascot
- Situated within the Charters School designated catchment area
- Fabulous local sporting enterprises such as polo, racing and golf all easily accessible
- Sublime leisure facilities and restaurants in neighbouring villages
- EPC Rating = B
Description
Description
Carefully designed to reflect its rich heritage, this truly unique development of just eighteen superior homes offers the opportunity to live in the grounds of a secluded Georgian manor house in the heart of Royal Berkshire’s desirable countryside. Set in 3.7 acres of private parkland, Winkfield Manor is an exclusive private development, only
moments away from the world renowned destinations of Ascot, Sunningdale and Windsor.
The original Winkfield Manor was commissioned by George III in 1786, to use as a hunting lodge on the Crown Estate. It embodied classic Georgian architectural with symmetry, proportion and balance. Rectory Homes have taken the style as the starting point for the new homes, using a palette of local natural materials, appropriate detailing and traditional silhouettes.
Location
Winkfield Manor is a private gated development nestled amongst mature trees at the end of a private lane flanked by paddocks.
Ascot High Street is approximately 1.8 miles and Ascot station providing services to London (Waterloo) is 2.3 miles. A footpath from the development provides More extensive shopping facilities can be found in Windsor approximately 6.9 miles, Reading approximately 14.1 miles.
By road, connections are good with access to the M3 (junction 3) approximately 6.4 miles, M25 (junction 13) approximately 12.6 miles and Heathrow Airport approximately 14.1 miles.
There are a number of renowned schools including Hall Grove, Papplewick, LVS, The Marist Schools, Hall Grove, St George’s and St Mary’s schools in Ascot. Eton College and Wellington College are within easy reach as are the international options including TASIS and ACS Egham.
Sporting facilities in the area include golf at Sunningdale, Wentworth, Swinley forest and The Royal Berkshire, racing at Ascot and Windsor and polo at Smith's Lawn. The picturesque Virginia Water Lake and Savill Gardens are both accessible, with horse riding at Chobham Common and Windsor Great Park.
Highlights of the local calendar include Royal Ascot, the annual PGA Championship at Wentworth Gold Club and the Cartier International Polo at Smith’s Lawn.
Local health clubs include Wentworth Club, Coworth Park Hotel Spa, Pennyhill Park Health Club and Spa and the MacDonald Berystede.
Theatres and cinemas in the area include The Novello Theatre Sunninghill, Luna Drive In Cinema Ascot, Cineworld Bracknell, New Victoria Theatre Woking, Yvonne Arnaud Theatre Guildford.
Square Footage: 1,504 sq ft
Additional Info
Reservation Fee: £2,000
Brochures
Web Details- COUNCIL TAXA payment made to your local authority in order to pay for local services like schools, libraries, and refuse collection. The amount you pay depends on the value of the property.Read more about council Tax in our glossary page.
- Band: TBC
- PARKINGDetails of how and where vehicles can be parked, and any associated costs.Read more about parking in our glossary page.
- Yes
- GARDENA property has access to an outdoor space, which could be private or shared.
- Yes
- ACCESSIBILITYHow a property has been adapted to meet the needs of vulnerable or disabled individuals.Read more about accessibility in our glossary page.
- Ask agent
Energy performance certificate - ask agent
Winkfield Manor, Forest Road, Ascot, Berkshire, SL5
Add an important place to see how long it'd take to get there from our property listings.
__mins driving to your place
Get an instant, personalised result:
- Show sellers you’re serious
- Secure viewings faster with agents
- No impact on your credit score
Your mortgage
Notes
Staying secure when looking for property
Ensure you're up to date with our latest advice on how to avoid fraud or scams when looking for property online.
Visit our security centre to find out moreDisclaimer - Property reference SND220068. The information displayed about this property comprises a property advertisement. Rightmove.co.uk makes no warranty as to the accuracy or completeness of the advertisement or any linked or associated information, and Rightmove has no control over the content. This property advertisement does not constitute property particulars. The information is provided and maintained by Savills New Homes, Sunningdale. Please contact the selling agent or developer directly to obtain any information which may be available under the terms of The Energy Performance of Buildings (Certificates and Inspections) (England and Wales) Regulations 2007 or the Home Report if in relation to a residential property in Scotland.
*This is the average speed from the provider with the fastest broadband package available at this postcode. The average speed displayed is based on the download speeds of at least 50% of customers at peak time (8pm to 10pm). Fibre/cable services at the postcode are subject to availability and may differ between properties within a postcode. Speeds can be affected by a range of technical and environmental factors. The speed at the property may be lower than that listed above. You can check the estimated speed and confirm availability to a property prior to purchasing on the broadband provider's website. Providers may increase charges. The information is provided and maintained by Decision Technologies Limited. **This is indicative only and based on a 2-person household with multiple devices and simultaneous usage. Broadband performance is affected by multiple factors including number of occupants and devices, simultaneous usage, router range etc. For more information speak to your broadband provider.
Map data ©OpenStreetMap contributors.






