
4 bedroom detached house for sale
Marine Drive, Bigbury on Sea

- PROPERTY TYPE
Detached
- BEDROOMS
4
- BATHROOMS
3
- SIZE
Ask agent
- TENUREDescribes how you own a property. There are different types of tenure - freehold, leasehold, and commonhold.Read more about tenure in our glossary page.
Freehold
Key features
- Three bedrooms with en-suites, plus a separate study and home gym
- Uninterrupted westerly sea views capturing dramatic sunsets over the South Devon coastline
- Generous plot of approx. 770 sq m (0.2 acres) with gently sloping gardens
- Outstanding development potential in one of South Hams' most desirable coastal villages
- Detached garage and three off-road parking spaces included in the approved plans
- Rare opportunity to acquire an elevated coastal plot in sought-after Bigbury-on-Sea
- Proposed design includes expansive open-plan kitchen, dining, and living spaces
- A rare blend of location, views, and planning permission—an ideal project for lifestyle buyers or developers
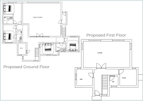
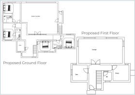
- Full planning permission granted (Ref: 1222/23/HHO) for a stunning four-bedroom detached home
- Short walk to the beach, making seaside living effortlessly accessible
Description
Full Description - This is a rare and exciting opportunity to acquire an elevated coastal plot of approximately 770 sq m (0.2 acres) in the highly desirable village of Bigbury-on-Sea. Set in an enviable position with uninterrupted westerly sea views across the stunning South Devon coastline, the plot enjoys gently sloping gardens and offers the perfect vantage point to take in the area's spectacular sunsets.
Planning permission has been granted (Ref: 1222/23/HHO) for a ground, rear and side extension to redevelop the existing property into a spacious and contemporary four-bedroom detached home. The approved plans allow for four bedrooms with two having en-suites, a generous lounge, a separate study, a gym, and an expansive open-plan kitchen and dining area. The design also includes three off-road parking spaces and a detached garage positioned at the top of the plot.
This is an exceptional opportunity for anyone seeking a project with excellent development potential in one of the South Hams' most scenic and sought-after locations. Opportunities to secure a coastal plot with views of this calibre, combined with full planning permission already in place, are extremely limited.
Tenure: Freehold Council
Tax Band: N/A
Local Authority: South Hams District Council
Services: All services are currently disconnected. Once connected- Mains electricity, water and drainage.
EPC: N/A
Location: Bigbury-on-Sea and neighbouring Challaborough Bay are well known for their sandy beaches, excellent surf and water sports, as well as easy access to the South West Coast Path. The iconic Burgh Island can be reached on foot at low tide or by the famous Sea Tractor when the tide is in, and offers both the renowned Art Deco hotel and the characterful Pilchard Inn pub for dining and drinks. The area is also served by a nearby 18-hole golf course, and sailing enthusiasts will find plenty to enjoy in the nearby coastal towns of Newton Ferrers and Salcombe, both just a short drive away.
Directions: Following along the A379 from Kingsbridge to Modbury, take the left hand turning signed posted Bigbury and Burgh Island. Keep following the road for 5.1 miles through the villages of St Anns Chapel and Bigbury. Upon entering Bigbury-on-Sea, take the right hand turning by the car park into Marine Drive, following the road for 0.3 miles. The property is found on the left hand side at the end.
IMPORTANT NOTICE: We would like to inform prospective purchasers that these sales particulars have been prepared as a general guide only. They are prepared and issued in good faith and are intended to give a fair description of the property, but do not constitute part of an offer or contract. Any description or information given should not be relied on as a statement or representation of fact that the property or its services are in good condition. Neither Charles Head, nor any of its employees, has any authority to make or give any representation or warranty whatsoever in relation to the property. Floorplans are for guidance purposes only and may not be to scale. The photographs show only certain parts and aspects of the property at the time they were taken. Any reference to alterations to, or use of, any part of the property is not a statement that any regulations or other consent has been obtained. . If there are any important matters likely to affect your decision to buy, please contact us before viewing the property. ALL STATEMENTS CONTAINED IN THESE PARTICULARS AS TO THIS PROPERTY ARE MADE WITHOUT RESPONSIBILITY ON THE PART OF CHARLES HEAD.
Brochures
Atlantic House Brochure.pdf- COUNCIL TAXA payment made to your local authority in order to pay for local services like schools, libraries, and refuse collection. The amount you pay depends on the value of the property.Read more about council Tax in our glossary page.
- Ask agent
- PARKINGDetails of how and where vehicles can be parked, and any associated costs.Read more about parking in our glossary page.
- Yes
- GARDENA property has access to an outdoor space, which could be private or shared.
- Yes
- ACCESSIBILITYHow a property has been adapted to meet the needs of vulnerable or disabled individuals.Read more about accessibility in our glossary page.
- Ask agent
Energy performance certificate - ask agent
Marine Drive, Bigbury on Sea
Add an important place to see how long it'd take to get there from our property listings.
__mins driving to your place
Get an instant, personalised result:
- Show sellers you’re serious
- Secure viewings faster with agents
- No impact on your credit score
Your mortgage
Notes
Staying secure when looking for property
Ensure you're up to date with our latest advice on how to avoid fraud or scams when looking for property online.
Visit our security centre to find out moreDisclaimer - Property reference 34193717. The information displayed about this property comprises a property advertisement. Rightmove.co.uk makes no warranty as to the accuracy or completeness of the advertisement or any linked or associated information, and Rightmove has no control over the content. This property advertisement does not constitute property particulars. The information is provided and maintained by Charles Head, Kingsbridge. Please contact the selling agent or developer directly to obtain any information which may be available under the terms of The Energy Performance of Buildings (Certificates and Inspections) (England and Wales) Regulations 2007 or the Home Report if in relation to a residential property in Scotland.
*This is the average speed from the provider with the fastest broadband package available at this postcode. The average speed displayed is based on the download speeds of at least 50% of customers at peak time (8pm to 10pm). Fibre/cable services at the postcode are subject to availability and may differ between properties within a postcode. Speeds can be affected by a range of technical and environmental factors. The speed at the property may be lower than that listed above. You can check the estimated speed and confirm availability to a property prior to purchasing on the broadband provider's website. Providers may increase charges. The information is provided and maintained by Decision Technologies Limited. **This is indicative only and based on a 2-person household with multiple devices and simultaneous usage. Broadband performance is affected by multiple factors including number of occupants and devices, simultaneous usage, router range etc. For more information speak to your broadband provider.
Map data ©OpenStreetMap contributors.






