New Street, St Davids, Haverfordwest

- PROPERTY TYPE
Detached Bungalow
- BEDROOMS
4
- BATHROOMS
1
- SIZE
Ask agent
- TENUREDescribes how you own a property. There are different types of tenure - freehold, leasehold, and commonhold.Read more about tenure in our glossary page.
Freehold
Key features
- Detached Dormer Bungalow
- Four Double Bedrooms
- Open Plan Living Room/Diner
- Well Presented
- No Onward Chain
- Located In The Centre Of St.Davids
- Garden To Rear
- Off Road Parking
- Downstairs Bathroom And Bedrooms
- EPC Rating: D
Description
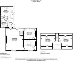
The layout of the property briefly comprises of an entrance hall leading to the kitchen which is fitted with modern base and eye level units and has space for a breakfast table, a downstairs bathroom with overhead shower, and a living room/diner with feature wood burning stove. The living room leads through to two double bedrooms on the ground floor, both served by fitted wardrobes. On the first floor is an open landing area which makes for a fantastic office space/sitting area, progressing on to the two further double bedrooms. The property is well presented with neutral tones throughout, and is served by double glazing and gas central heating.
Externally, there is a driveway to the front providing off road parking for approximately three cars, and pedestrian access to the rear of the property where the front door is located. There is a patio seating area progressing onto a lawned garden, with hedgerow boundaries and some outbuildings for external storage space.
Viewing is highly recommended on this conveniently located and comfortable family home!
St Davids is a popular Cathedral City which is situated on the North Pembrokeshire Coastline some fifteen miles or so North West of the County and Market Town of Haverfordwest. Renowned for its Cathedral and Bishops Palace, St Davids has the benefit of numerous amenities and facilities.
TENURE: Freehold
SERVICES: We have not checked or tested any of the services or appliances at the property.
Property has Mains Electric, Mains Water, Mains Drainage
HEATING: Gas
TAX: Band Currently exempt, previously E
We would respectfully ask you to call our office before you view this property internally or externally
CFH/ESL/09/25/OK EJL
FACEBOOK & TWITTER
Be sure to follow us on Twitter: @ WWProps
Brochures
New Street, St Davids, HaverfordwestBrochure- COUNCIL TAXA payment made to your local authority in order to pay for local services like schools, libraries, and refuse collection. The amount you pay depends on the value of the property.Read more about council Tax in our glossary page.
- Band: E
- PARKINGDetails of how and where vehicles can be parked, and any associated costs.Read more about parking in our glossary page.
- Yes
- GARDENA property has access to an outdoor space, which could be private or shared.
- Yes
- ACCESSIBILITYHow a property has been adapted to meet the needs of vulnerable or disabled individuals.Read more about accessibility in our glossary page.
- Ask agent
New Street, St Davids, Haverfordwest
Add an important place to see how long it'd take to get there from our property listings.
__mins driving to your place
Get an instant, personalised result:
- Show sellers you’re serious
- Secure viewings faster with agents
- No impact on your credit score

Your mortgage
Notes
Staying secure when looking for property
Ensure you're up to date with our latest advice on how to avoid fraud or scams when looking for property online.
Visit our security centre to find out moreDisclaimer - Property reference 34207089. The information displayed about this property comprises a property advertisement. Rightmove.co.uk makes no warranty as to the accuracy or completeness of the advertisement or any linked or associated information, and Rightmove has no control over the content. This property advertisement does not constitute property particulars. The information is provided and maintained by West Wales Properties, Haverfordwest. Please contact the selling agent or developer directly to obtain any information which may be available under the terms of The Energy Performance of Buildings (Certificates and Inspections) (England and Wales) Regulations 2007 or the Home Report if in relation to a residential property in Scotland.
*This is the average speed from the provider with the fastest broadband package available at this postcode. The average speed displayed is based on the download speeds of at least 50% of customers at peak time (8pm to 10pm). Fibre/cable services at the postcode are subject to availability and may differ between properties within a postcode. Speeds can be affected by a range of technical and environmental factors. The speed at the property may be lower than that listed above. You can check the estimated speed and confirm availability to a property prior to purchasing on the broadband provider's website. Providers may increase charges. The information is provided and maintained by Decision Technologies Limited. **This is indicative only and based on a 2-person household with multiple devices and simultaneous usage. Broadband performance is affected by multiple factors including number of occupants and devices, simultaneous usage, router range etc. For more information speak to your broadband provider.
Map data ©OpenStreetMap contributors.




