
3 bedroom semi-detached house for sale
Kippen Drive, Busby, G76

- PROPERTY TYPE
Semi-Detached
- BEDROOMS
3
- BATHROOMS
1
- SIZE
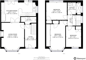
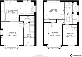
990 sq ft
92 sq m
- TENUREDescribes how you own a property. There are different types of tenure - freehold, leasehold, and commonhold.Read more about tenure in our glossary page.
Freehold
Key features
- Stylishly presented three bedroom home set against open farmland backdrop.
- Replacement roof covering in 2022.
- Superb, fully insulated rear garden cabin.
- Catchment for highly sought-after East Renfrewshire schooling.
- Planning permission granted on the property for a substantial ground level wrap around extension
Description
Set against the idyllic backdrop of open farmland, within a consistently sought-after residential pocket of Busby, this semi-detached family home is hallmarked by its generous apartment proportions and striking rear gardens; both of which create the most attractive of family propositions. Located just a short walk from Busby’s vibrant main street—home to a practical range of shops, excellent transport links, cafés, and bars—the property also benefits from being within the catchment area for some of Scotland’s more highly regarded schools.
Our 3D Virtual Tours, HD Videos, and Floorplans offer a more detailed view of the layout and flow, but, in summary, the ground floor accommodation comprises; a welcoming reception hallway with useful under-stair storage off, notably bright formal lounge featuring an attractive focal-point fire and surround, an impressive fitted kitchen hosting a comprehensive range of base and wall mounted cabinets with integrated breakfast bar and ample additional space for family dining and a highly practical ground floor cloakroom with contemporary two-piece suite. On the equally impressive upper floor, a broad landing leads, in turn, to three very equitably configured bedrooms (the principle of which has ‘full-wall’ fitted robes) and an impressively re-fitted family shower room with modern sanitary ware and ample vanity storage. Of additional note, there is also an expansive floored attic in situ with drop-down ladder which offers superb additional family storage capacity.
Of particular note, however, are the striking rear gardens enjoyed by this home which rest against the most idyllic backdrop of open farmland. Fully enclosed to the rear, this area promotes a superb family and pet friendly proposition and boasts a spectacular, fully insulated timber garden room which has been designed with plumbing to accommodate both a bedroom and shower room if required. Set towards the boundary head of the garden, this cabin is finished with attractive feature decking to both front and side thus delivering a perfect guest suite or agile working hub.
EPC Rating: D
- COUNCIL TAXA payment made to your local authority in order to pay for local services like schools, libraries, and refuse collection. The amount you pay depends on the value of the property.Read more about council Tax in our glossary page.
- Band: E
- PARKINGDetails of how and where vehicles can be parked, and any associated costs.Read more about parking in our glossary page.
- Ask agent
- GARDENA property has access to an outdoor space, which could be private or shared.
- Private garden
- ACCESSIBILITYHow a property has been adapted to meet the needs of vulnerable or disabled individuals.Read more about accessibility in our glossary page.
- Ask agent
Energy performance certificate - ask agent
Kippen Drive, Busby, G76
Add an important place to see how long it'd take to get there from our property listings.
__mins driving to your place
Get an instant, personalised result:
- Show sellers you’re serious
- Secure viewings faster with agents
- No impact on your credit score
Your mortgage
Notes
Staying secure when looking for property
Ensure you're up to date with our latest advice on how to avoid fraud or scams when looking for property online.
Visit our security centre to find out moreDisclaimer - Property reference d68fed2b-5ae7-4a90-900c-5e0803393547. The information displayed about this property comprises a property advertisement. Rightmove.co.uk makes no warranty as to the accuracy or completeness of the advertisement or any linked or associated information, and Rightmove has no control over the content. This property advertisement does not constitute property particulars. The information is provided and maintained by Clyde Property, Clarkston. Please contact the selling agent or developer directly to obtain any information which may be available under the terms of The Energy Performance of Buildings (Certificates and Inspections) (England and Wales) Regulations 2007 or the Home Report if in relation to a residential property in Scotland.
*This is the average speed from the provider with the fastest broadband package available at this postcode. The average speed displayed is based on the download speeds of at least 50% of customers at peak time (8pm to 10pm). Fibre/cable services at the postcode are subject to availability and may differ between properties within a postcode. Speeds can be affected by a range of technical and environmental factors. The speed at the property may be lower than that listed above. You can check the estimated speed and confirm availability to a property prior to purchasing on the broadband provider's website. Providers may increase charges. The information is provided and maintained by Decision Technologies Limited. **This is indicative only and based on a 2-person household with multiple devices and simultaneous usage. Broadband performance is affected by multiple factors including number of occupants and devices, simultaneous usage, router range etc. For more information speak to your broadband provider.
Map data ©OpenStreetMap contributors.








