
Groathill Road South, Edinburgh, Midlothian

- PROPERTY TYPE
Apartment
- BEDROOMS
3
- BATHROOMS
2
- SIZE
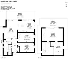
1,395 sq ft
130 sq m
- TENUREDescribes how you own a property. There are different types of tenure - freehold, leasehold, and commonhold.Read more about tenure in our glossary page.
Freehold
Description
This exceptional apartment is presented in pristine condition throughout and combines modern finishes with superb outdoor living. The large south-facing terraces provide a tranquil setting for entertaining, relaxing, or enjoying open views, enhancing the sense of space and light throughout the home. With an allocated off-street parking space, lift service, and excellent connectivity to Edinburgh city centre and surrounding green spaces, the property offers a perfect blend of urban convenience and stylish, low-maintenance living - ideal for professionals, downsizers, or anyone seeking a quality home with generous private outdoor areas.
Summary of Accommodation:
Shared entrance and communal stair with lift service and secure video phone entry system
Fourth Floor:
Hall, Open Plan Dual Aspect Sitting Room/Dining Room and Kitchen, Double Bedroom two, Double Bedroom Three/Study, Shower Room
Fifth Floor:
Principal Bedroom Suite with Ensuite Bathroom and walk-in Wardrobe
Outside Space
Two Balconies accessed through open plan living space
Expansive balcony directly accessed from principal bedroom
Allocated off street parking space
EPC: B
Council Tax Band: G
Tenure Freehold
Viewing by appointment
EPC Rating: B
Council Tax Band: G
- COUNCIL TAXA payment made to your local authority in order to pay for local services like schools, libraries, and refuse collection. The amount you pay depends on the value of the property.Read more about council Tax in our glossary page.
- Band: G
- PARKINGDetails of how and where vehicles can be parked, and any associated costs.Read more about parking in our glossary page.
- Yes
- GARDENA property has access to an outdoor space, which could be private or shared.
- Yes
- ACCESSIBILITYHow a property has been adapted to meet the needs of vulnerable or disabled individuals.Read more about accessibility in our glossary page.
- Ask agent
Groathill Road South, Edinburgh, Midlothian
Add an important place to see how long it'd take to get there from our property listings.
__mins driving to your place
Get an instant, personalised result:
- Show sellers you’re serious
- Secure viewings faster with agents
- No impact on your credit score
Your mortgage
Notes
Staying secure when looking for property
Ensure you're up to date with our latest advice on how to avoid fraud or scams when looking for property online.
Visit our security centre to find out moreDisclaimer - Property reference PER240680. The information displayed about this property comprises a property advertisement. Rightmove.co.uk makes no warranty as to the accuracy or completeness of the advertisement or any linked or associated information, and Rightmove has no control over the content. This property advertisement does not constitute property particulars. The information is provided and maintained by Rettie, Edinburgh. Please contact the selling agent or developer directly to obtain any information which may be available under the terms of The Energy Performance of Buildings (Certificates and Inspections) (England and Wales) Regulations 2007 or the Home Report if in relation to a residential property in Scotland.
*This is the average speed from the provider with the fastest broadband package available at this postcode. The average speed displayed is based on the download speeds of at least 50% of customers at peak time (8pm to 10pm). Fibre/cable services at the postcode are subject to availability and may differ between properties within a postcode. Speeds can be affected by a range of technical and environmental factors. The speed at the property may be lower than that listed above. You can check the estimated speed and confirm availability to a property prior to purchasing on the broadband provider's website. Providers may increase charges. The information is provided and maintained by Decision Technologies Limited. **This is indicative only and based on a 2-person household with multiple devices and simultaneous usage. Broadband performance is affected by multiple factors including number of occupants and devices, simultaneous usage, router range etc. For more information speak to your broadband provider.
Map data ©OpenStreetMap contributors.








