Campania, Naples, Naples, Italy
- PROPERTY TYPE
Flat
- BEDROOMS
3
- BATHROOMS
2
- SIZE
1,722 sq ft
160 sq m
Key features
- 7 Rooms
- TV aerial Autonomous
- SAT TV Autonomous
- Conditioned air
- Telephone system
- Electrical system In accordance
- Shower
- Aluminum frames
- Alarm setup
Description
The apartment for sale is located in the prestigious Posillipo area, one of the most renowned areas of Naples.
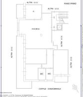
The property, approximately 150 square meters with two entrances, is spacious and bright, thanks to the large windows and its elevated position.
Equipped with a lift, the apartment is easily accessible even for those with mobility difficulties.
Its internal layout is perfect for hosting a large family and is ideal for those who love living in large spaces, the double entrance also makes it potentially divisible into 2 residential units.
The layout of the rooms is rational and well-organized: the entrance leads to the living area, consisting of a large living room and an eat-in kitchen, both with access to a balcony.
The sleeping area, on the other hand, consists of three spacious and comfortable bedrooms, with windows that provide good natural light and external access to the balcony.
The spaces are well distributed and allow you to enjoy pleasant privacy.
The property is completed by two bathrooms, both finely finished and equipped with high-quality sanitary ware.
The apartment is located on the first floor of a three-story building and enjoys good sun exposure and absolute tranquility.
Its strategic location, in one of Naples' most prestigious areas, allows for easy access to all amenities, such as shops, schools, supermarkets, and public transportation.
In short, this is an ideal property for those seeking a prestigious apartment in one of Naples' most exclusive areas, equipped with all the comforts needed for a quality, relaxing life.
Campania, Naples, Naples, Italy
NEAREST AIRPORTS
Distances are straight line measurements- Capodochino(International)8.2 miles
Advice on buying Italian property
Learn everything you need to know to successfully find and buy a property in Italy.
Notes
This is a property advertisement provided and maintained by Coldwell Banker Gruppo Bodini, Italia (reference 280856_186084201005135) and does not constitute property particulars. Whilst we require advertisers to act with best practice and provide accurate information, we can only publish advertisements in good faith and have not verified any claims or statements or inspected any of the properties, locations or opportunities promoted. Rightmove does not own or control and is not responsible for the properties, opportunities, website content, products or services provided or promoted by third parties and makes no warranties or representations as to the accuracy, completeness, legality, performance or suitability of any of the foregoing. We therefore accept no liability arising from any reliance made by any reader or person to whom this information is made available to. You must perform your own research and seek independent professional advice before making any decision to purchase or invest in overseas property.





