Commercial development for sale
Lynton, Lower Dunton Road, Dunton, Basildon, CM13 3SP
- SIZE AVAILABLE
42,625 sq ft
3,960 sq m
- SECTOR
Commercial development for sale
Key features
- Development Site
- Located In A Popular Semi-Rural Location
- Planning For A Detached Chalet & 3 Detached Bungalows
- Freehold For Sale
- Offers In Excess Of £850,000
Description
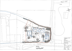
The site is irregular shape with frontage on Lower Dunton Road and a return frontage with Church Road, the frontage measures approximately 60 metres and depth ranging between 43 and 63 metres and with a site area of 0.396 hectares.
The planning consent is for the demolition of the existing detached chalet and erection of four detached properties, one of which is a chalet style bungalow and the other three are detached bungalows.
Located on the west side of Lower Dunton Road, immediately to the south of its junction with West Mayne, within the Dunton area, to the west of the urban town of Basildon.
Strictly by prior appointment via landlords appointed agents Ayers & Cruiks
Offers in excess of £850,000
Brochures
Lynton, Lower Dunton Road, Dunton, Basildon, CM13 3SP
NEAREST STATIONS
Distances are straight line measurements from the centre of the postcode- Laindon Station1.4 miles
- West Horndon Station2.2 miles
- Basildon Station2.8 miles
Notes
Disclaimer - Property reference 271275-1. The information displayed about this property comprises a property advertisement. Rightmove.co.uk makes no warranty as to the accuracy or completeness of the advertisement or any linked or associated information, and Rightmove has no control over the content. This property advertisement does not constitute property particulars. The information is provided and maintained by Ayers & Cruiks, Southend. Please contact the selling agent or developer directly to obtain any information which may be available under the terms of The Energy Performance of Buildings (Certificates and Inspections) (England and Wales) Regulations 2007 or the Home Report if in relation to a residential property in Scotland.
Map data ©OpenStreetMap contributors.





