
Loddon Road, Ditchingham, Bungay

Letting details
- Let available date:
- Now
- Deposit:
- £1,557A deposit provides security for a landlord against damage, or unpaid rent by a tenant.Read more about deposit in our glossary page.
- Min. Tenancy:
- 6 months How long the landlord offers to let the property for.Read more about tenancy length in our glossary page.
- Let type:
- Short term
- Furnish type:
- Unfurnished
- Council Tax:
- Ask agent
- PROPERTY TYPE
Detached Bungalow
- BEDROOMS
3
- BATHROOMS
2
- SIZE
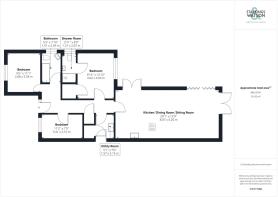
987 sq ft
92 sq m
Key features
- 2023 Built Detached Bungalow
- 29' Kitchen/Living Space
- High Specification Kitchen with Appliances
- Separate Utility Room
- Three Bedrooms
- Family Bathroom & En Suite
- Low Maintenance Gardens
- Ample Parking to Front
Description
IN SUMMARY
This BRAND NEW 2023 built detached bungalow is completed with a STUNNING CONTEMPORARY finish and OPEN PLAN LAYOUT. With GREAT ECO CREDENTIALS and an AIR SOURCE HEATING system which powers the UNDER FLOOR HEATING, the property is DECORATED with FEATURE WALLS and a BEAUTIFUL HERRINGBONE FLOORING. With over 980 Sq. ft (stms) of accommodation, the HALL ENTRANCE offers storage, with doors to THREE BEDROOMS, including the main bedroom with a LUXURY EN SUITE SHOWER ROOM, completed with high end fixtures and fittings, and feature tiling. The FAMILY BATHROOM is adjacent, with tiled splash backs and walls. The UTILITY ROOM offers storage and SPACE for LAUNDRY APPLIANCES, with a built-in airing cupboard. The heart of the home is the OPEN PLAN 29' KITCHEN and SITTING ROOM with DINING SPACE. With BI-FOLDING DOORS and TWO sets of FRENCH DOORS, this light and bright room is finished with a STRIKING KITCHEN and INTEGRATED APPLIANCES. The REAR GARDEN is LOW MAINTENANCE with AMPLE PATIO SPACE.
SETTING THE SCENE
Set back from the road, a low level timber fenced frontage encloses the shingle driveway and turning space. A planted front border with sleeper edging has been created, and is starting to become established. Secure gated access can be found to both sides of the bungalow.
THE GRAND TOUR
Heading inside, the hall entrance is finished with an attractive herringbone style flooring, with a built-in storage cupboard which houses the electric fuse boxes. The bedrooms are located towards the front of the property, with under floor heating running throughout. The three bedrooms are carpeted, whilst the main bedroom includes an en suite and walk-in dressing room space. The en suite includes a three piece suite with a double shower, tiled splash backs and striking tiled flooring. A heated towel rail is separately controlled from the main heating. The family bathroom is in a similar style, with the splash backs and flooring finished in matching tiles, and a wall mounted heated towel rail. Leading from the hall is an enclosed utility room, with eye catching wall and base level units, space for a washing machine and tumble dryer, along with a door to the airing cupboard, and door to the garden. At the end of the hall, the open plan sitting/dining room can be found - offering ample space for dining and soft furnishings. Herringbone style flooring with under floor heating runs underfoot, with uPVC double glazed French doors to side and rear, and bi-folding doors to side. The kitchen is finished in a striking colour, with integrated cooking appliances, fridge/freezer and dishwasher.
FIND US
Postcode : NR35 2RA
What3Words : ///firebird.vocab.beast
VIRTUAL TOUR
View our virtual tour for a full 360 degree of the interior of the property.
AGENTS NOTE
The property comes with an EV charger installed to the front.
EPC Rating: B
Garden
THE GREAT OUTDOORS
Designed for easy living, a large patio runs adjacent to the sitting room, with a raised area of artificial lawn. Gated access leads to each side of the bungalow, whilst a timber shed offers storage.
Brochures
Property Brochure- COUNCIL TAXA payment made to your local authority in order to pay for local services like schools, libraries, and refuse collection. The amount you pay depends on the value of the property.Read more about council Tax in our glossary page.
- Band: D
- PARKINGDetails of how and where vehicles can be parked, and any associated costs.Read more about parking in our glossary page.
- Yes
- GARDENA property has access to an outdoor space, which could be private or shared.
- Private garden
- ACCESSIBILITYHow a property has been adapted to meet the needs of vulnerable or disabled individuals.Read more about accessibility in our glossary page.
- Ask agent
Loddon Road, Ditchingham, Bungay
Add an important place to see how long it'd take to get there from our property listings.
__mins driving to your place
Notes
Staying secure when looking for property
Ensure you're up to date with our latest advice on how to avoid fraud or scams when looking for property online.
Visit our security centre to find out moreDisclaimer - Property reference f2baee9e-3a46-427b-83e8-0d17ed098e9e. The information displayed about this property comprises a property advertisement. Rightmove.co.uk makes no warranty as to the accuracy or completeness of the advertisement or any linked or associated information, and Rightmove has no control over the content. This property advertisement does not constitute property particulars. The information is provided and maintained by Starkings & Watson, Norfolk & Suffolk. Please contact the selling agent or developer directly to obtain any information which may be available under the terms of The Energy Performance of Buildings (Certificates and Inspections) (England and Wales) Regulations 2007 or the Home Report if in relation to a residential property in Scotland.
*This is the average speed from the provider with the fastest broadband package available at this postcode. The average speed displayed is based on the download speeds of at least 50% of customers at peak time (8pm to 10pm). Fibre/cable services at the postcode are subject to availability and may differ between properties within a postcode. Speeds can be affected by a range of technical and environmental factors. The speed at the property may be lower than that listed above. You can check the estimated speed and confirm availability to a property prior to purchasing on the broadband provider's website. Providers may increase charges. The information is provided and maintained by Decision Technologies Limited. **This is indicative only and based on a 2-person household with multiple devices and simultaneous usage. Broadband performance is affected by multiple factors including number of occupants and devices, simultaneous usage, router range etc. For more information speak to your broadband provider.
Map data ©OpenStreetMap contributors.





