Poolstock Lane, Poolstock, Wigan

- PROPERTY TYPE
Semi-Detached
- BEDROOMS
3
- BATHROOMS
1
- SIZE
Ask agent
Key features
- Traditional Semi Detached Property
- Three Bedrooms
- Gas Central Heating and UPVC Double Glazing
- Driveway Parking
- Enclosed Rear Garden
- No Chain - Viewing Recommended
Description
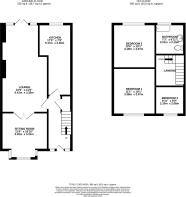
Entrance Hall
Door giving access to the front of the property. UPVC double glazed window to front aspect. Central heating radiator. Stairs to first floor accommodation.
Kitchen
Fitted with a range of wall and base units comprising cupboards, drawers and work surfaces and incorporating a 1.5 bowl, single drainer sink unit with mixer tap. Plumbed for automatic washing machine. Central heating boiler. Central heating radiator.
Lounge
UPVC double glazed french doors to rear aspect. Central heating radiator. Double doors to Sitting/Dining Room.
Sitting/Dining Room
UPVC double glazed bay window to front aspect. Central heating radiator. Laminate flooring.
First Floor Landing
Loft access. UPVC double glazed window to side aspect.
Bedroom One
UPVC double glazed window to front aspect. Central heating radiator.
Bedroom Two
UPVC double glazed window to rear aspect. Central heating radiator.
Bedroom Three
UPVC double glazed window to front aspect. Central heating radiator. Laminate flooring.
Family Bathroom
Fitted with a three piece suite comprising P shaped bath with shower over, pedestal wash hand basin and low flush WC. Tiled to visible elevations. Towel radiator. UPVC double glazed window to rear aspect.
Outside
At the front of the property is a driveway providing off road parking and there is an enclosed rear garden.
Tenure
Leasehold. 999 years (less 10 days) from 12/5/1935. £3 per annum.
Brochures
Full Details- COUNCIL TAXA payment made to your local authority in order to pay for local services like schools, libraries, and refuse collection. The amount you pay depends on the value of the property.Read more about council Tax in our glossary page.
- Band: B
- PARKINGDetails of how and where vehicles can be parked, and any associated costs.Read more about parking in our glossary page.
- Yes
- GARDENA property has access to an outdoor space, which could be private or shared.
- Yes
- ACCESSIBILITYHow a property has been adapted to meet the needs of vulnerable or disabled individuals.Read more about accessibility in our glossary page.
- Ask agent
Energy performance certificate - ask agent
Poolstock Lane, Poolstock, Wigan
Add an important place to see how long it'd take to get there from our property listings.
__mins driving to your place
Get an instant, personalised result:
- Show sellers you’re serious
- Secure viewings faster with agents
- No impact on your credit score
Your mortgage
Notes
Staying secure when looking for property
Ensure you're up to date with our latest advice on how to avoid fraud or scams when looking for property online.
Visit our security centre to find out moreDisclaimer - Property reference 12761121. The information displayed about this property comprises a property advertisement. Rightmove.co.uk makes no warranty as to the accuracy or completeness of the advertisement or any linked or associated information, and Rightmove has no control over the content. This property advertisement does not constitute property particulars. The information is provided and maintained by Addisons Estate and Letting Agent, Wigan. Please contact the selling agent or developer directly to obtain any information which may be available under the terms of The Energy Performance of Buildings (Certificates and Inspections) (England and Wales) Regulations 2007 or the Home Report if in relation to a residential property in Scotland.
*This is the average speed from the provider with the fastest broadband package available at this postcode. The average speed displayed is based on the download speeds of at least 50% of customers at peak time (8pm to 10pm). Fibre/cable services at the postcode are subject to availability and may differ between properties within a postcode. Speeds can be affected by a range of technical and environmental factors. The speed at the property may be lower than that listed above. You can check the estimated speed and confirm availability to a property prior to purchasing on the broadband provider's website. Providers may increase charges. The information is provided and maintained by Decision Technologies Limited. **This is indicative only and based on a 2-person household with multiple devices and simultaneous usage. Broadband performance is affected by multiple factors including number of occupants and devices, simultaneous usage, router range etc. For more information speak to your broadband provider.
Map data ©OpenStreetMap contributors.




