
Land for sale
Marshall Street, Sherwood, Nottingham
- PROPERTY TYPE
Land
- SIZE
9,203 sq ft
855 sq m
Key features
- Proposed building plot
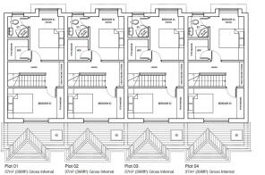
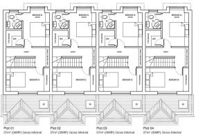
- Planning permission granted for four three-storey terraced houses
- Site of approximately 855 sq metres
- Prime development opportunity
- Current property designs offer each dwelling four bedrooms, two bathrooms, a contemporary open plan dining kitchen and parking
- Prime location just a short walk from Sherwood's vibrant shops, sought-after schools, bars and restaurants
- Frequent bus services nearby to Nottingham City Centre, Nottingham City Hospital and the surrounding areas
- Nottingham City Council Planning Reference: 23/00008/PFUL3
- Subject to the demolition of the current in-situ garage outbuildings
- Offered with no upward chain
Description
Introducing a prime development opportunity of approximately 855 sq metres with planning permission granted by Nottingham City Council for the construction of four three-storey terraced houses (subject to the demolition of the current in-situ garage outbuildings). Once completed, residents can enjoy the vibrant atmosphere of Sherwood, with its excellent variety of shops, sought-after schools, bars and restaurants just a short stroll away alongside excellent transport links to Nottingham City Centre, Nottingham City Hospital and surrounding areas.
The designs for the new dwellings would provide each unit with a contemporary layout which incorporates a lounge, open plan dining kitchen, four bedrooms and two bathrooms (including an en-suite) in addition to a private parking space and a low-maintenance garden - all set back from the roadside.
This offering, available with no chain, presents an exceptional opportunity to enter the market with an already-approved development project, eliminating a significant portion of the planning process and expediting the time to commencement.
Full plans and documentation are available upon request or alternatively, further information can be found on Nottingham City Council’s planning portal by quoting reference 23/00008/PFUL3
Disclaimer
These particulars are produced in good faith and are set out as a general guide only. Please note that all measurements quoted are approximate and are the maximum measurements for the space. Floor plans are for illustrative purposes only. Services have not been tested.
David James Estate Agents have established professional relationships with third-party suppliers for the provision of services to Clients. As remuneration for this professional relationship, the agent receives referral commission from the third-party company. David James Estate Agents receives the following commission from each third party supplier on a per referral basis:
All Moves UK Ltd: 18% including VAT of the invoice total (£107 including VAT average)
MoveWithUs Limited: £188 including VAT (average)
Brochures
Property BrochureMarshall Street, Sherwood, Nottingham
NEAREST STATIONS
Distances are straight line measurements from the centre of the postcode- Beaconsfield St Tram Stop1.3 miles
- Shipstone St Tram Stop1.4 miles
- Noel St Tram Stop1.4 miles


Notes
Disclaimer - Property reference 2c3c735e-0ece-432d-9532-dfe8bc9c8277. The information displayed about this property comprises a property advertisement. Rightmove.co.uk makes no warranty as to the accuracy or completeness of the advertisement or any linked or associated information, and Rightmove has no control over the content. This property advertisement does not constitute property particulars. The information is provided and maintained by David James Estate Agents, Mapperley. Please contact the selling agent or developer directly to obtain any information which may be available under the terms of The Energy Performance of Buildings (Certificates and Inspections) (England and Wales) Regulations 2007 or the Home Report if in relation to a residential property in Scotland.
Map data ©OpenStreetMap contributors.







