
3 bedroom apartment for sale
Lambert Road, Grimsby

- PROPERTY TYPE
Apartment
- BEDROOMS
3
- BATHROOMS
1
- SIZE
Ask agent
Description
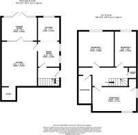
SIDE ENTRANCE DOOR
Gives direct access into the Hallway, where the staircase leads to the first floor.
DINING / KITCHEN 3.66m (12'0") x 2.44m (8'0") EXTENDING TO 19'8"
An open plan Dining Kitchen featuring a quarry tile floor. The Dining area has two double glazed windows and an electric wall heater.
DINING / KITCHEN
The Kitchen is fitted with a range of shaker style cabinets in a light cream finish with complimentary light wood grain laminate work tops. Incorporating a stainless steel circular sink with mixer taps and tiled splashback. Built in appliances include a Cooke & Lewis induction hob with an overhead extractor fan and light, a single Beko built in oven with microwave above. It has plumbing for a washing machine and dishwasher and an additional pull out larder cupboard. The Kitchen enjoys a uPVC window providing views onto a delightful rear Garden.
LIVING 4.88m (16'0") x 3.89m (12'9")
A spacious room with a high ceiling, original coving and complimentary picture rail. There's a prominent chimney breast housing a cast iron log burning stove set in to a tiled recess with a lime stone fire surround. It has a panelled electric radiator and features a beautiful original high window with single glaze door opening into the Garden Room.
STUDY 1.65m (5'5") x 1.52m (5'0")
The wood panel floor continues through into a small Study recess with an original parquet floor and an open storage area under the stairs.
GARDEN ROOM 3.96m (13'0") x 2.29m (7'6")
With a fashionable laminate floor, two single glazed windows and French doors opening onto the Garden.
LANDING
The Landing has a useful built in storage cupboard and access to the loft space.
BEDROOM ONE 3.91m (12'10") x 3.86m (12'8")
Facing the rear garden is a lovely Bedroom with high ceilings, cornice, picture rail and feature fire place and a panelled electric radiator. It has a double glazed uPVC window to the rear.
BEDROOM TWO 4.88m (16'0") x 2.69m (8'10")
Another good sized Bedroom with dual aspect sash windows and a cast iron fire pace. It has coving to the ceiling, built in storage cupboard and a fashionable laminate floor.
BEDROOM THREE 3.86m (12'8") x 2.39m (7'10")
A good sized third Bedroom showing views onto the rear garden, with a panelled electric radiator and double glazed uPVC window.
BATHROOM 3.23m (10'7") x 1.47m (4'10")
A modern white Bathroom comprising wash handbasin, vanity unit with pillar style tap and panelled bath with bar mixer shower. It has a glass screen with wall panelling and a chrome heated towel rail.
SHOWER ROOM
Situated off the Landing, a tiled Shower Room which has been disconnected.
OUTSIDE
In the Agents opinion the wonderful mature rear garden is sure to appeal to many as it offers individuality rarely found so close to town. Featuring a range of vivacious plants and shrubs creating colour throughout the year. With a generous paved patio for entertaining. The gardens enjoy a predominantly south facing aspect and also have walls and fencing around the perimeters.
GENERAL INFORMATION
Water electricity and drainage are connected, broadband speeds and availability can be accessed via the Ofcoms website. Central heating comprises accommodation of wall and radiator electric heating. The property benefits from uPVC framed double glazing and some original single glazing. It falls within the jurisdiction of the North East Lincolnshire Council and is in Council Tax Band A. The tenure is Leasehold subject to solicitors verification, Leasehold details to be advised.
VIEWINGS
Viewing is strictly by appointment through the agents on Grimsby 311000. A video walk through tour with commentary can be seen on Rightmove and the Martin Maslin website.
Brochures
PDF brochure- COUNCIL TAXA payment made to your local authority in order to pay for local services like schools, libraries, and refuse collection. The amount you pay depends on the value of the property.Read more about council Tax in our glossary page.
- Ask agent
- PARKINGDetails of how and where vehicles can be parked, and any associated costs.Read more about parking in our glossary page.
- Ask agent
- GARDENA property has access to an outdoor space, which could be private or shared.
- Yes
- ACCESSIBILITYHow a property has been adapted to meet the needs of vulnerable or disabled individuals.Read more about accessibility in our glossary page.
- Ask agent
Lambert Road, Grimsby
Add an important place to see how long it'd take to get there from our property listings.
__mins driving to your place
Get an instant, personalised result:
- Show sellers you’re serious
- Secure viewings faster with agents
- No impact on your credit score
Your mortgage
Notes
Staying secure when looking for property
Ensure you're up to date with our latest advice on how to avoid fraud or scams when looking for property online.
Visit our security centre to find out moreDisclaimer - Property reference MRT125172. The information displayed about this property comprises a property advertisement. Rightmove.co.uk makes no warranty as to the accuracy or completeness of the advertisement or any linked or associated information, and Rightmove has no control over the content. This property advertisement does not constitute property particulars. The information is provided and maintained by Martin Maslin, Grimsby. Please contact the selling agent or developer directly to obtain any information which may be available under the terms of The Energy Performance of Buildings (Certificates and Inspections) (England and Wales) Regulations 2007 or the Home Report if in relation to a residential property in Scotland.
*This is the average speed from the provider with the fastest broadband package available at this postcode. The average speed displayed is based on the download speeds of at least 50% of customers at peak time (8pm to 10pm). Fibre/cable services at the postcode are subject to availability and may differ between properties within a postcode. Speeds can be affected by a range of technical and environmental factors. The speed at the property may be lower than that listed above. You can check the estimated speed and confirm availability to a property prior to purchasing on the broadband provider's website. Providers may increase charges. The information is provided and maintained by Decision Technologies Limited. **This is indicative only and based on a 2-person household with multiple devices and simultaneous usage. Broadband performance is affected by multiple factors including number of occupants and devices, simultaneous usage, router range etc. For more information speak to your broadband provider.
Map data ©OpenStreetMap contributors.








