
Redland Hill Redland Bristol BS6 6BJ

- PROPERTY TYPE
Retirement Property
- BEDROOMS
3
- BATHROOMS
2
- SIZE
1,691 sq ft
157 sq m
Key features
- EXCLUSIVELY AVAILABLE FOR OVER 60s
- Reserve by end of Jan 2026 and save over £150,000 in exclusive incentives
- Join us at our exclusive launch event on Thursday 6th November, 12pm to 2pm
- Provision for lift to be installed
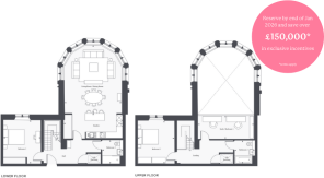
- Spanning approximately 1,691 sq ft
- Exclusive amenities - communal lounge and wellness centre
- On-site team present 7 days a week
- A large arboretum garden with a pond and magnificent trees
- 24 hour CCTV in operation and video entry system
- No exit fees
Description
** Reserve by end of Jan 2026 and save over £150,000 in exclusive incentives**
**Join us at our exclusive launch event on Thursday 6th November, 12pm to 2pm**
Benefit from an exclusive savings package worth over to £150,000, when you reserve one of the stunning homes in The Vincent's Chapel Collection.
This incredible package is designed to make your move as seamless and stress-free as possible, providing you with significant financial benefits.
This is a limited-time opportunity to secure your beautiful new home while receiving fantastic savings.
- Stamp Duty (tier 1) paid*
- £15,000 towards estate agent fees*
- £2,000 contribution to legal fees*
- £100,000 cashback upon completion*
Apartment 16 is a luxurious three bedroom apartment spanning approximately 1,691 sq ft spread across two floors. Located on the First Floor this beautifully-designed home features an open-plan kitchen/living/dining area with stunning architectural windows. This residence also benefits from a master bedroom with built-in wardrobes and an ensuite, as well as two additional bedrooms perfect for creating a flexible living space, hobby room or hosting your loved ones.
And, when you move in, you will also benefit from all that The Vincent has to offer. With a thriving community of homeowners and rental members, this beautiful community has been designed for social connection. Homeowners can seek out their friends in the comfortable communal lounge, or head out to the landscaped gardens.
Residents can also take advantage of the wellness amenities including a wellness spa and gym.
Feeling safe is an important aspect of well-being. At The Vincent, 24-hour video entry phones and a dedicated on-site team - present here for seven days a week - are part of an advanced security system that brings complete peace of mind.
For those occasions where you are hosting friends and family, The Vincent provides a guest suite that can be booked through the on-site team.
Images are of our dressed apartment and communal space. Speak with our sales team to arrange a viewing.
*Incentive is only valid on new reservations on selected apartments between 15th September 2025 and 31st January 2026. The property transaction must be completed by 30th March 2026. The Stamp Duty payment will only be made on Tier 1 Stamp Duty Land Tax and will be paid upon completion as a financial contribution deducted from the completion statement. Pegasus Homes reserve the right to refuse agents and must agree to the marketed selling price. The legal fee contribution is only applicable when customers use a solicitor from our recommended panel of solicitors. The £100,000 cash back incentive will be paid upon completion as a financial contribution deducted from the completion statement. This promotion ends on 31st January 2026. Pegasus Homes reserves the right to amend, extend or withdraw offers and promotions at any time. For full terms visit pegasushomes.co.uk/company/legal/terms-and-conditions/
- COUNCIL TAXA payment made to your local authority in order to pay for local services like schools, libraries, and refuse collection. The amount you pay depends on the value of the property.Read more about council Tax in our glossary page.
- Ask developer
- PARKINGDetails of how and where vehicles can be parked, and any associated costs.Read more about parking in our glossary page.
- Permit,Off street,Allocated,Residents,Private,Communal
- GARDENA property has access to an outdoor space, which could be private or shared.
- Communal garden
- ACCESSIBILITYHow a property has been adapted to meet the needs of vulnerable or disabled individuals.Read more about accessibility in our glossary page.
- Lift access
- Amazing Bristol location
- On-site parking
- Luxury facilities on site such as restaurant, gym & spa
- Within a vibrant community
Redland Hill Redland Bristol BS6 6BJ
Add an important place to see how long it'd take to get there from our property listings.
__mins driving to your place
About Pegasus Homes
Pegasus are redefining retirement through the creation of high-quality homes and communities, to further enrich our customers lives. We build exceptional homes and spaces uniquely designed for independent living. Our properties are set in desirable locations across the UK and each offers an exclusive experience and an unwavering focus on the provision of excellent service.
Notes
Staying secure when looking for property
Ensure you're up to date with our latest advice on how to avoid fraud or scams when looking for property online.
Visit our security centre to find out moreDisclaimer - Property reference Apt_16_Oct25. The information displayed about this property comprises a property advertisement. Rightmove.co.uk makes no warranty as to the accuracy or completeness of the advertisement or any linked or associated information, and Rightmove has no control over the content. This property advertisement does not constitute property particulars. The information is provided and maintained by Pegasus Homes. Please contact the selling agent or developer directly to obtain any information which may be available under the terms of The Energy Performance of Buildings (Certificates and Inspections) (England and Wales) Regulations 2007 or the Home Report if in relation to a residential property in Scotland.
*This is the average speed from the provider with the fastest broadband package available at this postcode. The average speed displayed is based on the download speeds of at least 50% of customers at peak time (8pm to 10pm). Fibre/cable services at the postcode are subject to availability and may differ between properties within a postcode. Speeds can be affected by a range of technical and environmental factors. The speed at the property may be lower than that listed above. You can check the estimated speed and confirm availability to a property prior to purchasing on the broadband provider's website. Providers may increase charges. The information is provided and maintained by Decision Technologies Limited. **This is indicative only and based on a 2-person household with multiple devices and simultaneous usage. Broadband performance is affected by multiple factors including number of occupants and devices, simultaneous usage, router range etc. For more information speak to your broadband provider.
Map data ©OpenStreetMap contributors.





