
St. Gregorys Avenue, Salisbury, Wiltshire, SP2
- PROPERTY TYPE
Plot
- SIZE
Ask agent
Description
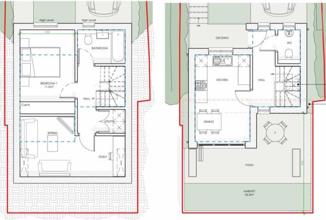
Offered to the market is an opportunity to buy a building plot measuring approximately 95 Sq Meters in size with planning permission for a detached one bedroom property in the popular residential area of St Gregory Avenue. Planning number: PL/2024/07673
On site there is currently a double garage with a drive in front.
- Building Plot
- Approximately 95 Sq meter plot
- Planning Permission for a detached 1 bedroom property
- Small garden
- Driveway parking
The property is conveniently situated on the western edge of the City where there are a number of local facilities including, a regular bus service into the City Centre and to the Salisbury District Hospital. There is schooling, nearby, convenience stores, and a variety of shops along Wilton Road. Salisbury has an excellent range of educational, recreational, leisure and shopping facilities which combine with a twice weekly market in addition to a mainline railway station (Waterloo).
St. Gregorys Avenue, Salisbury, Wiltshire, SP2
NEAREST STATIONS
Distances are straight line measurements from the centre of the postcode- Salisbury Station0.8 miles
Notes
Disclaimer - Property reference SAL250292. The information displayed about this property comprises a property advertisement. Rightmove.co.uk makes no warranty as to the accuracy or completeness of the advertisement or any linked or associated information, and Rightmove has no control over the content. This property advertisement does not constitute property particulars. The information is provided and maintained by Woolley & Wallis, Salisbury. Please contact the selling agent or developer directly to obtain any information which may be available under the terms of The Energy Performance of Buildings (Certificates and Inspections) (England and Wales) Regulations 2007 or the Home Report if in relation to a residential property in Scotland.
Map data ©OpenStreetMap contributors.








