Hauxley Drive, Chester Le Street, County Durham, DH2

- PROPERTY TYPE
Detached
- BEDROOMS
6
- BATHROOMS
3
- SIZE
Ask agent
- TENUREDescribes how you own a property. There are different types of tenure - freehold, leasehold, and commonhold.Read more about tenure in our glossary page.
Freehold
Key features
- Six Bedrooms
- Stone Built Detached
- Substantial Plot
- Three Reception Rooms
- Impressive Dining Kitchen
- Three Bathrooms
- Double Garage
- Extensive Driveway
- Council Tax Band G
- EPC Rating C
Description
Waldridge Lodge – An Exceptional Detached Family Residence
Waldridge Lodge is a truly stunning six-bedroom detached family home, constructed circa 2000 with an exceptional level of craftsmanship and finished in beautiful reclaimed stone. Situated on the highly regarded Hauxley Drive in Waldridge Fell, to the west of Chester-le-Street, this striking residence occupies a generous and mature plot extending to approximately a quarter of an acre. Perfectly blending traditional charm with modern luxury, this home offers both elegance and functionality in equal measure.
The property is approached via electronically controlled gates, opening to an expansive driveway with ample parking for multiple cars, all framed by landscaped gardens that set the tone for the grandeur within.
Upon entering, the fabulous reception hallway immediately impresses, with its soaring vaulted ceiling and bespoke feature staircase creating a wonderful sense of space and light. From here, access flows seamlessly into the principal living areas. The dual-aspect formal lounge is a refined yet welcoming room, centred around a modern fireplace, with a bay window to the front and French doors opening directly to the rear gardens—an ideal space for both relaxing and entertaining.
At the heart of the home lies the spectacular open-plan dining kitchen, designed with modern family living in mind. This sociable hub offers an extensive range of fitted units, integrated appliances, and a central preparation island. The adjoining dining area enjoys direct access to the gardens via patio doors, creating an effortless inside-outside flow, perfect for summer gatherings.
Further ground floor accommodation includes a superb cinema room for immersive family entertainment, and a generously proportioned family room, enhanced by dual sets of patio doors which open out onto the garden. A useful utility room and a stylish guest cloakroom complete the ground floor.
The first floor is home to a magnificent principal suite, featuring a vaulted ceiling, dual-aspect windows, and a luxuriously appointed en-suite shower room. Two further double bedrooms can be found on this level, one of which enjoys its own en-suite, while the spacious family bathroom offers a Jacuzzi-style bath and a separate shower enclosure, adding to the sense of indulgence.
The second floor provides a versatile arrangement of three further well-proportioned bedrooms, all serviced by a shower room complete with sauna—a rare and enviable feature.
Externally, the landscaped gardens are a true highlight of Waldridge Lodge, offering an idyllic blend of manicured lawns, established planting, and mature trees. Entertaining is well catered for with a bespoke outdoor bar area, generous patios for alfresco dining, and ample space for family recreation. A detached double garage further enhances the property, incorporating a built-in bar and a workshop, offering practicality alongside leisure.
Perfectly positioned, Waldridge Lodge is within convenient reach of local shops, schools, and amenities in Chester-le-Street, while enjoying transport links to the wider region. This rare opportunity combines the tranquility of a semi-rural setting with the convenience of nearby town living, making it an ideal home for discerning buyers seeking style, space, and luxury.
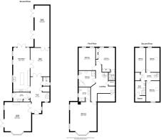
Reception Hallway
7.24m x 3.8m
Formal Lounge
5.84m x 5.3m
Dining Kitchen
8.81m x 3.33m
Utility Room
3.33m x 1.65m
Cinema Room
5.74m x 3.8m
Family Room
8.36m x 2.97m
Guest WC
First Floor Landing
Master Bedroom
5.84m x 5.3m
En-suite
Bedroom Two
4.83m x 3.8m
En-Suite
Bedroom Three
4.52m x 3.33m
Bathroom
3.3m x 3.2m
Second Floor Landing
Bedroom Four
4.88m x 2.7m
Bedroom Five
4.11m x 2.7m
Bedroom Six
4.88m x 2.1m
Shower Room
2.84m x 2.1m
Tenure
Sarah Mains Residential have been advised by the vendor that this property is Freehold, although we have not seen any legal written confirmation to be able to confirm this. Please contact the branch if you have any queries in relation to the tenure before proceeding to purchase the property.
Property Information
Local Authority: Durham Flood Risk: This property is listed as currently having a very low risk of flooding although we have not seen any legal written confirmation to be able to confirm this. Please contact the branch if you have any queries in relation to the flood risk before proceeding to purchase the property. TV and Broadband: BT, Sky – Basic, Superfast, Ultrafast in the area Mobile Network Coverage: EE, Vodafone, Three, O2 in the area Please note, we have not seen any documentary evidence to be able to confirm the above information and recommend potential purchasers contact the relevant suppliers before proceeding to purchase the property.
Recording Devices
Please be aware that some properties may be equipped with CCTV, video doorbells, or other recording devices (including internal audio/video surveillance) for security purposes. While viewings are conducted in private homes, we ask that all attendees respect that the property owner may choose to monitor or record access to their home. If you have any concerns regarding this, please speak to a member of our team prior to your appointment. We have advised all vendors that any recording during viewings should be disclosed and used strictly for personal purposes only, in accordance with data protection and privacy laws.
Brochures
Web Details- COUNCIL TAXA payment made to your local authority in order to pay for local services like schools, libraries, and refuse collection. The amount you pay depends on the value of the property.Read more about council Tax in our glossary page.
- Band: G
- PARKINGDetails of how and where vehicles can be parked, and any associated costs.Read more about parking in our glossary page.
- Garage,Driveway
- GARDENA property has access to an outdoor space, which could be private or shared.
- Yes
- ACCESSIBILITYHow a property has been adapted to meet the needs of vulnerable or disabled individuals.Read more about accessibility in our glossary page.
- Ask agent
Hauxley Drive, Chester Le Street, County Durham, DH2
Add an important place to see how long it'd take to get there from our property listings.
__mins driving to your place
Get an instant, personalised result:
- Show sellers you’re serious
- Secure viewings faster with agents
- No impact on your credit score
About Sarah Mains Residential Sales and Lettings, Low Fell
Sanderson Mews 4 Beaconsfield Road Gateshead NE9 5EU



Your mortgage
Notes
Staying secure when looking for property
Ensure you're up to date with our latest advice on how to avoid fraud or scams when looking for property online.
Visit our security centre to find out moreDisclaimer - Property reference LOW240440. The information displayed about this property comprises a property advertisement. Rightmove.co.uk makes no warranty as to the accuracy or completeness of the advertisement or any linked or associated information, and Rightmove has no control over the content. This property advertisement does not constitute property particulars. The information is provided and maintained by Sarah Mains Residential Sales and Lettings, Low Fell. Please contact the selling agent or developer directly to obtain any information which may be available under the terms of The Energy Performance of Buildings (Certificates and Inspections) (England and Wales) Regulations 2007 or the Home Report if in relation to a residential property in Scotland.
*This is the average speed from the provider with the fastest broadband package available at this postcode. The average speed displayed is based on the download speeds of at least 50% of customers at peak time (8pm to 10pm). Fibre/cable services at the postcode are subject to availability and may differ between properties within a postcode. Speeds can be affected by a range of technical and environmental factors. The speed at the property may be lower than that listed above. You can check the estimated speed and confirm availability to a property prior to purchasing on the broadband provider's website. Providers may increase charges. The information is provided and maintained by Decision Technologies Limited. **This is indicative only and based on a 2-person household with multiple devices and simultaneous usage. Broadband performance is affected by multiple factors including number of occupants and devices, simultaneous usage, router range etc. For more information speak to your broadband provider.
Map data ©OpenStreetMap contributors.




