Unit 2, Newcombe House, Rosemount Estates, Elland, HX5 0EE
- SIZE AVAILABLE
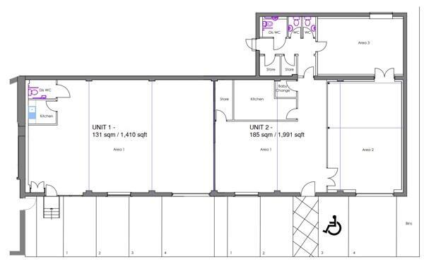
1,991 sq ft
185 sq m
- SECTOR
Office to lease
Lease details
- Lease available date:
- Now
Key features
- Ground Floor Industrial Unit
- 1,991 Sq Ft (184.96 Sq M)
- Newly Refurbished
- Designated Parking
Description
The property (once refurbished) will benefit from having:
- Drive in access via a steel roller shutter;
- Newly painted, solid concrete floor;
- LED lighting;
- Kitchen facilities;
- WC facilities;
- Personnel access door;
- Electric panel heaters to the kitchen and WC facilities;
- Separate self-contained office area.
Externally, the property benefits from having parking for 4 cars which includes 1 disabled parking bay.
External photograph for indicative purposes only.
Rosemount Estate
Rosemount Estate is a secure well-regarded, privately owned and managed industrial estate and is home to a range of industrial, manufacturing and office tenants. The Estate is within walking distance of Elland town centre where a range of amenities are available.
Mains services connected to the premises include electricity, water and drainage. Please note these services have not been tried or tested and any interested parties are advised to satisfy themselves as to suitability and condition.
Brochures
Unit 2, Newcombe House, Rosemount Estates, Elland, HX5 0EE
NEAREST STATIONS
Distances are straight line measurements from the centre of the postcode- Brighouse Station2.4 miles
- Halifax Station2.9 miles
- Huddersfield Station2.9 miles
Notes
Disclaimer - Property reference 104041LH. The information displayed about this property comprises a property advertisement. Rightmove.co.uk makes no warranty as to the accuracy or completeness of the advertisement or any linked or associated information, and Rightmove has no control over the content. This property advertisement does not constitute property particulars. The information is provided and maintained by Walker Singleton (Commercial), Halifax. Please contact the selling agent or developer directly to obtain any information which may be available under the terms of The Energy Performance of Buildings (Certificates and Inspections) (England and Wales) Regulations 2007 or the Home Report if in relation to a residential property in Scotland.
Map data ©OpenStreetMap contributors.




