
The Heron, 5 Moor Lanes, EC2Y

Letting details
- Let available date:
- Ask agent
- Deposit:
- £0A deposit provides security for a landlord against damage, or unpaid rent by a tenant.Read more about deposit in our glossary page.
- Min. Tenancy:
- Ask agent How long the landlord offers to let the property for.Read more about tenancy length in our glossary page.
- Let type:
- Long term
- Furnish type:
- Furnished
- Council Tax:
- Ask agent
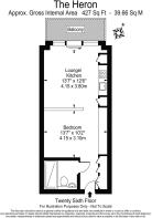
- PROPERTY TYPE
Studio
- BATHROOMS
1
- SIZE
408 sq ft
38 sq m
Key features
- Managed by CBRE
- Residents lounge
- Residents Bar
- Club Reception
- Garden Terrace
- Screening Room
- 24 hour concierge
- Private balcony
- Council tax band: E
Description
Moreover, this apartment features a video entry security system, surround sound and air conditioning.
This collection of inspired city apartments boast an unrivalled location and exceptional views. All residents will have their own private entrance to The Heron via Moor Lane, where they will be greeted by a dramatic and exclusive double height entrance lobby.
The Heron also offers residents with a tranquil landscaped roof garden and membership to The Heron's exclusive private club. This includes a private residents' restaurant and bar, state of the art gymnasium, a private screening room and conference facilities.
For more information about our fees please visit our web-site's 'Tenant Fees' page located under the Rent tab.
CBRE Limited on its behalf and for the Vendors or Lessors of this property whose Agents they are, give notice that:
1. These particulars are set out as a general outline only for guidance to intending Purchasers or Lessees, and do not constitute any part of an offer or contract.
2.Whilst CBRE Limited uses reasonable endeavours to ensure that the information in these particulars is materially correct, some of the information is derived from third parties and has not been verified by us. Any intending Purchasers, Lessees or Third Parties should not rely on this information as a statement or representation of fact, but must satisfy themselves by their own inspection, searches, enquiries, surveys or otherwise as to the accuracy and completeness.
3. To the maximum extent permitted by law CBRE Limited accepts no liability or responsibility for any loss or damage including without limitation, indirect or consequential loss or damage, or any loss of profits resulting from direct or indirect actions based upon the content of these particulars. No person in the employment of CBRE Limited has any authority to make any representation or warranty whatsoever in relation to this property.
4. Unless otherwise stated, all purchase prices and rents are correct at the date of publication and, unless otherwise stated, are quoted exclusive of VAT. Lease details and service ground rent (where applicable) are given as a guide only and should be checked and confirmed by your solicitor prior to exchange of contracts.
- COUNCIL TAXA payment made to your local authority in order to pay for local services like schools, libraries, and refuse collection. The amount you pay depends on the value of the property.Read more about council Tax in our glossary page.
- Band: TBC
- PARKINGDetails of how and where vehicles can be parked, and any associated costs.Read more about parking in our glossary page.
- Ask agent
- GARDENA property has access to an outdoor space, which could be private or shared.
- Yes
- ACCESSIBILITYHow a property has been adapted to meet the needs of vulnerable or disabled individuals.Read more about accessibility in our glossary page.
- Ask agent
The Heron, 5 Moor Lanes, EC2Y
Add an important place to see how long it'd take to get there from our property listings.
__mins driving to your place
Notes
Staying secure when looking for property
Ensure you're up to date with our latest advice on how to avoid fraud or scams when looking for property online.
Visit our security centre to find out moreDisclaimer - Property reference CAL150065_L. The information displayed about this property comprises a property advertisement. Rightmove.co.uk makes no warranty as to the accuracy or completeness of the advertisement or any linked or associated information, and Rightmove has no control over the content. This property advertisement does not constitute property particulars. The information is provided and maintained by CBRE Residential, East London. Please contact the selling agent or developer directly to obtain any information which may be available under the terms of The Energy Performance of Buildings (Certificates and Inspections) (England and Wales) Regulations 2007 or the Home Report if in relation to a residential property in Scotland.
*This is the average speed from the provider with the fastest broadband package available at this postcode. The average speed displayed is based on the download speeds of at least 50% of customers at peak time (8pm to 10pm). Fibre/cable services at the postcode are subject to availability and may differ between properties within a postcode. Speeds can be affected by a range of technical and environmental factors. The speed at the property may be lower than that listed above. You can check the estimated speed and confirm availability to a property prior to purchasing on the broadband provider's website. Providers may increase charges. The information is provided and maintained by Decision Technologies Limited. **This is indicative only and based on a 2-person household with multiple devices and simultaneous usage. Broadband performance is affected by multiple factors including number of occupants and devices, simultaneous usage, router range etc. For more information speak to your broadband provider.
Map data ©OpenStreetMap contributors.








