
Stanlowe View, Grassendale, Liverpool, L19

- PROPERTY TYPE
- Detached 
- BEDROOMS
- 4 
- BATHROOMS
- 1 
- SIZE
- Ask agent 
- TENUREDescribes how you own a property. There are different types of tenure - freehold, leasehold, and commonhold.Read more about tenure in our glossary page.
- Freehold 
Key features
- Impressive Four Bedroom Detached Residence
- Prime Location In Desirable Grassendale Area
- Expansive & Beautifully Finished Throughout
- Entrance Hall, Family Lounge & Dining Room
- Generous Kitchen Diner & Ground Floor WC
- Four Bright & Well-Proportioned Bedrooms
- Modern Four-Piece Family Bathroom Suite
- Fantastic Rear Garden, Driveway & Garage
Description
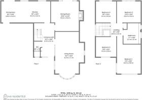
Upon entering the residence, you are greeted by an inviting entrance hall which leads through to a bright and spacious family lounge. Finished in a neutral décor featuring attractive wood style flooring, this presents a welcoming space for relaxation and entertaining. Following this is an impeccably presented dining room, enjoying a feature fireplace and a set of french doors to the rear, providing a charming setting for enjoying family mealtimes and hosting guests. Continuing through you will find a generous kitchen diner complete with a range of modern fitted base and wall units, complementary worktops providing plentiful surface space, and a selection of integrated appliances. With ample room to accommodate a dining table, this offers a social space for casual dining and cooking in company. Concluding the extensive ground floor is a convenient WC.
Ascending to the first floor, you will discover four well-proportioned double bedrooms, each finished to an excellent standard and receiving an abundance of natural light, with the master room further enjoying scenic views over the River Mersey. Accompanying the sleeping accommodation and adding the finishing touch to the interior of this wonderful home is a contemporary style four-piece family bathroom suite.
Externally, the residence is further enhanced by a substantial and well-maintained rear garden which provides a fantastic outdoor space for the whole household to enjoy. A vast lawn offers plenty of room for recreational activities, whilst a patio area presents a serene spot for enjoying al-fresco dining and entertaining. To the front, a driveway provides ample off-road parking, leading up to an integral double garage which offers an abundance of additional storage space.
Enviably located in close proximity to sports and leisure facilities such as Aigburth Cricket Club, as well as many highly regarded schools including Sudley Primary School, this is a prime spot for a family home.
Brochures
Property BrochureFull Details- COUNCIL TAXA payment made to your local authority in order to pay for local services like schools, libraries, and refuse collection. The amount you pay depends on the value of the property.Read more about council Tax in our glossary page.
- Band: F
- PARKINGDetails of how and where vehicles can be parked, and any associated costs.Read more about parking in our glossary page.
- Yes
- GARDENA property has access to an outdoor space, which could be private or shared.
- Yes
- ACCESSIBILITYHow a property has been adapted to meet the needs of vulnerable or disabled individuals.Read more about accessibility in our glossary page.
- Ask agent
Stanlowe View, Grassendale, Liverpool, L19
Add an important place to see how long it'd take to get there from our property listings.
__mins driving to your place
Get an instant, personalised result:
- Show sellers you’re serious
- Secure viewings faster with agents
- No impact on your credit score

Your mortgage
Notes
Staying secure when looking for property
Ensure you're up to date with our latest advice on how to avoid fraud or scams when looking for property online.
Visit our security centre to find out moreDisclaimer - Property reference 11793075. The information displayed about this property comprises a property advertisement. Rightmove.co.uk makes no warranty as to the accuracy or completeness of the advertisement or any linked or associated information, and Rightmove has no control over the content. This property advertisement does not constitute property particulars. The information is provided and maintained by Move Residential, Mossley Hill. Please contact the selling agent or developer directly to obtain any information which may be available under the terms of The Energy Performance of Buildings (Certificates and Inspections) (England and Wales) Regulations 2007 or the Home Report if in relation to a residential property in Scotland.
*This is the average speed from the provider with the fastest broadband package available at this postcode. The average speed displayed is based on the download speeds of at least 50% of customers at peak time (8pm to 10pm). Fibre/cable services at the postcode are subject to availability and may differ between properties within a postcode. Speeds can be affected by a range of technical and environmental factors. The speed at the property may be lower than that listed above. You can check the estimated speed and confirm availability to a property prior to purchasing on the broadband provider's website. Providers may increase charges. The information is provided and maintained by Decision Technologies Limited. **This is indicative only and based on a 2-person household with multiple devices and simultaneous usage. Broadband performance is affected by multiple factors including number of occupants and devices, simultaneous usage, router range etc. For more information speak to your broadband provider.
Map data ©OpenStreetMap contributors.





