
Lund Close, Barnsley, S71
- PROPERTY TYPE
Land
- BATHROOMS
1
- SIZE
Ask agent
Key features
- Land With Planning Permission
- Perfect For Investors
- Freehold
- Starting Bids £140,000
Description
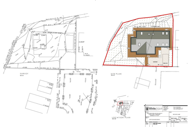
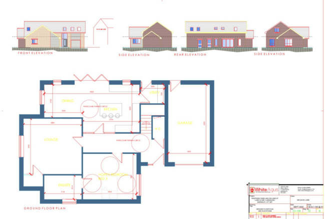
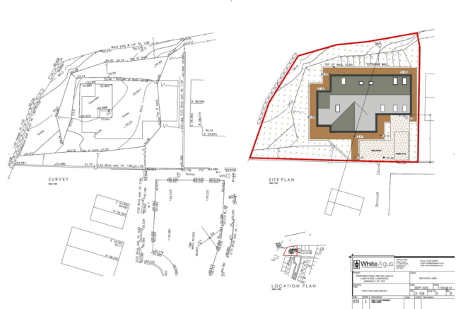
Land with Planning Permission for Dormer Bungalow
A fantastic opportunity to acquire a plot of land with full planning permission granted for a substantial dormer bungalow. Situated in a desirable location, this site offers the chance to build a modern, bespoke home tailored to your own needs and lifestyle.
The approved plans provide for a spacious and well-designed layout, with modern living on the ground floor and three large bedrooms and a family bathroom upstairs. One of the upstairs bedrooms could be divided to create a fourth bedroom if desired, offering great flexibility for growing families or home working.
This is not a typical downsizer’s property — the proposed bungalow is generously proportioned, both in footprint and layout, making it ideal for those seeking the comfort of single-level living with the space of a large family home. We recommend reviewing the full plans and comparing to neighbouring homes and bungalows to fully appreciate the size and scope of this exceptional opportunity.
Located close to local amenities, schools, and excellent transport links, the site provides both convenience and the potential for a truly stunning new home.
Opportunities like this are rare – whether you’re an individual looking to create your dream property or a developer seeking your next project, this land with planning permission is not to be missed.
Property Description Disclaimer
This is a general description of the property only, and is not intended to constitute part of an offer or contract. It has been verified by the seller(s), unless marked as 'draft'. Purplebricks conducts some valuations online and some of our customers prepare their own property descriptions, so if you decide to proceed with a viewing or an offer, please note this information may have been provided solely by the vendor, and we may not have been able to visit the property to confirm it. If you require clarification on any point then please contact us, especially if you’re traveling some distance to view. All information should be checked by your solicitor prior to exchange of contracts.
Successful buyers will be required to complete anti-money laundering and proof of funds checks. Our partner, Lifetime Legal Limited, will carry out the initial checks on our behalf. The current non-refundable cost is £80 inc. VAT per offer. You’ll need to pay this to Lifetime Legal and complete all checks before we can issue a memorandum of sale. The cost includes obtaining relevant data and any manual checks and monitoring which might be required, and includes a range of benefits. Purplebricks will receive some of the fee taken by Lifetime Legal to compensate for its role in providing these checks.
Brochures
BrochureEnergy Performance Certificates
epcLund Close, Barnsley, S71
NEAREST STATIONS
Distances are straight line measurements from the centre of the postcode- Barnsley Station2.0 miles
- Wombwell Station3.1 miles
- Elsecar Station4.3 miles
Notes
Disclaimer - Property reference 1930186-1. The information displayed about this property comprises a property advertisement. Rightmove.co.uk makes no warranty as to the accuracy or completeness of the advertisement or any linked or associated information, and Rightmove has no control over the content. This property advertisement does not constitute property particulars. The information is provided and maintained by Purplebricks, covering Sheffield. Please contact the selling agent or developer directly to obtain any information which may be available under the terms of The Energy Performance of Buildings (Certificates and Inspections) (England and Wales) Regulations 2007 or the Home Report if in relation to a residential property in Scotland.
Map data ©OpenStreetMap contributors.






