Anchor Quay, Penryn

- PROPERTY TYPE
Apartment
- BEDROOMS
2
- BATHROOMS
2
- SIZE
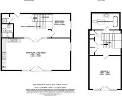
1,259 sq ft
117 sq m
Key features
- Spacious Grade II Listed two-storey top-floor apartment
- Large 31' river-facing living/kitchen area
- Stunning elevated river and harbour views
- Two Juliet balconies
- Undercover tandem parking included
- Two high-quality bath/shower rooms
- Integrated kitchen appliances and granite worktops
- Exposed stone & beams retain character
- Solid timber flooring and premium finishes
- No restrictions with letting or keeping well behaved pets
Description
Occupying an elevated, river-facing position within this landmark harbourside development, this outstanding top-floor, double-storey Grade II Listed apartment offers luxurious, uncompromising accommodation of exceptional proportions (1259 sq.ft in total), rarely found in properties of this type. The spacious living room alone extends to an impressive 31'0", forming the heart of a home that beautifully blends modern sophistication with historic character. Developed in collaboration with English Heritage, the building's renovation was carried out with sensitivity to the surrounding area's rich architectural and cultural heritage.
This stylish and contemporary residence retains much of the original charm of the historic building, with exposed stone walls, timber beams, and a wealth of character throughout. High-quality fixtures and finishes include solid timber flooring, a stunning lower-level shower room, and an indulgent upper-floor bathroom/en-suite complete with a free-standing bath. The beautifully designed kitchen features solid granite worktops and a full range of integrated appliances, ideal for both everyday living and entertaining.
Whether as a permanent residence, second home, or investment property, this exceptional apartment offers versatile and generous living space. Tastefully decorated in a neutral palette, the apartment benefits from timber casement double-glazed windows, gas-fired central heating, and thoughtful design throughout.
Located at the gateway to the ancient borough town of Penryn, the apartment is ideally situated within easy reach of Penryn’s town centre and the vibrant port of Falmouth—one of Cornwall’s premier sailing destinations. Here, the tranquil waters of Falmouth Bay and the wooded creeks of the Fal Estuary and Helford River are virtually on your doorstep.
Excellent boating facilities are available just minutes away, including moorings along the Penryn River, Falmouth Harbour, Ponsharden boatyards, Falmouth Marina on North Parade, and the prestigious Royal Cornwall Yacht Club at Greenbank. The port of Falmouth continues to attract visiting cruise liners, drawn by the area’s breathtaking natural beauty, subtropical gardens, eclectic shopping and dining scene, historic Tudor castle, seafront promenades, and safe, sandy beaches.
ADDITIONAL INFORMATION
Tenure - Leasehold (980 years remaining) with an annual service charge of £2,200. Smart management company in Penryn, run and maintain the building. We understand there are no restrictions on holiday letting and well behaved pets are allowed. The undercover parking for Number 6 (identified/marked as 'AK') is held on a long lease and a separate fee of £353 covers an annual maintenance charge. Possession - Vacant possession with the benefit of no onward chain. Services - Mains gas central heating, mains water and drainage. Council Tax - Band D.
Brochures
Anchor Quay, Penryn- COUNCIL TAXA payment made to your local authority in order to pay for local services like schools, libraries, and refuse collection. The amount you pay depends on the value of the property.Read more about council Tax in our glossary page.
- Band: D
- LISTED PROPERTYA property designated as being of architectural or historical interest, with additional obligations imposed upon the owner.Read more about listed properties in our glossary page.
- Listed
- PARKINGDetails of how and where vehicles can be parked, and any associated costs.Read more about parking in our glossary page.
- Covered
- GARDENA property has access to an outdoor space, which could be private or shared.
- Yes
- ACCESSIBILITYHow a property has been adapted to meet the needs of vulnerable or disabled individuals.Read more about accessibility in our glossary page.
- Ask agent
Anchor Quay, Penryn
Add an important place to see how long it'd take to get there from our property listings.
__mins driving to your place
Get an instant, personalised result:
- Show sellers you’re serious
- Secure viewings faster with agents
- No impact on your credit score
Your mortgage
Notes
Staying secure when looking for property
Ensure you're up to date with our latest advice on how to avoid fraud or scams when looking for property online.
Visit our security centre to find out moreDisclaimer - Property reference 34211420. The information displayed about this property comprises a property advertisement. Rightmove.co.uk makes no warranty as to the accuracy or completeness of the advertisement or any linked or associated information, and Rightmove has no control over the content. This property advertisement does not constitute property particulars. The information is provided and maintained by Tom Wills - Personal Property Agents, Falmouth. Please contact the selling agent or developer directly to obtain any information which may be available under the terms of The Energy Performance of Buildings (Certificates and Inspections) (England and Wales) Regulations 2007 or the Home Report if in relation to a residential property in Scotland.
*This is the average speed from the provider with the fastest broadband package available at this postcode. The average speed displayed is based on the download speeds of at least 50% of customers at peak time (8pm to 10pm). Fibre/cable services at the postcode are subject to availability and may differ between properties within a postcode. Speeds can be affected by a range of technical and environmental factors. The speed at the property may be lower than that listed above. You can check the estimated speed and confirm availability to a property prior to purchasing on the broadband provider's website. Providers may increase charges. The information is provided and maintained by Decision Technologies Limited. **This is indicative only and based on a 2-person household with multiple devices and simultaneous usage. Broadband performance is affected by multiple factors including number of occupants and devices, simultaneous usage, router range etc. For more information speak to your broadband provider.
Map data ©OpenStreetMap contributors.




