Sherbourne Court, Anerley

Letting details
- Let available date:
- 18/10/2025
- Deposit:
- £1,956A deposit provides security for a landlord against damage, or unpaid rent by a tenant.Read more about deposit in our glossary page.
- Min. Tenancy:
- Ask agent How long the landlord offers to let the property for.Read more about tenancy length in our glossary page.
- Let type:
- Long term
- Furnish type:
- Part furnished
- Council Tax:
- Ask agent
- PROPERTY TYPE
Flat
- BEDROOMS
2
- SIZE
Ask agent
Key features
- Two bedrooom apartment
- Located on the 4th floor with a lift
- Unfurnished
- Immaculately presented
- Both doubles but main bedroom is larger
- Stunning modern kitchen
- Gorgeous bathroom with large walk in shower
- Free heating and hot water for 6 months of year
- Available October 18th
- EPC Rating C
Description
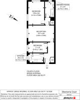
The property offers a modern fitted kitchen and contemporary bathroom with a walk-in double shower, plus a bright and welcoming lounge with feature wall. There are two bedrooms - a generous double and a smaller double - providing flexible accommodation, ideal for a couple of two friends. The flat is double glazed throughout, mainly carpeted, and presented in excellent condition.
This home is offered unfurnished, although a sofa bed can remain in the second bedroom if required. Another standout feature is that, for six months of the year, the rent includes free heating and hot water - a valuable benefit for tenants.
Sherbourne Court is a well-regarded 1930's development in a sought-after Anerley location, perfectly placed for Anerley train station, Penge centre and Norwood Junction, providing superb transport links into Central London and beyond. The green open spaces of Crystal Palace Park and surrounding areas add to the appeal, balancing convenience with outdoor living.
A fabulous property in a prime SE20 location - early viewing is strongly recommended. Available from October 18th.
Brochures
CMP MemberShip CertiD01416 Mem Cert SYDET03318 Mem Cert PENG- COUNCIL TAXA payment made to your local authority in order to pay for local services like schools, libraries, and refuse collection. The amount you pay depends on the value of the property.Read more about council Tax in our glossary page.
- Ask agent
- PARKINGDetails of how and where vehicles can be parked, and any associated costs.Read more about parking in our glossary page.
- Ask agent
- GARDENA property has access to an outdoor space, which could be private or shared.
- Ask agent
- ACCESSIBILITYHow a property has been adapted to meet the needs of vulnerable or disabled individuals.Read more about accessibility in our glossary page.
- Ask agent
Energy performance certificate - ask agent
Sherbourne Court, Anerley
Add an important place to see how long it'd take to get there from our property listings.
__mins driving to your place
Notes
Staying secure when looking for property
Ensure you're up to date with our latest advice on how to avoid fraud or scams when looking for property online.
Visit our security centre to find out moreDisclaimer - Property reference SHERB27. The information displayed about this property comprises a property advertisement. Rightmove.co.uk makes no warranty as to the accuracy or completeness of the advertisement or any linked or associated information, and Rightmove has no control over the content. This property advertisement does not constitute property particulars. The information is provided and maintained by Property World Penge, London - Lettings. Please contact the selling agent or developer directly to obtain any information which may be available under the terms of The Energy Performance of Buildings (Certificates and Inspections) (England and Wales) Regulations 2007 or the Home Report if in relation to a residential property in Scotland.
*This is the average speed from the provider with the fastest broadband package available at this postcode. The average speed displayed is based on the download speeds of at least 50% of customers at peak time (8pm to 10pm). Fibre/cable services at the postcode are subject to availability and may differ between properties within a postcode. Speeds can be affected by a range of technical and environmental factors. The speed at the property may be lower than that listed above. You can check the estimated speed and confirm availability to a property prior to purchasing on the broadband provider's website. Providers may increase charges. The information is provided and maintained by Decision Technologies Limited. **This is indicative only and based on a 2-person household with multiple devices and simultaneous usage. Broadband performance is affected by multiple factors including number of occupants and devices, simultaneous usage, router range etc. For more information speak to your broadband provider.
Map data ©OpenStreetMap contributors.