
Land Off Church Road, West Kingsdown, TN15
- PROPERTY TYPE
Land
- SIZE
Ask agent
Key features
- Contact Brookbanks for full details and viewing arrangements
- Planning documents available for review on request
- Potential for capital growth and strong resale value
- Excellent transport links and local amenities nearby
- Attractive residential location with strong local demand
- Superb self-build opportunity for a bespoke home
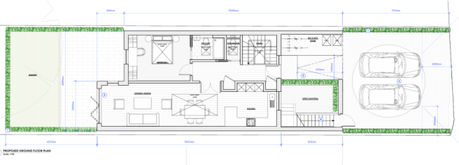
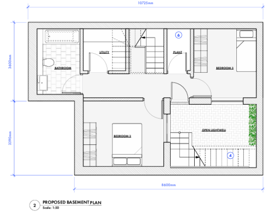
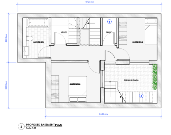
- Planning approved for a 3-bedroom detached property (subject to solicitor checks)
- Rare chance to purchase a parcel of land with development potential
Description
Land for Sale – Self-Build Opportunity with Planning Potential
Brookbanks are delighted to present this rare opportunity to acquire a parcel of land with approved planning permission (subject to solicitor verification) for the development of a three-bedroom detached property.
Located in a sought-after residential area, this plot offers the perfect chance for those looking to create their own home from the ground up, whether as a personal project or an investment.
Key Features:
• Plot with approved planning for a 3-bedroom property
• Exciting self-build opportunity
• Planning documents available for inspection (subject to legal checks)
• Excellent potential for capital growth
• Highly desirable residential setting
This site represents a fantastic chance to design and build a bespoke family home tailored to your needs. With strong local demand and excellent transport links nearby, it’s a proposition not to be missed.
Land Off Church Road, West Kingsdown, TN15
NEAREST STATIONS
Distances are straight line measurements from the centre of the postcode- Eynsford Station2.7 miles
- Shoreham Station3.2 miles
- Kemsing Station3.4 miles
Notes
Disclaimer - Property reference S1462805. The information displayed about this property comprises a property advertisement. Rightmove.co.uk makes no warranty as to the accuracy or completeness of the advertisement or any linked or associated information, and Rightmove has no control over the content. This property advertisement does not constitute property particulars. The information is provided and maintained by Brookbanks Estate Agents, Swanley. Please contact the selling agent or developer directly to obtain any information which may be available under the terms of The Energy Performance of Buildings (Certificates and Inspections) (England and Wales) Regulations 2007 or the Home Report if in relation to a residential property in Scotland.
Map data ©OpenStreetMap contributors.








