
Church Street, Ellesmere.

- PROPERTY TYPE
Terraced
- BEDROOMS
5
- BATHROOMS
2
- SIZE
2,078 sq ft
193 sq m
- TENUREDescribes how you own a property. There are different types of tenure - freehold, leasehold, and commonhold.Read more about tenure in our glossary page.
Freehold
Key features
- Period Townhouse
- Character Features
- Scope for Comprehensive Modernisation
- Over 2,000 sq ft
- Gardens which open onto The Mere
- Prestigious Location
Description
Description - Halls are delighted with instructions to offer 21 Church Street, Ellesmere, for sale by private treaty and with the benefit of no onward chain.
21 Church Street is a characterful period townhouse elegantly situated astride The Mere and offering wonderful views across this, the town's most picturesque landmark; the property boasts over 2,000 sq ft of generously proportioned living accommodation traditionally arranged across three versatile floors and now provides excellent potential for improvement and modernisation to become an impressive family home.
The property is complemented by extensive gardens which run from the property in direction of The Mere, with an access gate situated on the northern boundary providing direct access onto the same. The gardens have, in past years, been landscaped to enjoy distinctive sections including patio areas, orchard, and cottage garden, alongside an array of floral and herbaceous beds, but, again, now require a scheme of improvement works to revive their former glory.
Situation - 21 Church Street occupies a particularly prestigious position against a backdrop of The Mere and is within easy walking distance of the centre of Ellesmere, which boasts a range of day to day amenities, including Schools, Supermarket, Public Houses, Medical Facilities, Restaurants, and a range of independent Shops. whilst remaining within within a easy reach of the larger market towns of Oswestry and Whitchurch, both of which offer a more comprehensive range of amenities. The county centre of Shrewsbury lies around 19 miles to the south and provides further recreational, educational, and cultural attractions.
Schooling - Within a comfortable proximity are a number of well-regarded state and private schools including Ellesmere Primary School, Ellesmere College, Lakelands Academy, The Maelor School, The Madras School, Shrewsbury School, Shrewsbury High School, The Priory, Prestfelde Prep., Packwood Haugh, Adcote School for Girls, and Morton Hall.
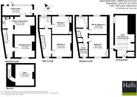
The Property - The property enjoys principal access from the south into an impressive Entrance Hall, where stairs rise to the first floor and descend to a useful Cellar (approx. 5.21m x 4.58m), and from where a door opens immediately to the right into a traditional Reception Room, with a full-height window onto the front elevation and two inset alcoves flanking the chimney breast, one of which houses fitted shelving. The Entrance Hall culminates at an open-plan Kitchen/Dining area which serves as the heart of this characterful home and provides a particularly sociable space ideally suited to entertaining or family moments alike, with a fitted kitchen overlooking planned space for seating and dining, this positioned before an exposed-brick inglenook with multi-fuel burner, alongside a range of exposed ceiling timbers and double-opening doors which exit into a Garden Room to the rear.
Stairs rise from the Entrance Hall to a first floor landing, where access is provided into two well proportioned Bedrooms, one of which benefits from integrated storage cupboards, and a Shower Room; with the landing further comprising stairs which rise again to a second floor which enjoys two more Bedrooms, both able to accommodate double beds, and a Study/Bedroom Five, all of which are served by a family Bathroom.
Outbuilding - Adjoining the property to the east, and accessed via the Dining Room or via a passage way directly off Church Street, is a particularly useful outbuilding (approx. 9.00m x 4.25m) with inset Cloakroom and direct access onto the garden. At present, the outbuilding is utilised for general storage but could serve a variety of onwards usages, dependent upon the requirement of the buyer and with LA consent permitting.
Outside - To the south, the property enjoys a compact front garden which has been designed with ease of maintenance in mind, with traditional steps leading up past an elevated gravelled bed.
The rear gardens are a particularly notable feature of the property and serve as a wonderful accompaniment to the home, extending from the rear of the property and abutting the western aspect of The Mere. In past years, the gardens have been tended to provide unique outdoor "rooms", these comprising a patio area immediately to the north of the property which winds down, via a walkway, through floral beds, a productive cottage garden, and a small "orchard"; all culminating at a door set within a traditional brick wall which opens onto The Mere.
The Accommodation Comprises - - Ground Floor -
Entrance Hall:
Reception Room: 4.67m x 4.29m
Kitchen/Dining Room: 7.11m x 3.78m
Garden Room: 6.57m x 2.05m
- Upper Floors -
Bedroom One: 3.77m x 3.77m
Bedroom Two: 4.63m x 4.31m
Family Bathroom:
Bedroom Three: 4.81m x 3.94m
Bedroom Four: 4.05m x 3.94m
Bedroom Five/Study: 3.01m x 1.96m
W3w - ///quickly.everybody.uncouth
Directions - From our Ellesmere office, proceed north along Cross Street until reaching a roundabout, here take the third exit onto the A495 and continue for around 0.2 miles, where the property will be situated on the left and identified by a Halls "For Sale" board.
Services - We understand that the property has the benefit of mains of mains water, electricity, gas, and drainage.
Tenure - The property is said to be of freehold tenure and vacant possession will be given on completion of the purchase.
Local Authority - Shropshire Council, Abbey Foregate, Shrewsbury, Shropshire, SY2 6ND.
Council Tax - The property is in Council Tax Band 'D' on the Shropshire Council Register.
Anti-Money Laundering (Aml) Checks - We are legally obligated to undertake anti-money laundering checks on all property purchasers. Whilst we are responsible for ensuring that these checks, and any ongoing monitoring, are conducted properly; the initial checks will be handled on our behalf by a specialist company, Movebutler, who will reach out to you once your offer has been accepted.
The charge for these checks is £30 (including VAT) per purchaser, which covers the necessary data collection and any manual checks or monitoring that may be required. This cost must be paid in advance, directly to Movebutler, before a memorandum of sale can be issued, and is non-refundable. We thank you for your cooperation.
Viewings - By appointment through Halls, The Square, Ellesmere, Shropshire, SY12 0AW.
Brochures
Church Street, Ellesmere.Ellesmere video- COUNCIL TAXA payment made to your local authority in order to pay for local services like schools, libraries, and refuse collection. The amount you pay depends on the value of the property.Read more about council Tax in our glossary page.
- Ask agent
- PARKINGDetails of how and where vehicles can be parked, and any associated costs.Read more about parking in our glossary page.
- Ask agent
- GARDENA property has access to an outdoor space, which could be private or shared.
- Yes
- ACCESSIBILITYHow a property has been adapted to meet the needs of vulnerable or disabled individuals.Read more about accessibility in our glossary page.
- Ask agent
Church Street, Ellesmere.
Add an important place to see how long it'd take to get there from our property listings.
__mins driving to your place
Get an instant, personalised result:
- Show sellers you’re serious
- Secure viewings faster with agents
- No impact on your credit score




Your mortgage
Notes
Staying secure when looking for property
Ensure you're up to date with our latest advice on how to avoid fraud or scams when looking for property online.
Visit our security centre to find out moreDisclaimer - Property reference 34211543. The information displayed about this property comprises a property advertisement. Rightmove.co.uk makes no warranty as to the accuracy or completeness of the advertisement or any linked or associated information, and Rightmove has no control over the content. This property advertisement does not constitute property particulars. The information is provided and maintained by Halls Estate Agents, Ellesmere. Please contact the selling agent or developer directly to obtain any information which may be available under the terms of The Energy Performance of Buildings (Certificates and Inspections) (England and Wales) Regulations 2007 or the Home Report if in relation to a residential property in Scotland.
*This is the average speed from the provider with the fastest broadband package available at this postcode. The average speed displayed is based on the download speeds of at least 50% of customers at peak time (8pm to 10pm). Fibre/cable services at the postcode are subject to availability and may differ between properties within a postcode. Speeds can be affected by a range of technical and environmental factors. The speed at the property may be lower than that listed above. You can check the estimated speed and confirm availability to a property prior to purchasing on the broadband provider's website. Providers may increase charges. The information is provided and maintained by Decision Technologies Limited. **This is indicative only and based on a 2-person household with multiple devices and simultaneous usage. Broadband performance is affected by multiple factors including number of occupants and devices, simultaneous usage, router range etc. For more information speak to your broadband provider.
Map data ©OpenStreetMap contributors.