
Barradale Court, Stoneygate

- PROPERTY TYPE
Semi-Detached
- BEDROOMS
3
- BATHROOMS
3
- SIZE
Ask agent
- TENUREDescribes how you own a property. There are different types of tenure - freehold, leasehold, and commonhold.Read more about tenure in our glossary page.
Freehold
Key features
- Three Double Bedroom Semi detached
- Arranged Over Three Floors
- Dining / Kitchen
- Lounge
- Principal Bedroom with En-Suite and Balcony.
- Bathroom and Separate Shower Room
- Downstairs WC and Integral Garage
- Cul De Sac Location in Stoneygate
- EPC Rating C / Council Tax Band E
- Freehold
Description
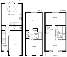
The property briefly comprises an entrance hall, W/C, integral garage, and spacious DINING/KITCHEN on the ground floor, the first floor there is a lounge, bedrooms and shower room, and on the third floor you have a Principal Bedroom with en-suite and BALCONY, a further double bedroom and a bathroom.
Also an integral garage
To the rear is a courtyard garden and the front of the property has off street parking.
Situated in STONEYGATE and walking distance to Leicester City Centre with its Train Station, close to schools, university and hospitals and Queens Road and its selection of bars, shops and restaurant's.
Hall - Double glazed front door, staircase rising to first floor, under stairs cupboard, radiator, tiled floor.
Dining Kitchen - 5.00 x 4.73 (16'4" x 15'6") - Fitted units with worktops and splash back, sink with drainer, five ring gas hob and extractor, integrated oven and fridge freezer, plumbing for washing machine, cupboard housing boiler, spot lights, two Velux windows to ceiling, tiled floor, radiator, double glazed windows and double doors to rear aspect.
Downstairs W/C - 2.48 x 1.01 (8'1" x 3'3") - Low level W/C, pedestal wash hand basin, radiator, tiled floor.
First Floor Landing - Built in cupboard.
Lounge - 4.74 x 4.70 (15'6" x 15'5") - Two radiators, two double glazed windows to front aspect.
Bedroom Two - 4.74 x 2.84 (15'6" x 9'3") - Radiator, double glazed window to rear aspect.
Shower Room - 2.36 x 1.50 (7'8" x 4'11") - Shower cubicle with mains shower, wash hand basin, low level W/C, part tiled walls, spot light, radiator.
Second Floor Landing - Access to loft.
Principal Bedroom - 4.74 x 3.68 max (15'6" x 12'0" max) - Fitted cupboards, wardrobe, two radiators, pair of double glazed doors opening out onto a balcony facing the front aspect, windows to front elevation.
Balcony - 4.79 x 1.00 (15'8" x 3'3") - decked flooring, metal railing around.
Ensuite Shower Room - 2.29 max x 1.25 (7'6" max x 4'1") - Shower cubicle with mains shower, low level W/C, wash hand basin, radiator, part tiled walls, spotlights.
Bedroom Three - 4.72 x 3.00 (15'5" x 9'10") - Radiator, double glazed window to rear aspect.
Bathroom - 2.25 x 1.74 (7'4" x 5'8") - Bath with mains shower, sink, low level W/C, heated towel rail, part tiled walls, spotlights.
Integral Garage - 6.01 x 2.72 (19'8" x 8'11") - Up and over door, power.
Outside - Paved area, water tap, gate to side aspect, pretty secluded garden with mature trees.
To the front of the property is a driveway.
Free Valuation - Thinking of selling? We would be delighted to provide you with a free market appraisal/valuation of your own property. Please contact Barkers to arrange a mutually convenient appointment on Tel:
General Remarks - We are unable to confirm whether certain items in the property are in fully working order (i.e. gas, electric, plumbing etc.) The property is offered for sale on this basis. Prospective purchasers are advised to inspect the property and commission expert reports where appropriate. Barkers Estate Agents have a policy of seeking to obtain any copy guarantees / invoices relating to works that may have been carried out by a previous or existing owner. Please ask one of our staff members to check files for any relevant documentation that have come to our attention.
Photographs are reproduced for general information and it must not be inferred that any items shown are included in the sale with the property.
MONEY LAUNDERING
Under the Protection Against Money Laundering and the Proceeds of Crime Act 2002, we must point out that any successful purchasers who are proceeding with a purchase will be asked for identification i.e. passport or driving licence or recent utility bill. This evidence will be required prior to solicitors being instructed in the purchase of the sale of a property.
MORTGAGES
Barkers Estate Agents offer the services of an independent mortgage and financial adviser. Please ask an advisor for further information.
VIEWING TIMES
Viewing strictly by appointment through Barkers Estate Agents.
Hours of Business:
Monday to Friday 9am -5pm
Saturday 9am - 4pm
Brochures
Barradale Court, StoneygateBrochure- COUNCIL TAXA payment made to your local authority in order to pay for local services like schools, libraries, and refuse collection. The amount you pay depends on the value of the property.Read more about council Tax in our glossary page.
- Band: E
- PARKINGDetails of how and where vehicles can be parked, and any associated costs.Read more about parking in our glossary page.
- Garage,No disabled parking
- GARDENA property has access to an outdoor space, which could be private or shared.
- Yes
- ACCESSIBILITYHow a property has been adapted to meet the needs of vulnerable or disabled individuals.Read more about accessibility in our glossary page.
- Ask agent
Barradale Court, Stoneygate
Add an important place to see how long it'd take to get there from our property listings.
__mins driving to your place
Get an instant, personalised result:
- Show sellers you’re serious
- Secure viewings faster with agents
- No impact on your credit score
Your mortgage
Notes
Staying secure when looking for property
Ensure you're up to date with our latest advice on how to avoid fraud or scams when looking for property online.
Visit our security centre to find out moreDisclaimer - Property reference 34211578. The information displayed about this property comprises a property advertisement. Rightmove.co.uk makes no warranty as to the accuracy or completeness of the advertisement or any linked or associated information, and Rightmove has no control over the content. This property advertisement does not constitute property particulars. The information is provided and maintained by Barkers, Leicester. Please contact the selling agent or developer directly to obtain any information which may be available under the terms of The Energy Performance of Buildings (Certificates and Inspections) (England and Wales) Regulations 2007 or the Home Report if in relation to a residential property in Scotland.
*This is the average speed from the provider with the fastest broadband package available at this postcode. The average speed displayed is based on the download speeds of at least 50% of customers at peak time (8pm to 10pm). Fibre/cable services at the postcode are subject to availability and may differ between properties within a postcode. Speeds can be affected by a range of technical and environmental factors. The speed at the property may be lower than that listed above. You can check the estimated speed and confirm availability to a property prior to purchasing on the broadband provider's website. Providers may increase charges. The information is provided and maintained by Decision Technologies Limited. **This is indicative only and based on a 2-person household with multiple devices and simultaneous usage. Broadband performance is affected by multiple factors including number of occupants and devices, simultaneous usage, router range etc. For more information speak to your broadband provider.
Map data ©OpenStreetMap contributors.








