Nunhead, Peckham
- PROPERTY TYPE
Land
- SIZE
Ask agent
Key features
- Full planning approval
- Attractive residential location with excellent transport links to central London.
- Scheme designed to enhance the Nunhead Green Conservation Area.
- Vacant on completion
- Freehold
Description
The Approval
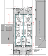
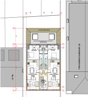
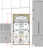
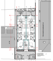
Full planning permission was granted on 27 February 2025 for the demolition of the existing detached house and the construction of a new three-storey building comprising four x two-bedroom duplex apartments.
The scheme has been carefully developed to enhance the character of the Nunhead Green Conservation Area.
The Current Site
The site area is approximately 269 sqm and is currently occupied by a five-bedroom detached dwelling dating from the 1980s, with a driveway and rear garden. The low-quality nature of the current property presents a strong opportunity for redevelopment.
The property is currently occupied by tenants and will be offered with vacant possession
Viewings: All viewings are strictly by appointment only.
Location:
The site is located in the heart of the Nunhead Green Conservation Area, a desirable South London neighbourhood characterised by Victorian housing and strong community identity. Local amenities include a range of independent shops, cafés, bakeries, and the landmark Old Nun’s Head public house. The wider Peckham area offers an array of restaurants, bars, galleries, and leisure facilities, while Dulwich and Greenwich are within easy reach.
Public transport links are excellent. Nunhead Station (0.4 miles) provides direct services to London Victoria, Blackfriars, and City Thameslink. Peckham Rye Station (0.7 miles) offers both Overground and National Rail services, connecting to London Bridge, Clapham Junction, Shoreditch High Street, and Canary Wharf.
Multiple bus routes further enhance connectivity across South and Central London, making the location highly accessible.
EPC Rating: D
Nunhead, Peckham
NEAREST STATIONS
Distances are straight line measurements from the centre of the postcode- Nunhead Station0.4 miles
- Peckham Rye Station0.6 miles
- Queens Road Peckham Station0.7 miles
Notes
Disclaimer - Property reference 458e5327-1691-459e-8e3a-d642bffb5380. The information displayed about this property comprises a property advertisement. Rightmove.co.uk makes no warranty as to the accuracy or completeness of the advertisement or any linked or associated information, and Rightmove has no control over the content. This property advertisement does not constitute property particulars. The information is provided and maintained by Allen Heritage, Shirley. Please contact the selling agent or developer directly to obtain any information which may be available under the terms of The Energy Performance of Buildings (Certificates and Inspections) (England and Wales) Regulations 2007 or the Home Report if in relation to a residential property in Scotland.
Map data ©OpenStreetMap contributors.









