Ashcombe Terrace, Tadworth

- PROPERTY TYPE
Semi-Detached
- BEDROOMS
3
- BATHROOMS
1
- SIZE
Ask agent
- TENUREDescribes how you own a property. There are different types of tenure - freehold, leasehold, and commonhold.Read more about tenure in our glossary page.
Freehold
Key features
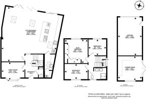
- 3 bed family home
- Large bright open plan kitchen diner
- Separate utility room
- Large terrace for entertaining
- Garden room/studio
- Garage
- Far reaching views over Epsom Downs
- Viewing by appointment only
Description
There are so many different elements within anyone`s search criteria, determined by an number of varying factors, such as work, schools, transport, and more besides. However, there are likely to be those few constants, those “things” that pretty much everyone would strive for, that are on most peoples wish list; say, for example, a quiet no thru road, good space to front and rear, an impressive 31` by 28` open plan ground floor kitchen/dining/living space, maybe an outdoor studio room, a garage - oh and how about views over Epsom Downs and those amazing sunsets! Well welcome to this rarest of three bedroom semi detached homes, that just happens to tick each of those boxes. Offering over 1800 sq ft of footprint, this is a home that punched well above it`s weight within its size an price point, and we would certainly suggest that the best way to fully appreciate its virtues is by actually seeing it for yourself, so if you like what you`ve seen so far, we look forward to hearing from you and arranging to show you round.
Ashcombe Terrace is perfectly located for access to the Epsom Downs, as well as Tadworth Train Station offering regular trains into London, and a short walk away from local shops and facilities including independent traders such as butcher, fishmonger, baker, hairdresser, coffee shop, dry cleaner, vet, several restaurants, village supermarket and much more besides. The surrounding areas offer open countryside with Epsom Downs Racecourse, Walton Heath and several renowned golf courses close by. For the commuter, Junction 8 of the M25 is within 5 miles, providing access to Gatwick and Heathrow airports and the national motorway network. There is a variety of schools within the area including Walton on the Hill Primary School, Tadworth Primary School (which is the closest) & Chinthurst Prep School as well as City of London Freemen's School and Epsom College to name but a few.
For more information on this property, or to arrange a viewing, please do get in touch with us on .
Brochures
Brochure v1.pdfBrochure- COUNCIL TAXA payment made to your local authority in order to pay for local services like schools, libraries, and refuse collection. The amount you pay depends on the value of the property.Read more about council Tax in our glossary page.
- Band: D
- PARKINGDetails of how and where vehicles can be parked, and any associated costs.Read more about parking in our glossary page.
- Yes
- GARDENA property has access to an outdoor space, which could be private or shared.
- Yes
- ACCESSIBILITYHow a property has been adapted to meet the needs of vulnerable or disabled individuals.Read more about accessibility in our glossary page.
- Ask agent
Ashcombe Terrace, Tadworth
Add an important place to see how long it'd take to get there from our property listings.
__mins driving to your place
Get an instant, personalised result:
- Show sellers you’re serious
- Secure viewings faster with agents
- No impact on your credit score



Your mortgage
Notes
Staying secure when looking for property
Ensure you're up to date with our latest advice on how to avoid fraud or scams when looking for property online.
Visit our security centre to find out moreDisclaimer - Property reference 34211844. The information displayed about this property comprises a property advertisement. Rightmove.co.uk makes no warranty as to the accuracy or completeness of the advertisement or any linked or associated information, and Rightmove has no control over the content. This property advertisement does not constitute property particulars. The information is provided and maintained by Kennedys, Tadworth- Sales. Please contact the selling agent or developer directly to obtain any information which may be available under the terms of The Energy Performance of Buildings (Certificates and Inspections) (England and Wales) Regulations 2007 or the Home Report if in relation to a residential property in Scotland.
*This is the average speed from the provider with the fastest broadband package available at this postcode. The average speed displayed is based on the download speeds of at least 50% of customers at peak time (8pm to 10pm). Fibre/cable services at the postcode are subject to availability and may differ between properties within a postcode. Speeds can be affected by a range of technical and environmental factors. The speed at the property may be lower than that listed above. You can check the estimated speed and confirm availability to a property prior to purchasing on the broadband provider's website. Providers may increase charges. The information is provided and maintained by Decision Technologies Limited. **This is indicative only and based on a 2-person household with multiple devices and simultaneous usage. Broadband performance is affected by multiple factors including number of occupants and devices, simultaneous usage, router range etc. For more information speak to your broadband provider.
Map data ©OpenStreetMap contributors.