
High Street, Billericay, Essex, CM12 9BS

- PROPERTY TYPE
Flat
- BEDROOMS
2
- BATHROOMS
1
- SIZE
Ask agent
Description
Step inside and you'll immediately notice the high standard of finish throughout. Underfloor heating provides a warm and inviting atmosphere, while high-spec fixtures and fittings elevate every corner of the home. The spacious open-plan layout seamlessly connects the kitchen, dining, and living areas, creating an ideal environment for both relaxing and entertaining.
One of the apartment's most striking features is its private roof terrace - a rare find in such a central location.This secluded outdoor space offers sweeping views over the town and serves as your very own retreat, perfect for morning coffee or summer evenings under the stars.
The contemporary kitchen is fully integrated and designed for modern lifestyles, featuring sleek cabinetry and premium appliances. With thoughtful attention to detail throughout, the apartment reflects both style and functionality, making it a true statement home in the heart of Billericay.
Adding further appeal is the inclusion of private parking - a prized amenity in the town centre. Whether you're a first-time buyer, a busy professional, this standout apartment combines luxury, location, and lifestyle in one impressive package.
ACCOMMODATION
SHARED ENTRANCE
Accessed via a secure video entry system, a welcoming foyer leads to the shared staircase rising to the top floor and the entrance to the apartment.
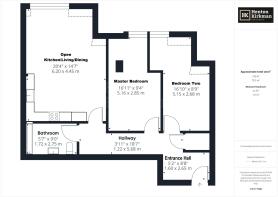
PRIVATE ENTRANCE HALL 8ft 7' x 5ft 2'
A spacious entrance with room for coats, shoes, and storage, including a built-in cupboard housing the boiler.
The modern white porcelain tiles continue seamlessly through to the kitchen, living area and onto the main hallway space.
MAIN HALLWAY 18ft x 3ft 11'
With doors opening to each room this is wide, welcoming hallway offering the ideal spot for a small console or display unit.
MASTER BEDROOM 16ft 10' x 11ft narrowing to 11ft 9' x 8ft 7'
Looking onto the High Street, this generously sized master bedroom easily accommodates a king-sized bed, and is finished with soft grey carpet underfoot for a luxurious feel.
BEDROOM TWO 16ft 9' x 9ft 3' narrowing to 10ft 6' x 6ft 10'
Another well-proportioned bedroom, perfect for guests or use as a home office, also fitted with plush grey carpet and ample room for storage.
OPEN-PLAN KITCHEN/LIVING/DINING ROOM 20ft x 14ft narrowing to 14ft x 14ft
A bright and versatile living space featuring bay windows with views over the High Street.
The kitchen is beautifully appointed with quartz worktops, integrated appliances (washing machine, dishwasher, fridge freezer), and polished wood-effect cabinetry.
Spotlights and sleek finishes create a stylish yet practical environment - perfect for relaxing, entertaining, or working from home.
Plenty of space for a large dining table makes this room a true hub of the home.
MAIN BATHROOM 8ft 10' x 5ft 6'
A modern part tiled room with under floor heating, that features a stylish white suite.
The suite consists of a bath and overhead shower, a push-button flush WC and a wash basin.
EXTERIOR
PRIVATE ROOF TERRACE 17ft 10' x 17ft 10'
A real highlight of this property - this impressive, private roof terrace offers the perfect spot for summer evenings, with artificial grass, space for seating and a barbecue, and of course stunning elevated views across Billericay.
PRIVATE PARKING
The apartment comes with one large allocated parking space located to the rear of the building.
LEASE INFORMATION
We understand from the seller that the Lease Term remaining is 117 years, the Service Charge is Approx. £260 per month and the Annual Ground Rent is £100.
- COUNCIL TAXA payment made to your local authority in order to pay for local services like schools, libraries, and refuse collection. The amount you pay depends on the value of the property.Read more about council Tax in our glossary page.
- Ask agent
- PARKINGDetails of how and where vehicles can be parked, and any associated costs.Read more about parking in our glossary page.
- Secure,Off street,Gated,Private,Allocated
- GARDENA property has access to an outdoor space, which could be private or shared.
- Private garden
- ACCESSIBILITYHow a property has been adapted to meet the needs of vulnerable or disabled individuals.Read more about accessibility in our glossary page.
- Ask agent
Energy performance certificate - ask agent
High Street, Billericay, Essex, CM12 9BS
Add an important place to see how long it'd take to get there from our property listings.
__mins driving to your place
Get an instant, personalised result:
- Show sellers you’re serious
- Secure viewings faster with agents
- No impact on your credit score
Your mortgage
Notes
Staying secure when looking for property
Ensure you're up to date with our latest advice on how to avoid fraud or scams when looking for property online.
Visit our security centre to find out moreDisclaimer - Property reference ID2830. The information displayed about this property comprises a property advertisement. Rightmove.co.uk makes no warranty as to the accuracy or completeness of the advertisement or any linked or associated information, and Rightmove has no control over the content. This property advertisement does not constitute property particulars. The information is provided and maintained by Henton Kirkman Residential, Billericay. Please contact the selling agent or developer directly to obtain any information which may be available under the terms of The Energy Performance of Buildings (Certificates and Inspections) (England and Wales) Regulations 2007 or the Home Report if in relation to a residential property in Scotland.
*This is the average speed from the provider with the fastest broadband package available at this postcode. The average speed displayed is based on the download speeds of at least 50% of customers at peak time (8pm to 10pm). Fibre/cable services at the postcode are subject to availability and may differ between properties within a postcode. Speeds can be affected by a range of technical and environmental factors. The speed at the property may be lower than that listed above. You can check the estimated speed and confirm availability to a property prior to purchasing on the broadband provider's website. Providers may increase charges. The information is provided and maintained by Decision Technologies Limited. **This is indicative only and based on a 2-person household with multiple devices and simultaneous usage. Broadband performance is affected by multiple factors including number of occupants and devices, simultaneous usage, router range etc. For more information speak to your broadband provider.
Map data ©OpenStreetMap contributors.





