Hampden Way, Bilton, Rugby

- PROPERTY TYPE
Semi-Detached
- BEDROOMS
3
- BATHROOMS
2
- SIZE
Ask agent
- TENUREDescribes how you own a property. There are different types of tenure - freehold, leasehold, and commonhold.Read more about tenure in our glossary page.
Freehold
Key features
- Three Bedrooms
- Extended Semi-Detached Property
- Lounge
- Dining Room
- Kitchen/Breakfast
- Ground Floor Shower with WC
- Double Glazing
- Gas Heating with 'Combi' Boiler
- Rear Garden Over-Looking Playing Fields
- Lovely Location
Description
Location - Being just a short walk into the centre of Bilton village you really do have everything on your doorstep here. including a children's play park, the butchers, Co-op & Tescos, Cheese on the Green, various takeaways and Crowhurst Gale to name just a few, not to mention the pubs and local schools.
Rugby itself is excellent for the commuter as it is very well served by both an excellent road and rail network. There is easy access to M1, M6, A46, A5 & A14 and Rugby station, which is less than 3 miles away can get you into Euston in under an hour
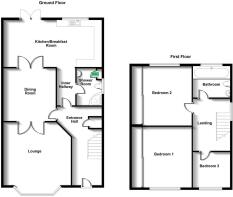
Entrance Hall - Original 'Minton' tiled flooring.
Lounge - 3.95 x 4.16 (12'11" x 13'7" ) - With glazed doors to:
Dining Room - 3.02 x 3.37 (9'10" x 11'0") -
Kitchen/Breakfast - 5.41m x 2.95m 3.21m (17'8" x 9'8" 10'6") - Extended fitted kitchen.
Shower Room - 2.40m x 1.49m (7'10" x 4'10" ) - Shower, Wash basin, WC. Cupboard with combi boiler.
First Floor Landing -
Bedroom One - 3.66 x 2.89 upto fitted wardrobes (12'0" x 9'5" u - Fitted Wardrobes
Bedroom Two - 3.38 x 2.89 upto fitted wardrobes (11'1" x 9'5" up - Window shutters. Fitted Wardrobes
Bedroom Three - 2.16 x 2.40 (7'1" x 7'10") -
Bathroom - 2.16 x 2.29 (7'1" x 7'6") - Bath with shower over, Wash basin, WC.
Rear Garden - Well stocked rear garden with paved patio area.
Market Appraisal - If you are considering selling your property, we would be delighted to give you a free no obligation market appraisal. Our experience, knowledge and marketing with local and internet advertising will get your property seen and stand out from the crowd. Please contact us to arrange your property appraisal.
Conveyancing Services - Our solicitors work on a no sale, no fee basis. They work longer hours than the conventional solicitor and are available weekends. Please contact us for more information on our conveyancing services.
Mortgage Services - Crowhurst Gale can offer Panda Mortgage Services for professional mortgage advice and will help to find the right product that will suit your budget and needs from virtually the whole of the mortgage market.
Tax Band - Tax Band: C
Tenure - Freehold
Local Authority - Rugby Borough Council
Viewing - By appointment only through Crowhurst Gale Estate Agents
Frontage - Block paving.
Brochures
Hampden Way, Bilton, RugbyBrochure- COUNCIL TAXA payment made to your local authority in order to pay for local services like schools, libraries, and refuse collection. The amount you pay depends on the value of the property.Read more about council Tax in our glossary page.
- Ask agent
- PARKINGDetails of how and where vehicles can be parked, and any associated costs.Read more about parking in our glossary page.
- Ask agent
- GARDENA property has access to an outdoor space, which could be private or shared.
- Yes
- ACCESSIBILITYHow a property has been adapted to meet the needs of vulnerable or disabled individuals.Read more about accessibility in our glossary page.
- Ask agent
Hampden Way, Bilton, Rugby
Add an important place to see how long it'd take to get there from our property listings.
__mins driving to your place
Get an instant, personalised result:
- Show sellers you’re serious
- Secure viewings faster with agents
- No impact on your credit score



Your mortgage
Notes
Staying secure when looking for property
Ensure you're up to date with our latest advice on how to avoid fraud or scams when looking for property online.
Visit our security centre to find out moreDisclaimer - Property reference 34189932. The information displayed about this property comprises a property advertisement. Rightmove.co.uk makes no warranty as to the accuracy or completeness of the advertisement or any linked or associated information, and Rightmove has no control over the content. This property advertisement does not constitute property particulars. The information is provided and maintained by Crowhurst Gale Estate Agents, Rugby. Please contact the selling agent or developer directly to obtain any information which may be available under the terms of The Energy Performance of Buildings (Certificates and Inspections) (England and Wales) Regulations 2007 or the Home Report if in relation to a residential property in Scotland.
*This is the average speed from the provider with the fastest broadband package available at this postcode. The average speed displayed is based on the download speeds of at least 50% of customers at peak time (8pm to 10pm). Fibre/cable services at the postcode are subject to availability and may differ between properties within a postcode. Speeds can be affected by a range of technical and environmental factors. The speed at the property may be lower than that listed above. You can check the estimated speed and confirm availability to a property prior to purchasing on the broadband provider's website. Providers may increase charges. The information is provided and maintained by Decision Technologies Limited. **This is indicative only and based on a 2-person household with multiple devices and simultaneous usage. Broadband performance is affected by multiple factors including number of occupants and devices, simultaneous usage, router range etc. For more information speak to your broadband provider.
Map data ©OpenStreetMap contributors.