
Dean House

Letting details
- Let available date:
- 03/11/2025
- Deposit:
- Ask agentA deposit provides security for a landlord against damage, or unpaid rent by a tenant.Read more about deposit in our glossary page.
- Min. Tenancy:
- Ask agent How long the landlord offers to let the property for.Read more about tenancy length in our glossary page.
- Let type:
- Long term
- Furnish type:
- Unfurnished
- Council Tax:
- Ask agent
This property is Built For Renters.
- PROPERTY TYPE
Apartment
- BEDROOMS
2
- BATHROOMS
1
- SIZE
Ask agent
Key features
- Reduced Deposit Option Available
- Walking Distance to Waterloo Train Station & The Marine Lake
- Parking Available on Application at an Additional Fee
- Bike Storage
- 24/7 Maintenance
Description
Discover Your Ideal Home at Dean House, Waterloo, Liverpool
Located on Church Road in Waterloo, this unfurnished 2-bedroom flat is part of our newly refurbished development, offering modern living in one of Liverpool's most sought-after residential areas. Just moments away from South Road, you'll have access to a variety of cafés, restaurants, grocery stores, and convenient transport links. Waterloo Train Station and the scenic Marine Lake are also just a short walk away, making this property perfect for families, young professionals, and couples.
Your Space & Lifestyle
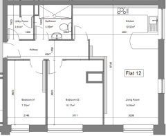
- Two spacious double bedrooms, each offering ample space for rest and relaxation. The neutral décor provides a blank canvas to personalise and infuse your own style..
- Open-plan living area, ideal for unwinding and socialising, with a seamless flow into the kitchen, creating a connected space perfect for modern living..
- Modern kitchen fully equipped with integrated appliances, white goods, and plenty of storage space to suit your cooking needs..
- Shower room finished to a high standard, with a large shower enclosure, a generous shower head, and a wall-mounted heated drying rack, ensuring comfort and convenience...
Ideal Location
- Walking distance to Waterloo Train Station, offering easy access to Liverpool city centre.
- Close to Marine Lake, perfect for outdoor activities and relaxation.
- South Road offers a variety of local amenities, including cafés, bars, restaurants, and grocery stores, all within easy reach.,
Why Choose Ocasa?
Living in an Ocasa home comes with many benefits:
- Reduced deposit option (just 1 week's rent)..
- Fast and efficient referencing for a smooth application process.
- Personal service guaranteed from our dedicated local experts..
- Emergency 24/7 service to ensure your needs are met promptly.
- Tenant referral rewards for recommending friends or family.
- Flats to rent, built to last, ensuring long-term comfort and quality..
Contact Us Today
Arrange a viewing or get more details about this fantastic flat.
The Legal Bits
- Minimum 12-month tenancy.
- Income must meet affordability criteria (yearly rent multiplied by 2.5).
- Referencing will include employment, income, and credit checks for all adults over 18.
- Images are for illustrative purposes and may not represent the exact room.
Important Notice
Ocasa Homes may instruct partner agents to conduct viewings on our behalf. By requesting a viewing, your contact details may be shared with them. Contact us if you have any concerns before submitting your request.
Dean House
- COUNCIL TAXA payment made to your local authority in order to pay for local services like schools, libraries, and refuse collection. The amount you pay depends on the value of the property.Read more about council Tax in our glossary page.
- Ask agent
- PARKINGDetails of how and where vehicles can be parked, and any associated costs.Read more about parking in our glossary page.
- Yes
- GARDENA property has access to an outdoor space, which could be private or shared.
- Ask agent
- ACCESSIBILITYHow a property has been adapted to meet the needs of vulnerable or disabled individuals.Read more about accessibility in our glossary page.
- Ask agent
Energy performance certificate - ask agent

On-site perks of living at this Built for Renters development
Additional costs may apply for some services – please check the full property description above.
- Parking
- Bike storage
- Transport links
- 24hr maintenance
- Long term contracts
- Cleaning services
- Fully managed
- Professional management
- Well connected
Dean House
Add an important place to see how long it'd take to get there from our property listings.
__mins driving to your place
Notes
Staying secure when looking for property
Ensure you're up to date with our latest advice on how to avoid fraud or scams when looking for property online.
Visit our security centre to find out moreDisclaimer - Property reference 258707_p0193725_DEA012Z. The information displayed about this property comprises a property advertisement. Rightmove.co.uk makes no warranty as to the accuracy or completeness of the advertisement or any linked or associated information, and Rightmove has no control over the content. This property advertisement does not constitute property particulars. The information is provided and maintained by Ocasa Homes, Dean House. Please contact the selling agent or developer directly to obtain any information which may be available under the terms of The Energy Performance of Buildings (Certificates and Inspections) (England and Wales) Regulations 2007 or the Home Report if in relation to a residential property in Scotland.
*This is the average speed from the provider with the fastest broadband package available at this postcode. The average speed displayed is based on the download speeds of at least 50% of customers at peak time (8pm to 10pm). Fibre/cable services at the postcode are subject to availability and may differ between properties within a postcode. Speeds can be affected by a range of technical and environmental factors. The speed at the property may be lower than that listed above. You can check the estimated speed and confirm availability to a property prior to purchasing on the broadband provider's website. Providers may increase charges. The information is provided and maintained by Decision Technologies Limited. **This is indicative only and based on a 2-person household with multiple devices and simultaneous usage. Broadband performance is affected by multiple factors including number of occupants and devices, simultaneous usage, router range etc. For more information speak to your broadband provider.
Map data ©OpenStreetMap contributors.