1 & 1A Whitehaven Road, Cleator Moor, Cumbria CA25 5QN

- PROPERTY TYPE
Flat
- BEDROOMS
3
- BATHROOMS
2
- SIZE
Ask agent
- TENUREDescribes how you own a property. There are different types of tenure - freehold, leasehold, and commonhold.Read more about tenure in our glossary page.
Ask agent
Key features
- Residential Investment Property
- Pair of self-contained flats
- Some work required
- Great potential
Description
GUIDE PRICE £65,000+
FOR SALE BY PUBLIC AUCTION ON THURSDAY 23RD OCTOBER 2025 AT THE HALSTON HOTEL, CARLISLE - For bidding registration, please visit auctionhousecumbria.co.uk - A freehold investment property near the corner of Bowthorn Road in Cleator Moor. Originally a shop on the ground floor, the property has been converted into two flats, roof lights need to be added to the ground floor bedrooms and work is required on the upper flat.
Investment property -pair of self-contained flats
A freehold investment property near the corner of Bowthorn Road in Cleator Moor. Originally a shop on the ground floor, the property was converted into two flats, roof lights need to be added to the ground floor bedrooms and work is required on the upper flat.
What3words location ///mermaids.wonderful.moving
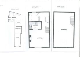
Ground Floor Flat Lounge 23'9 x 11'9
Dining Area 13' x 12'
Kitchen 11' x 9'
Bedroom 11'9 x 9'3
Bedroom 12'9 x 11'6
Bathroom 10' x 4'
Upper Flat Sitting Room 14' x 11' max
Kitchen 7'9 x 5'
Shower Room 7' x 6'3 needs refiited
Attic Bedroom 24' x 14'3 max
Tenure: See Legal Pack
EPC Rating: D & G
Administration Fee: 1.2% inc VAT of the purchase price, subject to a minimum of £1500 inc VAT, payable on exchange of contracts.
Disbursements: Please see the legal pack for any disbursements listed that may become payable by the purchaser on completion.
- COUNCIL TAXA payment made to your local authority in order to pay for local services like schools, libraries, and refuse collection. The amount you pay depends on the value of the property.Read more about council Tax in our glossary page.
- Band: A
- PARKINGDetails of how and where vehicles can be parked, and any associated costs.Read more about parking in our glossary page.
- Ask agent
- GARDENA property has access to an outdoor space, which could be private or shared.
- Ask agent
- ACCESSIBILITYHow a property has been adapted to meet the needs of vulnerable or disabled individuals.Read more about accessibility in our glossary page.
- Ask agent
Energy performance certificate - ask agent
1 & 1A Whitehaven Road, Cleator Moor, Cumbria CA25 5QN
Add an important place to see how long it'd take to get there from our property listings.
__mins driving to your place
Get an instant, personalised result:
- Show sellers you’re serious
- Secure viewings faster with agents
- No impact on your credit score
Your mortgage
Notes
Staying secure when looking for property
Ensure you're up to date with our latest advice on how to avoid fraud or scams when looking for property online.
Visit our security centre to find out moreDisclaimer - Property reference 202510011112sq_rsze. The information displayed about this property comprises a property advertisement. Rightmove.co.uk makes no warranty as to the accuracy or completeness of the advertisement or any linked or associated information, and Rightmove has no control over the content. This property advertisement does not constitute property particulars. The information is provided and maintained by Auction House Cumbria, Carlisle. Please contact the selling agent or developer directly to obtain any information which may be available under the terms of The Energy Performance of Buildings (Certificates and Inspections) (England and Wales) Regulations 2007 or the Home Report if in relation to a residential property in Scotland.
Auction Fees: The purchase of this property may include associated fees not listed here, as it is to be sold via auction. To find out more about the fees associated with this property please call Auction House Cumbria, Carlisle on 01228 937772.
*Guide Price: An indication of a seller's minimum expectation at auction and given as a Guide Price or a range of Guide Prices. This is not necessarily the figure a property will sell for and is subject to change prior to the auction.
Reserve Price: Each auction property will be subject to a Reserve Price below which the property cannot be sold at auction. Normally the Reserve Price will be set within the range of Guide Prices or no more than 10% above a single Guide Price.
*This is the average speed from the provider with the fastest broadband package available at this postcode. The average speed displayed is based on the download speeds of at least 50% of customers at peak time (8pm to 10pm). Fibre/cable services at the postcode are subject to availability and may differ between properties within a postcode. Speeds can be affected by a range of technical and environmental factors. The speed at the property may be lower than that listed above. You can check the estimated speed and confirm availability to a property prior to purchasing on the broadband provider's website. Providers may increase charges. The information is provided and maintained by Decision Technologies Limited. **This is indicative only and based on a 2-person household with multiple devices and simultaneous usage. Broadband performance is affected by multiple factors including number of occupants and devices, simultaneous usage, router range etc. For more information speak to your broadband provider.
Map data ©OpenStreetMap contributors.