3 bedroom semi-detached house for sale
Reindeer Road, Fazeley

- PROPERTY TYPE
Semi-Detached
- BEDROOMS
3
- BATHROOMS
1
- SIZE
Ask agent
- TENUREDescribes how you own a property. There are different types of tenure - freehold, leasehold, and commonhold.Read more about tenure in our glossary page.
Freehold
Key features
- Well-presented three-bedroom family home
- Spacious living room opening into a bright conservatory
- Modern fitted kitchen with ample storage and appliances
- Three well-proportioned bedrooms including two doubles
- Contemporary family bathroom
- Driveway parking and garage
- Generous enclosed rear garden with patio and lawn
- Neutral decor throughout, ready to move into
- Sought-after residential location
- Ideal for families or first-time buyers
Description
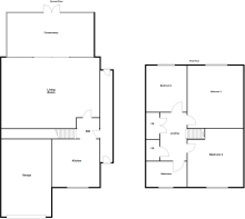
THE FORE The property is approached via a driveway providing off-road parking and access to the garage, with a neat frontage leading to the main entrance.
GROUND FLOOR Upon entering, you are welcomed into a hallway with stairs rising to the first floor. To the front sits a modern fitted kitchen with ample storage and integrated appliances. The spacious living room flows seamlessly into the bright conservatory, providing a fantastic open-plan feel with views over the rear garden.
LIVING ROOM 12' 3" x 17' 0" (3.73m x 5.18m)
CONSERVATORY 15' 2" x 7' 6" (4.62m x 2.29m)
KITCHEN 8' 3" x 8' 3" (2.51m x 2.51m)
FIRST FLOOR Upstairs, the landing gives access to three well-proportioned bedrooms. The main bedroom and second bedroom are generous doubles, while the third bedroom offers flexibility as a single room or study. A newly fitted modern family bathroom completes the first-floor accommodation.
BEROOM ONE 11' 5" x 9' 8" (3.48m x 2.95m)
BEDROOM TWO 10' 4" x 11' 6" (3.15m x 3.51m)
BEDROOM THREE 8' 5" x 6' 5" (2.57m x 1.96m)
BATHROOM 5' 2" x 5' 7" (1.57m x 1.7m)
THE REAR The property enjoys a well-maintained rear garden with both patio and lawned areas, ideal for outdoor entertaining and family use, all enclosed by fencing for added privacy.
ANTI MONEY LAUNDERING In accordance with the most recent Anti Money Laundering Legislation, buyers will be required to provide proof of identity and address to the Taylor Cole Estate Agents once an offer has been submitted and accepted (subject to contract) prior to Solicitors being instructed.
TENURE We have been advised that this property is freehold, however, prospective buyers are advised to verify the position with their solicitor / legal representative.
VIEWING By prior appointment with Taylor Cole Estate Agents on .
Brochures
Sales Particulars- COUNCIL TAXA payment made to your local authority in order to pay for local services like schools, libraries, and refuse collection. The amount you pay depends on the value of the property.Read more about council Tax in our glossary page.
- Ask agent
- PARKINGDetails of how and where vehicles can be parked, and any associated costs.Read more about parking in our glossary page.
- Garage,Off street
- GARDENA property has access to an outdoor space, which could be private or shared.
- Yes
- ACCESSIBILITYHow a property has been adapted to meet the needs of vulnerable or disabled individuals.Read more about accessibility in our glossary page.
- Ask agent
Reindeer Road, Fazeley
Add an important place to see how long it'd take to get there from our property listings.
__mins driving to your place
Get an instant, personalised result:
- Show sellers you’re serious
- Secure viewings faster with agents
- No impact on your credit score



Your mortgage
Notes
Staying secure when looking for property
Ensure you're up to date with our latest advice on how to avoid fraud or scams when looking for property online.
Visit our security centre to find out moreDisclaimer - Property reference 102381011308. The information displayed about this property comprises a property advertisement. Rightmove.co.uk makes no warranty as to the accuracy or completeness of the advertisement or any linked or associated information, and Rightmove has no control over the content. This property advertisement does not constitute property particulars. The information is provided and maintained by Taylor Cole Estate Agents, Tamworth. Please contact the selling agent or developer directly to obtain any information which may be available under the terms of The Energy Performance of Buildings (Certificates and Inspections) (England and Wales) Regulations 2007 or the Home Report if in relation to a residential property in Scotland.
*This is the average speed from the provider with the fastest broadband package available at this postcode. The average speed displayed is based on the download speeds of at least 50% of customers at peak time (8pm to 10pm). Fibre/cable services at the postcode are subject to availability and may differ between properties within a postcode. Speeds can be affected by a range of technical and environmental factors. The speed at the property may be lower than that listed above. You can check the estimated speed and confirm availability to a property prior to purchasing on the broadband provider's website. Providers may increase charges. The information is provided and maintained by Decision Technologies Limited. **This is indicative only and based on a 2-person household with multiple devices and simultaneous usage. Broadband performance is affected by multiple factors including number of occupants and devices, simultaneous usage, router range etc. For more information speak to your broadband provider.
Map data ©OpenStreetMap contributors.




