
Whitestone, Exeter

- PROPERTY TYPE
Detached
- BEDROOMS
4
- BATHROOMS
1
- SIZE
Ask agent
- TENUREDescribes how you own a property. There are different types of tenure - freehold, leasehold, and commonhold.Read more about tenure in our glossary page.
Freehold
Key features
- Permission for the development of two properties
- Class Q consent
- Over 3,500sqft of developable living space
- Rural but accessible location
- Only 5 miles outside of Exeter
- Freehold
- Teignbridge District Council
- Popular village location
Description
Situation - Devon View enjoys a delightful and elevated setting to the west of Exeter, just beyond the village of Whitestone, on the edge of the glorious Devon countryside. Its position offers the perfect balance of peaceful rural surroundings while being only five miles from Exeter city centre. Exeter, the regional capital of the South West, is a thriving hub, offering excellent business facilities alongside an abundance of restaurants, cafés and wine bars. The city also boasts a wide range of leisure and cultural amenities, together with extensive shopping facilities. The development is ideally placed for communications. The M5 at Exeter provides swift links north towards Bristol and London, as well as south via the A38 to Plymouth and the A30 into Cornwall. Rail connections are equally convenient, with regular services from Exeter to London Paddington in just over two hours. For those travelling further afield, Exeter International Airport offers both domestic and international flights.
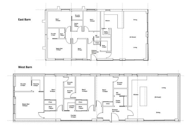
Description - A rare opportunity to purchase two agricultural barns with prior approval under Part 3 Class Q for change of use to two larger dwellinghouses. Both plots (East Barn and West Barn) occupy an elevated and rural position just outside the popular village of Whitestone and only 5 miles from the centre of Exeter. The proposed developments comprise of two 4 bedroom, single storey dwellings with a combined living space of over 3,500 sqft. The two plots are surrounded by land amounting to 0.44 acres. There is additional land available subject to separate negotiation. Please speak to the Agent for futher information.
The plots are ideal for both developers or self-builders seeking a secluded yet accessible location close to Exeter.
Planning Permission - Further information on the two developments can be found on the Teignbridge planning portal:
East Barn: Approx GIA = 1612.33 Sqft. Reference 25/00612/NPA
West Barn: Approx GIA = 1912.66 Sqft. Reference 25/00613/NPA
Cil & Habitats Contribution - The Community Infrastructure Levy (CIL) payments are as follows:
East Barn - £49,010.79
West Barn - £58,139.57
There is an exemption from CIL payments for self-builders.
There is a Habitat Mitigation Regulation Contribution per dwelling of £335.
Conditions - A full list of conditions can be found on the Teignbridge District Council planning site.
Services - Purchasers must satisfy themselves as to the ability to make adequate connections for mains services that may be required. However, we understand that the site has mains electricity and water services located nearby on the road. A sewage treatment plant (STP) will need to be installed as part of the development.
Viewings - By appointment only. Please contact agent for further information.
Directions - What3words - ///badminton.providing.protect
Brochures
Whitestone, Exeter- COUNCIL TAXA payment made to your local authority in order to pay for local services like schools, libraries, and refuse collection. The amount you pay depends on the value of the property.Read more about council Tax in our glossary page.
- Exempt
- PARKINGDetails of how and where vehicles can be parked, and any associated costs.Read more about parking in our glossary page.
- Ask agent
- GARDENA property has access to an outdoor space, which could be private or shared.
- Ask agent
- ACCESSIBILITYHow a property has been adapted to meet the needs of vulnerable or disabled individuals.Read more about accessibility in our glossary page.
- Ask agent
Energy performance certificate - ask agent
Whitestone, Exeter
Add an important place to see how long it'd take to get there from our property listings.
__mins driving to your place
Get an instant, personalised result:
- Show sellers you’re serious
- Secure viewings faster with agents
- No impact on your credit score
Your mortgage
Notes
Staying secure when looking for property
Ensure you're up to date with our latest advice on how to avoid fraud or scams when looking for property online.
Visit our security centre to find out moreDisclaimer - Property reference 34213246. The information displayed about this property comprises a property advertisement. Rightmove.co.uk makes no warranty as to the accuracy or completeness of the advertisement or any linked or associated information, and Rightmove has no control over the content. This property advertisement does not constitute property particulars. The information is provided and maintained by Stags, Exeter. Please contact the selling agent or developer directly to obtain any information which may be available under the terms of The Energy Performance of Buildings (Certificates and Inspections) (England and Wales) Regulations 2007 or the Home Report if in relation to a residential property in Scotland.
*This is the average speed from the provider with the fastest broadband package available at this postcode. The average speed displayed is based on the download speeds of at least 50% of customers at peak time (8pm to 10pm). Fibre/cable services at the postcode are subject to availability and may differ between properties within a postcode. Speeds can be affected by a range of technical and environmental factors. The speed at the property may be lower than that listed above. You can check the estimated speed and confirm availability to a property prior to purchasing on the broadband provider's website. Providers may increase charges. The information is provided and maintained by Decision Technologies Limited. **This is indicative only and based on a 2-person household with multiple devices and simultaneous usage. Broadband performance is affected by multiple factors including number of occupants and devices, simultaneous usage, router range etc. For more information speak to your broadband provider.
Map data ©OpenStreetMap contributors.










