
Regiment Gate, Springfield, Chelmsford

- PROPERTY TYPE
Maisonette
- BEDROOMS
2
- BATHROOMS
2
- SIZE
Ask agent
Key features
- ***25% Share Of Ownership***
- TWO DOUBLE Bedroom Coach House
- IMPRESSIVE 20' Open Plan Living Space
- EN-SUITE To Master Bedroom
- 100% Share Available to Purchase*
- IMMACULATELY PRESENTED THROUGHOUT
- Allocated Parking For Two Vehicles With Further Visitor Bays
- Walking Distance To Local School & Shops
- Close Proximity To Beaulieu Station & Direct Access to A12
- Additional Large Loft Space - Ideal For Storage
Description
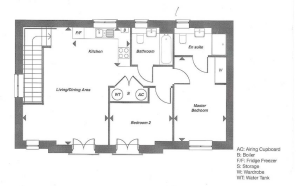
Entrance: - Secure composite entrance door onto small porch with stairs to first floor.
First Floor: -
Open Plan Living Space: - 6.30m x 5.69m (20'08" x 18'08") - Triple aspect double glazed windows to side over stairs, french doors with julliette balcony to front, window to front and window to rear, x2 radiators, wood effect flooring.
Kitchen Area: - Double glazed window to rear, roll edge work tops with stainless drainer sink inset, gas hob with extractor over, matching wall and base units with boiler housed, integrated dishwasher, fridge freezer, washing machine, oven, wood effect flooring.
Utility Cupboard: - Double cupboard housing water tank, with ample storage.
Master Bedroom: - 4.50m x 2.79m (14'09" x 9'02") - Double glazed window to front, built in wardrobes with sliding door, radiator, door to en-suite, carpet flooring.
Ensuite: - 2.77m x 1.47m (9'01" x 4'10") - Double glazed window to rear, double walk in shower, low level W/C, inset sink with tiled splashback, chrome towel rail, fully tiled.
Bedroom Two: - 3.38m x 2.24m (11'01" x 7'04" ) - Double glazed french doors with julliette balcony to front, radiator, carpet flooring.
Bathroom: - 2.16m x 2.01m (7'01" x 6'07") - Double glazed window to rear, bath with shower over, inset sink with tiled splashback, low level W/C, chrome towel rail, fully tiled.
Parking: - Two allocated parking spaces under the building, with further visitor bays.
Shared Ownership & Leasehold Information: - Years remiaing on lease- 125 years
Rent on Remaing amount- £526.37 pcm
Block miscellaneous- £14.75 pcm
Buildings Insurance- £42.92 pcm
Management fee- £23.25 pcm
Grounds maintenance- £5.73 pcm
Sinking fund contribution- £28.84
Total- £641.86 pcm (inclusive of service charge)
100% share of this property is available at the price of £325,000.
Brochures
Regiment Gate, Springfield, Chelmsford- COUNCIL TAXA payment made to your local authority in order to pay for local services like schools, libraries, and refuse collection. The amount you pay depends on the value of the property.Read more about council Tax in our glossary page.
- Band: C
- PARKINGDetails of how and where vehicles can be parked, and any associated costs.Read more about parking in our glossary page.
- Yes
- GARDENA property has access to an outdoor space, which could be private or shared.
- Yes
- ACCESSIBILITYHow a property has been adapted to meet the needs of vulnerable or disabled individuals.Read more about accessibility in our glossary page.
- Ask agent
Regiment Gate, Springfield, Chelmsford
Add an important place to see how long it'd take to get there from our property listings.
__mins driving to your place
Get an instant, personalised result:
- Show sellers you’re serious
- Secure viewings faster with agents
- No impact on your credit score
Your mortgage
Notes
Staying secure when looking for property
Ensure you're up to date with our latest advice on how to avoid fraud or scams when looking for property online.
Visit our security centre to find out moreDisclaimer - Property reference 34213431. The information displayed about this property comprises a property advertisement. Rightmove.co.uk makes no warranty as to the accuracy or completeness of the advertisement or any linked or associated information, and Rightmove has no control over the content. This property advertisement does not constitute property particulars. The information is provided and maintained by Hamilton Piers, Chelmsford. Please contact the selling agent or developer directly to obtain any information which may be available under the terms of The Energy Performance of Buildings (Certificates and Inspections) (England and Wales) Regulations 2007 or the Home Report if in relation to a residential property in Scotland.
*This is the average speed from the provider with the fastest broadband package available at this postcode. The average speed displayed is based on the download speeds of at least 50% of customers at peak time (8pm to 10pm). Fibre/cable services at the postcode are subject to availability and may differ between properties within a postcode. Speeds can be affected by a range of technical and environmental factors. The speed at the property may be lower than that listed above. You can check the estimated speed and confirm availability to a property prior to purchasing on the broadband provider's website. Providers may increase charges. The information is provided and maintained by Decision Technologies Limited. **This is indicative only and based on a 2-person household with multiple devices and simultaneous usage. Broadband performance is affected by multiple factors including number of occupants and devices, simultaneous usage, router range etc. For more information speak to your broadband provider.
Map data ©OpenStreetMap contributors.





