
2 bedroom retirement property for sale
Lower Brook Street, Ipswich, Suffolk, IP4 1AL

- PROPERTY TYPE
Retirement Property
- BEDROOMS
2
- SIZE
Ask developer
Key features
- Located in one of the most desirable addresses in Ipswich
- Stylish communal areas and outdoor spaces
- Within walking distance of the town centre
- Selection of apartments and luxury town houses to choose from
- Exclusive gated community
- West facing
- Lifts to all floors
- Fire detection
- Intruder alarm
- Camera entry system
Description
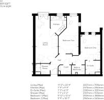
Apartment 22 is a beautiful two-bedroom apartment measuring 75 square metres, ideally located on the first floor and boasts a stunning Juliette balcony.
The spacious living room is decorated in a natural colour which gives a bright and airy feel, the fitted kitchen comes complete with integrated appliances, and your washer dryer is conveniently located in a separate utility cupboard.
The master bedroom benefits from an en-suite shower room and a walk in wardrobe fitted with hanging space and shelving units. The large second bedroom could be used as an ideal space for guests or quiet study room, the choice is yours.
Finally, the shower room is complete with a low profile shower tray and slip resistant flooring, a chrome towel radiator and a fitted mirror.
This fantastic apartment comes complete with fitted flooring throughout.
- £160,000/£367 pcm (50% example share/50% rent)
- £240,000 (75% example share/no rent)
- Other shares available
SAP Rating - up to 85
- COUNCIL TAXA payment made to your local authority in order to pay for local services like schools, libraries, and refuse collection. The amount you pay depends on the value of the property.Read more about council Tax in our glossary page.
- Band: TBC
- PARKINGDetails of how and where vehicles can be parked, and any associated costs.Read more about parking in our glossary page.
- Ask developer
- GARDENA property has access to an outdoor space, which could be private or shared.
- Yes
- ACCESSIBILITYHow a property has been adapted to meet the needs of vulnerable or disabled individuals.Read more about accessibility in our glossary page.
- Ask developer
Lower Brook Street, Ipswich, Suffolk, IP4 1AL
Add an important place to see how long it'd take to get there from our property listings.
__mins driving to your place
About McCarthy Stone
Over 60s retirement property for sale and Shared Ownership in Ipswich, Suffolk
Ipswich, one of the UK's most up-and-coming towns, is the location for the latest Retirement Living development by award-winning builders McCarthy Stone. The development, features 25 one-bedroom apartments and 25 two-bedroom apartments exclusively for those over 60s as well as 11 two-bedroom town houses. It is located in the heart of town, giving you easy access to all that Ipswich has to offer.
All 50 of McCarthy Stone's modern Retirement Living apartments come with a fully fitted kitchen including an oven, hob and hood, double-glazed windows and fire detection equipment. Residents will also be treated to extra luxuries such as a heated towel rail, integrated fridge freezer, and a Sky/Sky+ connection point. Selected apartments have walk-in wardrobes and en-suite bathrooms too.
Our 11 attractive townhouses include a fully fitted kitchen with an oven, hob and hood, double glazing for energy efficiency, and Sky connection points. Additional features such as having a separate shower room as well as the bathroom create a luxurious living space. Each property is fitted with fire detection equipment for your safety. The individual properties are designed to ensure privacy in the home, as well as encouraging a close-knit community feel.
Lower Brook Street is one of the most desirable addresses in Ipswich. You are within walking distance to both the central retail district and the lovely cafes and restaurants of Ipswich Waterfront. A Sainsbury's is 150m from your front door, as well as a Boots pharmacy and two doctor's surgeries. The train station and hospital are also just a short bus ride away, with the Old Cattle Market Bus Station just down the road.
Easy independent living for the over 60s
All our retirement property for sale and Shared Ownership in Ipswich is cleverly designed with smart yet stylish features, like easy turn taps, to make life easier now and in the future. Low maintenance, warm and elegant, with the latest security and safety features built in, most of our homeowners enjoy cheaper bills too.
Many of these retirement apartments have either private patios or balconies. All offer access to attractive communal spaces including the fabulous lounge with Wi-Fi and a state-of-the-art audio and video system plus a gorgeous garden area with seating. You’re looked after by the friendly on-site manager and these shared spaces are filled with (entirely optional) events, parties and clubs.
What’s more, you can book the hotel-style guest suite to effortlessly host visitors in style—you can also holiday in our network of guest suites! Parking is available and well-behaved pets are welcome too.
Local area
Over the past few years, Ipswich has become known for its shopping, transport and business opportunities. New developments such as the Waterfront entertainment district and the University Campus Suffolk have put Ipswich on the map and made it a popular destination to visit.
The main shopping area is around the pedestrianised streets of Northgate Street, Tavern Street and Carr Street, which will be less than five minutes walk from the new McCarthy Stone Retirement Living development. Here, you'll find all the large chain stores including Marks & Spencer. There are also two indoor shopping malls, the Buttermarket Centre and Tower Ramparts Shopping Centre. For eating out, the best restaurants are located around the waterfront, just at the end of your street. You'll find everything from traditional British pub food to cuisines from all around the world.
The properties at this development are a mix of freehold and leasehold properties with a term of 999 years from and including 17/11/2022.
Notes
Staying secure when looking for property
Ensure you're up to date with our latest advice on how to avoid fraud or scams when looking for property online.
Visit our security centre to find out moreDisclaimer - Property reference 2_Apartment 22. The information displayed about this property comprises a property advertisement. Rightmove.co.uk makes no warranty as to the accuracy or completeness of the advertisement or any linked or associated information, and Rightmove has no control over the content. This property advertisement does not constitute property particulars. The information is provided and maintained by McCarthy Stone. Please contact the selling agent or developer directly to obtain any information which may be available under the terms of The Energy Performance of Buildings (Certificates and Inspections) (England and Wales) Regulations 2007 or the Home Report if in relation to a residential property in Scotland.
*This is the average speed from the provider with the fastest broadband package available at this postcode. The average speed displayed is based on the download speeds of at least 50% of customers at peak time (8pm to 10pm). Fibre/cable services at the postcode are subject to availability and may differ between properties within a postcode. Speeds can be affected by a range of technical and environmental factors. The speed at the property may be lower than that listed above. You can check the estimated speed and confirm availability to a property prior to purchasing on the broadband provider's website. Providers may increase charges. The information is provided and maintained by Decision Technologies Limited. **This is indicative only and based on a 2-person household with multiple devices and simultaneous usage. Broadband performance is affected by multiple factors including number of occupants and devices, simultaneous usage, router range etc. For more information speak to your broadband provider.
Map data ©OpenStreetMap contributors.





