
Mahonia Close, West End, Woking, Surrey, GU24

- PROPERTY TYPE
Link Detached House
- BEDROOMS
3
- BATHROOMS
2
- SIZE
Ask agent
- TENUREDescribes how you own a property. There are different types of tenure - freehold, leasehold, and commonhold.Read more about tenure in our glossary page.
Freehold
Key features
- Three Bedrooms
- Two Reception Rooms
- Ensuite Shower Room
- Family Bathroom
- Modern Kitchen
- Downstairs Cloakroom
- Driveway
- Delightful Front And Rear Gardens
Description
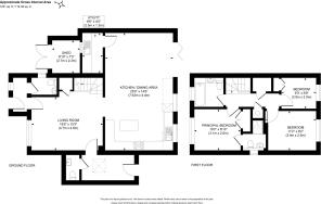
The property has been thoughtfully extended on the ground floor to create a truly impressive open plan kitchen/dining room, the heart of the home, featuring a stylish range of base and eye level units, luxurious stone worktops, a central island and plenty of space for both cooking and entertaining.
Further ground floor accommodation includes a welcoming lounge, a separate utility room, a downstairs cloakroom and a versatile additional reception room, currently used as a beauty room. This space benefits from its own private entrance and toilet, making it ideal for those running a business from home or in need of a dedicated office or guest suite.
Upstairs, you will find three well proportioned bedrooms, including a master bedroom with a sleek ensuite shower room and a contemporary family bathroom serving the remaining bedrooms.
Outside, the property boasts a private rear garden, perfect for outdoor entertaining, with a generous patio area and a neatly maintained lawn. To the front, there is a driveway providing off-road parking and access to storage in the front part of the garage.
This home is a rare find in such a sought-after location and is ideal for families looking for space, style, and convenience. Early viewing is highly recommended.
Location
West End village is conveniently located for access to Junction 3 of the M3 which in turn gives access to both Heathrow and Gatwick international airports. Education is well catered for with two excellent schools, the highly regarded Gordon’s School and Holy Trinity primary school. The Gosden Parade provides a good range of shops to include a news agents, hairdressers and coffee shop. Local dining is also excellent with the Inn At West End and the Hare & Hounds directly in the village whilst local Chobham village also offers several similar pub/restaurants. Brookwood station is approximately 2.3 miles with a regular direct service to Waterloo.
Brochures
Particulars- COUNCIL TAXA payment made to your local authority in order to pay for local services like schools, libraries, and refuse collection. The amount you pay depends on the value of the property.Read more about council Tax in our glossary page.
- Band: E
- PARKINGDetails of how and where vehicles can be parked, and any associated costs.Read more about parking in our glossary page.
- Garage,Driveway
- GARDENA property has access to an outdoor space, which could be private or shared.
- Yes
- ACCESSIBILITYHow a property has been adapted to meet the needs of vulnerable or disabled individuals.Read more about accessibility in our glossary page.
- Ask agent
Mahonia Close, West End, Woking, Surrey, GU24
Add an important place to see how long it'd take to get there from our property listings.
__mins driving to your place
Get an instant, personalised result:
- Show sellers you’re serious
- Secure viewings faster with agents
- No impact on your credit score
Your mortgage
Notes
Staying secure when looking for property
Ensure you're up to date with our latest advice on how to avoid fraud or scams when looking for property online.
Visit our security centre to find out moreDisclaimer - Property reference KNA160022. The information displayed about this property comprises a property advertisement. Rightmove.co.uk makes no warranty as to the accuracy or completeness of the advertisement or any linked or associated information, and Rightmove has no control over the content. This property advertisement does not constitute property particulars. The information is provided and maintained by Seymours Estate Agents, Knaphill. Please contact the selling agent or developer directly to obtain any information which may be available under the terms of The Energy Performance of Buildings (Certificates and Inspections) (England and Wales) Regulations 2007 or the Home Report if in relation to a residential property in Scotland.
*This is the average speed from the provider with the fastest broadband package available at this postcode. The average speed displayed is based on the download speeds of at least 50% of customers at peak time (8pm to 10pm). Fibre/cable services at the postcode are subject to availability and may differ between properties within a postcode. Speeds can be affected by a range of technical and environmental factors. The speed at the property may be lower than that listed above. You can check the estimated speed and confirm availability to a property prior to purchasing on the broadband provider's website. Providers may increase charges. The information is provided and maintained by Decision Technologies Limited. **This is indicative only and based on a 2-person household with multiple devices and simultaneous usage. Broadband performance is affected by multiple factors including number of occupants and devices, simultaneous usage, router range etc. For more information speak to your broadband provider.
Map data ©OpenStreetMap contributors.





