Cravan Avenue, Feltham, Middlesex, TW13

- PROPERTY TYPE
End of Terrace
- BEDROOMS
4
- BATHROOMS
1
- SIZE
Ask agent
- TENUREDescribes how you own a property. There are different types of tenure - freehold, leasehold, and commonhold.Read more about tenure in our glossary page.
Freehold
Key features
- IMMACULATELY PRESENTED
- EXTENDED TO SIDE
- DRIVEWAY PARKING
- BONUS BOARDED LOFT ROOM
- GARAGE & SUMMER HOUSE TO REAR
- GENEROUSLY SIZED GARDEN
Description
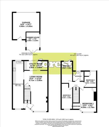
ENTRANCE DOOR: To;
HALLWAY: Stairs to first floor, doors to;
LIVING ROOM: 22 x 12.10 (6.71 x 3.91m), Wood laminate floor, double glazed window, radiator, electric fire, understairs storage cupboard, archway to;
KITCHEN: 25.11 x 6.1 (7.9 x 1.85m), Double glazed windows, radiator, range of base and eye level units, roll top laminated worksurfaces, one and a half bowl sink and drainer with mixer tap, integral dishwasher, electric oven and gas hob with extractor over, space for fridge/freezer, tiled splashback, tiled floor.
CONSERVATORY/UTILITY: 12.10 x 5.3 (3.91 x 1.6m), Double glazed sliding doors to garden, base and eye level units, laminated worksurfaces, space and plumbing for washing machine and further appliances, radiator.
FIRST FLOOR LANDING: Doors to;
BEDROOM 1: 13.3 x 9.2 (4.04 x 2.79m), Double glazed window, radiator, built in wardrobes.
BEDROOM 2: 13.11 x 6.1 (4.24 x 1.85m), Double glazed window, radiator.
BEDROOM 3: 8.9 x 6.8 (2.67 x 2.03m), Double glazed window, radiator, cupboard, loft hatch and ladder to boarded loft room.
BEDROOM 4: 11.10 x 6.1 (3.61 x 1.85m), Double glazed window, radiator.
BATHROOM: Double glazed frosted window, three-piece suite comprising of panel enclosed bath with mixer tap and shower over, low level W.C., vanity wash hand basin, towel rail, fully tiled.
OUTSIDE:
REAR GARDEN: Patio area leading to lawn, well maintained hedging, various shrubs and trees.
GARAGE: 14.8 x 14.7 (4.47 x 4.45m), Up and over door to rear access road.
SUMMER HOUSE: 9.6 x 7.5 (2.9 x 2.26m), UPVC double glazed window and double doors.
COUNCIL TAX BAND: C - £1854 p.a.
ENERGY PERFORMANCE CERTIFICATE RATING: C
TOTAL FLOOR AREA: 85 Sq. Mtrs.
STAMP DUTY PAYABLE: £19,250
£48,500 (If the purchase results in owning two or more properties).
VIEWING: By appointment through this office only on . We are open Monday to Friday 9.00am till 6.00pm and Saturday 9.00am till 4.00pm.
PROPERTY MISDESCRIPTIONS ACT: For clarification, we wish to inform prospective purchasers that we have not carried out a detailed survey, nor tested the services, appliances and specific fittings for this property. Your solicitor should check any rights of way or planning permission for any extensions which may have been carried out.
- COUNCIL TAXA payment made to your local authority in order to pay for local services like schools, libraries, and refuse collection. The amount you pay depends on the value of the property.Read more about council Tax in our glossary page.
- Band: C
- PARKINGDetails of how and where vehicles can be parked, and any associated costs.Read more about parking in our glossary page.
- Driveway
- GARDENA property has access to an outdoor space, which could be private or shared.
- Yes
- ACCESSIBILITYHow a property has been adapted to meet the needs of vulnerable or disabled individuals.Read more about accessibility in our glossary page.
- Ask agent
Cravan Avenue, Feltham, Middlesex, TW13
Add an important place to see how long it'd take to get there from our property listings.
__mins driving to your place
Get an instant, personalised result:
- Show sellers you’re serious
- Secure viewings faster with agents
- No impact on your credit score


Your mortgage
Notes
Staying secure when looking for property
Ensure you're up to date with our latest advice on how to avoid fraud or scams when looking for property online.
Visit our security centre to find out moreDisclaimer - Property reference Fel000ABA. The information displayed about this property comprises a property advertisement. Rightmove.co.uk makes no warranty as to the accuracy or completeness of the advertisement or any linked or associated information, and Rightmove has no control over the content. This property advertisement does not constitute property particulars. The information is provided and maintained by Forest Estate Agents, Feltham. Please contact the selling agent or developer directly to obtain any information which may be available under the terms of The Energy Performance of Buildings (Certificates and Inspections) (England and Wales) Regulations 2007 or the Home Report if in relation to a residential property in Scotland.
*This is the average speed from the provider with the fastest broadband package available at this postcode. The average speed displayed is based on the download speeds of at least 50% of customers at peak time (8pm to 10pm). Fibre/cable services at the postcode are subject to availability and may differ between properties within a postcode. Speeds can be affected by a range of technical and environmental factors. The speed at the property may be lower than that listed above. You can check the estimated speed and confirm availability to a property prior to purchasing on the broadband provider's website. Providers may increase charges. The information is provided and maintained by Decision Technologies Limited. **This is indicative only and based on a 2-person household with multiple devices and simultaneous usage. Broadband performance is affected by multiple factors including number of occupants and devices, simultaneous usage, router range etc. For more information speak to your broadband provider.
Map data ©OpenStreetMap contributors.




