
2 bedroom maisonette for sale
Longley Road, Harrow

- PROPERTY TYPE
Maisonette
- BEDROOMS
2
- BATHROOMS
1
- SIZE
Ask agent
Key features
- First Floor
- Close to Local Amenities
- Great Condition
- Long Lease
- Quiet Residential Road
- Close to Local Transport
Description
Step inside to discover a light-filled living space featuring large windows that flood the rooms with natural light, creating an inviting and airy atmosphere throughout. The living room provides ample space for both relaxing and entertaining, while the adjacent kitchen is fully equipped with modern appliances and plenty of storage, ideal for whipping up your favourite meals.
Both bedrooms are spacious doubles, each offering ample storage and versatile layouts to suit your needs. The bathroom is well-maintained and features contemporary fixtures and fittings.
Residents will benefit from the convenience of nearby transport links, including Harrow-on-the-Hill and Harrow & Wealdstone stations, providing excellent access to Central London and beyond. Local amenities such as shops, cafes, restaurants, and green spaces are all within easy reach, ensuring a vibrant and convenient lifestyle.
Additional benefits include:
Double glazing and gas central heating
Close proximity to Harrow’s excellent schools and leisure facilities
This fantastic maisonette offers an exceptional opportunity to live in one of Harrow’s most desirable neighbourhoods. Don’t miss out – book your viewing today and make this delightful property your new home!
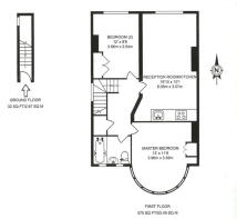
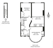
Hall
Fitted Carpet, Double Glazed Window, Light bulb
Bedroom
2.57 x 3.67
Fitted Carpet, Fitted Wardrobe, Light Bulb, Radiator, Double Glazed Windows.
Kitchen / Diner
3.08 x 6.01
Fitted Cabinets, Hand Wash Sink, Stove, Wooden Flooring, Light bulb, Double Glazed Windows, Radiator.
Bedroom Two
3.22 x 3.87
Double Glazed Windows, Radiator, Spotlight and Fitted Carpet.
Bathroom
Fitted Sink, Cabinets, Family Bath, Tiles, Double Glazed Windows, Radiator.
Utility Room
Boiler and Washing Machines
Disclaimer
haart Estate Agents also offer a professional, ARLA accredited Lettings and Management Service. If you are considering renting your property in order to purchase, are looking at buy to let or would like a free review of your current portfolio then please call the Lettings Branch Manager on the number shown above.
haart Estate Agents is the seller's agent for this property. Your conveyancer is legally responsible for ensuring any purchase agreement fully protects your position. We make detailed enquiries of the seller to ensure the information provided is as accurate as possible. Please inform us if you become aware of any information being inaccurate.
Brochures
Material InformationBrochure- COUNCIL TAXA payment made to your local authority in order to pay for local services like schools, libraries, and refuse collection. The amount you pay depends on the value of the property.Read more about council Tax in our glossary page.
- Band: C
- PARKINGDetails of how and where vehicles can be parked, and any associated costs.Read more about parking in our glossary page.
- Ask agent
- GARDENA property has access to an outdoor space, which could be private or shared.
- Ask agent
- ACCESSIBILITYHow a property has been adapted to meet the needs of vulnerable or disabled individuals.Read more about accessibility in our glossary page.
- Ask agent
Longley Road, Harrow
Add an important place to see how long it'd take to get there from our property listings.
__mins driving to your place
Get an instant, personalised result:
- Show sellers you’re serious
- Secure viewings faster with agents
- No impact on your credit score
Your mortgage
Notes
Staying secure when looking for property
Ensure you're up to date with our latest advice on how to avoid fraud or scams when looking for property online.
Visit our security centre to find out moreDisclaimer - Property reference 0169_HRT016911911. The information displayed about this property comprises a property advertisement. Rightmove.co.uk makes no warranty as to the accuracy or completeness of the advertisement or any linked or associated information, and Rightmove has no control over the content. This property advertisement does not constitute property particulars. The information is provided and maintained by haart, Harrow. Please contact the selling agent or developer directly to obtain any information which may be available under the terms of The Energy Performance of Buildings (Certificates and Inspections) (England and Wales) Regulations 2007 or the Home Report if in relation to a residential property in Scotland.
*This is the average speed from the provider with the fastest broadband package available at this postcode. The average speed displayed is based on the download speeds of at least 50% of customers at peak time (8pm to 10pm). Fibre/cable services at the postcode are subject to availability and may differ between properties within a postcode. Speeds can be affected by a range of technical and environmental factors. The speed at the property may be lower than that listed above. You can check the estimated speed and confirm availability to a property prior to purchasing on the broadband provider's website. Providers may increase charges. The information is provided and maintained by Decision Technologies Limited. **This is indicative only and based on a 2-person household with multiple devices and simultaneous usage. Broadband performance is affected by multiple factors including number of occupants and devices, simultaneous usage, router range etc. For more information speak to your broadband provider.
Map data ©OpenStreetMap contributors.






