West End, Minchinhampton, Stroud

- PROPERTY TYPE
Semi-Detached
- BEDROOMS
5
- BATHROOMS
2
- SIZE
3,777 sq ft
351 sq m
- TENUREDescribes how you own a property. There are different types of tenure - freehold, leasehold, and commonhold.Read more about tenure in our glossary page.
Freehold
Key features
- Grade II Listed Former Inn
- 4 Bedrooms plus Attic Room
- 22 Foot Sitting Room with Wood Burner
- Self-contained One Bedroom Coach House
- Over 3700 Sq Ft
- Pretty Rear Garden
- Full of Period Features
- Off Street Parking
- Moments from the High Street and all Amenities
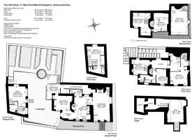
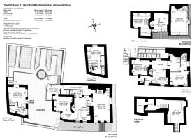
Description
Description - Believed to be the oldest remaining house in Minchinhampton, The Old Swan offers a magnificent Grade II Listed home, steeped in historic interest. Built in 1580, the property has been sympathetically converted and renovated to seamlessly combine period charm, with modern-day living.
The kitchen is clearly the heart of the home. Shaker-style units provide ample storage and there is room for a dining table, as well as breakfast bar seating, for more informal dining. A tiled floor allows for low-maintenance, easy-living. A utility and cloakroom lead off the rear of the kitchen, creating a useful space to hide-away the laundry. A separate dining room provides an ideal space for entertaining, with an adjoining garden room, perfect for a morning coffee or evening drinks. The sitting room is full of cosy corners, with a wood burning stove for the colder months. The original etched glass windows belonging to the pub, add real character and a sense of bygone days. A cellar runs beneath the whole of the ground floor, accessed via a hatch in the kitchen floor.
Two separate staircases lead to the first floor, where three bedrooms are located, one of which is currently used as a home office and with a further room above, ideal as a teenage suite or dressing room. The principal bedroom has a spacious en-suite shower room and pretty views along West End. A family bathroom is also located at this level. A fourth bedroom is located on the second floor, together with an attic room, accessed via a separate staircase. The attic room hosts a magnificent feature chimney breast and stunning painted beams and would make a spacious home office/music/play room; fitted with a sprung floor by the current owners, the attic room has previously been used as a dance studio.
A detached Coach House offers stylish, self-contained accommodation, comprising a light-filled sitting room, overlooking the garden, a fitted kitchen and first floor bedroom and bathroom. The Coach House was previously used as a granny annexe and more recently as a successful AirBnB with 95% occupancy.
The piece de resistance of this home however, is its garden. Landscaped by local designers, Graduate Gardeners, the garden offers a tranquil haven of beauty. Dry stone walling, topiary and well-stocked borders, create a classic English country garden. A gravel courtyard provides room for outside seating for alfresco entertaining and a kitchen garden is tucked-away to the rear of the plot.
Details of The Coach Hose on AirBnB -
Brochures
West End, Minchinhampton, Stroud- COUNCIL TAXA payment made to your local authority in order to pay for local services like schools, libraries, and refuse collection. The amount you pay depends on the value of the property.Read more about council Tax in our glossary page.
- Band: E
- PARKINGDetails of how and where vehicles can be parked, and any associated costs.Read more about parking in our glossary page.
- Yes
- GARDENA property has access to an outdoor space, which could be private or shared.
- Yes
- ACCESSIBILITYHow a property has been adapted to meet the needs of vulnerable or disabled individuals.Read more about accessibility in our glossary page.
- Ask agent
Energy performance certificate - ask agent
West End, Minchinhampton, Stroud
Add an important place to see how long it'd take to get there from our property listings.
__mins driving to your place
Get an instant, personalised result:
- Show sellers you’re serious
- Secure viewings faster with agents
- No impact on your credit score
Your mortgage
Notes
Staying secure when looking for property
Ensure you're up to date with our latest advice on how to avoid fraud or scams when looking for property online.
Visit our security centre to find out moreDisclaimer - Property reference 34214977. The information displayed about this property comprises a property advertisement. Rightmove.co.uk makes no warranty as to the accuracy or completeness of the advertisement or any linked or associated information, and Rightmove has no control over the content. This property advertisement does not constitute property particulars. The information is provided and maintained by Murrays Estate Agents, Minchinhampton. Please contact the selling agent or developer directly to obtain any information which may be available under the terms of The Energy Performance of Buildings (Certificates and Inspections) (England and Wales) Regulations 2007 or the Home Report if in relation to a residential property in Scotland.
*This is the average speed from the provider with the fastest broadband package available at this postcode. The average speed displayed is based on the download speeds of at least 50% of customers at peak time (8pm to 10pm). Fibre/cable services at the postcode are subject to availability and may differ between properties within a postcode. Speeds can be affected by a range of technical and environmental factors. The speed at the property may be lower than that listed above. You can check the estimated speed and confirm availability to a property prior to purchasing on the broadband provider's website. Providers may increase charges. The information is provided and maintained by Decision Technologies Limited. **This is indicative only and based on a 2-person household with multiple devices and simultaneous usage. Broadband performance is affected by multiple factors including number of occupants and devices, simultaneous usage, router range etc. For more information speak to your broadband provider.
Map data ©OpenStreetMap contributors.




