
Land for sale
Atherington
- PROPERTY TYPE
Land
- SIZE
Ask agent
Key features
- Grade II Baptist Church -
- Grade II Old School Room -
- both with consent to convert
- As whole
- Modest garden areas
- No Onward Chain
Description
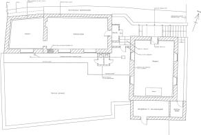
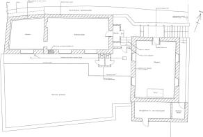
Set in the heart of the picturesque village of Atherington, on the edge of the Taw Valley, these two detached Grade II Listed stone buildings offer a rare opportunity for residential conversion, both benefiting from approved planning consent. The properties can be purchased together or individually.
The former Baptist Church measures approximately 29' x 20' internally, with an impressive 16' ceiling height, providing scope for a mezzanine floor if desired. A shared path leads past the Church to the Old School Room, which has an internal ground floor area of around 50' x 17' and a ceiling height of 14', again offering potential for a mezzanine. Between the two buildings lies a level, grassed former graveyard area, shaped in an 'L', which will be apportioned between the two units.
Both buildings have planning and Listed Building consent for residential use, granted by North Devon Council under application numbers 60960/1/2/3
Atherington is a charming, historic village centered around its ancient parish church and a small village square, home to a post office, local store, and hairdresser. Just over a mile south is High Bickington, offering a village school, local inns, and an 18-hole golf course. To the east, Umberleigh (approx. 1.5 miles) has another village school, a noted inn, and a train station on the Barnstaple–Exeter Sprinter line.
For wider access, South Molton is about 8 miles east with direct access to the A361/North Devon Link Road, while Barnstaple, around 8 miles north, serves as North Devon’s administrative and commercial hub, offering shopping, leisure facilities, and excellent road links. The dramatic North Devon coastline, with its sandy beaches, cliffs, and renowned golf courses at Saunton, Croyde, Putsborough, and Instow, lies just 5–8 miles to the west.
This is a unique chance to transform two historic buildings in a highly sought-after location, combining character, scale, and development potential in one of North Devon’s most charming villages.
Brochures
Atherington .pdfBrochureAtherington
NEAREST STATIONS
Distances are straight line measurements from the centre of the postcode- Umberleigh Station1.2 miles
- Chapleton Station1.9 miles
- Portsmouth Arms Station3.5 miles
Notes
Disclaimer - Property reference 34214992. The information displayed about this property comprises a property advertisement. Rightmove.co.uk makes no warranty as to the accuracy or completeness of the advertisement or any linked or associated information, and Rightmove has no control over the content. This property advertisement does not constitute property particulars. The information is provided and maintained by Phillips, Smith & Dunn, Bideford. Please contact the selling agent or developer directly to obtain any information which may be available under the terms of The Energy Performance of Buildings (Certificates and Inspections) (England and Wales) Regulations 2007 or the Home Report if in relation to a residential property in Scotland.
Map data ©OpenStreetMap contributors.








