2 bedroom flat for sale
Admirals Walk, West Cliff Road, Bournemouth, Dorset, BH2

- PROPERTY TYPE
Flat
- BEDROOMS
2
- SIZE
Ask agent
Key features
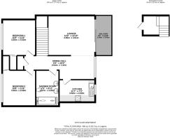
- Two Bedroom 8th Floor Apartment
- Porterage Service
- Sea Views
- Parking
- Balcony
- Buyers Fee Applies
- Auction Pack Available On Request
Description
Positioned on the 8th floor apartment offers great views across Sandbanks and the Purbecks. The apartment is spacious with a large reception area offering a large lounge and dining space, kitchen, two double bedrooms and a large modern shower room. The property also boasts a balcony with a spectacular view and comes with secured underground car parking.
We would highly recommend viewing this apartment.
Lease Information -
Share of freehold - 999 year lease from 2002
Service Charge - £5220 pa (paid quarterly), includes building insurance (£140)
Rental information -
Up until September 2025 the property was rented at £1300pcm.
This property is for sale via Online Auction;
This is a modern twist on the traditional auction room sale where buyers can bid for the property via an online platform. The winning bidder, assuming the reserve is met, is granted exclusivity of the property at the winning bid price for 28 days in which they must exchange, or the vendor reserves the right to remarket the property, and the reservation fee will not be returned, they will then have a further 28 days to complete. The auction will run for 3 hours on a set date and time chosen by the vendor of the property. Upon completion of a successful auction the winning bidder will be required to pay a non-refundable reservation fee of 3.6% inclusive of VAT of the winning bid in addition to the purchase price subject to a minimum fee of £5940 inclusive of VAT. The auction is powered and carried out by Whoobid and is subject to terms & conditions which will form part of the auction pack which will be available to download for free once produced by the vendors legal representatives. We strongly recommend that you review the legal documents prior to bidding and seek legal advice. PLEASE REMEMBER THAT THE RESERVATION FEES ARE PAYABLE IN ADDITION TO THE SALE PRICE.
Fees paid to the auctioneer may be considered as part of the chargeable consideration and may attract stamp duty liability. Bidders will be required to register in order to download the 'legal pack', if you choose to bid on the property, you will be required to complete further identity checks for anti-money laundering purposes, provide card and solicitors details before you are able to place a bid. Properties may be sold prior to public auction if an offer is accepted by the vendors.
**Guide price - This is an indication of the seller's minimum expectations at auction and is not necessarily the figure the property will achieve but acts as a guide, prices are subject to change prior to the auction.
**Reserve price - Most auctions will be subject to a reserve price, if this figure is not achieved during the auction then the property will not be sold. In normal circumstances the reserve price should be no more than 10% above the guide price.
Brochures
Auction Pack- COUNCIL TAXA payment made to your local authority in order to pay for local services like schools, libraries, and refuse collection. The amount you pay depends on the value of the property.Read more about council Tax in our glossary page.
- Ask agent
- PARKINGDetails of how and where vehicles can be parked, and any associated costs.Read more about parking in our glossary page.
- Yes
- GARDENA property has access to an outdoor space, which could be private or shared.
- Ask agent
- ACCESSIBILITYHow a property has been adapted to meet the needs of vulnerable or disabled individuals.Read more about accessibility in our glossary page.
- Ask agent
Admirals Walk, West Cliff Road, Bournemouth, Dorset, BH2
Add an important place to see how long it'd take to get there from our property listings.
__mins driving to your place
Get an instant, personalised result:
- Show sellers you’re serious
- Secure viewings faster with agents
- No impact on your credit score
Your mortgage
Notes
Staying secure when looking for property
Ensure you're up to date with our latest advice on how to avoid fraud or scams when looking for property online.
Visit our security centre to find out moreDisclaimer - Property reference 63AdmiralsWalk. The information displayed about this property comprises a property advertisement. Rightmove.co.uk makes no warranty as to the accuracy or completeness of the advertisement or any linked or associated information, and Rightmove has no control over the content. This property advertisement does not constitute property particulars. The information is provided and maintained by Whoobid, Dorset. Please contact the selling agent or developer directly to obtain any information which may be available under the terms of The Energy Performance of Buildings (Certificates and Inspections) (England and Wales) Regulations 2007 or the Home Report if in relation to a residential property in Scotland.
Auction Fees: The purchase of this property may include associated fees not listed here, as it is to be sold via auction. To find out more about the fees associated with this property please call Whoobid, Dorset on 01202 137200.
*Guide Price: An indication of a seller's minimum expectation at auction and given as a Guide Price or a range of Guide Prices. This is not necessarily the figure a property will sell for and is subject to change prior to the auction.
Reserve Price: Each auction property will be subject to a Reserve Price below which the property cannot be sold at auction. Normally the Reserve Price will be set within the range of Guide Prices or no more than 10% above a single Guide Price.
*This is the average speed from the provider with the fastest broadband package available at this postcode. The average speed displayed is based on the download speeds of at least 50% of customers at peak time (8pm to 10pm). Fibre/cable services at the postcode are subject to availability and may differ between properties within a postcode. Speeds can be affected by a range of technical and environmental factors. The speed at the property may be lower than that listed above. You can check the estimated speed and confirm availability to a property prior to purchasing on the broadband provider's website. Providers may increase charges. The information is provided and maintained by Decision Technologies Limited. **This is indicative only and based on a 2-person household with multiple devices and simultaneous usage. Broadband performance is affected by multiple factors including number of occupants and devices, simultaneous usage, router range etc. For more information speak to your broadband provider.
Map data ©OpenStreetMap contributors.




