
Greenhill Garage Plus Land At Rochdale Road, Bacup
- PROPERTY TYPE
Land
- SIZE
Ask agent
Key features
- TO BE SOLD BY ONLINE AUCTION
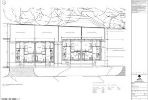
- Former planning consent (Ref: 2021/0452)
- Freehold Site With Garages, Land & Parking
- Strong Development Potential
- Attention Developers & Investors
Description
TO BE SOLD BY ONLINE AUCTION ON 22ND OCTOBER 2025 UNLESS SOLD PRIOR UNDER AUCTION TERMS
Land at Greenhill Garage, 109 Rochdale Road, Bacup, OL13 9NS
A freehold site comprising a garage premises with associated land and parking, prominently located on the A671 to the south of Bacup town centre.
Planning permission was granted in 2022 (Rossendale Borough Council Ref: 2021/0452) for the demolition of the existing buildings and the development of four semi-detached houses with gardens, parking, and access. We understand this consent has now lapsed, and all prospective purchasers must make their own enquiries regarding the planning status, site conditions, and any restrictions.
Offering strong potential, the site would suit residential redevelopment or a range of commercial uses, subject to obtaining the necessary consents. Making it an attractive opportunity for investors and developers alike.
Recent sales of semi-detached homes in the OL13 area range from £190,000–£210,000 per unit, with some achieving as high as £225,000, depending on size and finish. Based on this, the site could offer a Gross Development Value (GDV) in the region of £760,000–£840,000 (subject to planning, design, and market conditions).
This presents an excellent opportunity for developers seeking a site with scope for strong resale values and potential long-term rental demand.
Bacup is well-positioned within the Rossendale Valley with direct access via the A671 to Rochdale, Burnley, and Manchester. The area has strong demand for affordable housing and rental property, making it an attractive location for residential development and investment.
Greenhill Garage Plus Land At Rochdale Road, Bacup
NEAREST STATIONS
Distances are straight line measurements from the centre of the postcode- Walsden Station3.8 miles
- Todmorden Station4.2 miles
- Smithy Bridge Station5.7 miles
Notes
Disclaimer - Property reference EM-164211. The information displayed about this property comprises a property advertisement. Rightmove.co.uk makes no warranty as to the accuracy or completeness of the advertisement or any linked or associated information, and Rightmove has no control over the content. This property advertisement does not constitute property particulars. The information is provided and maintained by Edward Mellor Ltd, Auction. Please contact the selling agent or developer directly to obtain any information which may be available under the terms of The Energy Performance of Buildings (Certificates and Inspections) (England and Wales) Regulations 2007 or the Home Report if in relation to a residential property in Scotland.
Auction Fees: The purchase of this property may include associated fees not listed here, as it is to be sold via auction. To find out more about the fees associated with this property please call Edward Mellor Ltd, Auction on 0161 524 2443.
*Guide Price: An indication of a seller's minimum expectation at auction and given as a Guide Price or a range of Guide Prices. This is not necessarily the figure a property will sell for and is subject to change prior to the auction.
Reserve Price: Each auction property will be subject to a Reserve Price below which the property cannot be sold at auction. Normally the Reserve Price will be set within the range of Guide Prices or no more than 10% above a single Guide Price.
Map data ©OpenStreetMap contributors.