
Priesthorpe Road, Farsley, Pudsey

- PROPERTY TYPE
Terraced
- BEDROOMS
2
- BATHROOMS
1
- SIZE
Ask agent
- TENUREDescribes how you own a property. There are different types of tenure - freehold, leasehold, and commonhold.Read more about tenure in our glossary page.
Freehold
Key features
- Well presented two bedroom through terrace
- Lovely dual aspect living room
- Modern, open plan dining kitchen
- Two double bedrooms
- Modern shower room
- Good size rear garden, underhouse storage
- Sought after Farsley location
- Ideal first time buy, no onward chain
Description
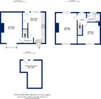
Benefitting from gas central heating with a new boiler fitted early 2025 and uPVC double glazing, the accommodation comprises in brief, to the ground floor; entrance hallway, a generous living room with box bay window and decorative fireplace with traditional tiled insets and hearth and a smart dining kitchen with a range of cream shaker-style fitted units with complementary splash back tiling, electric oven, gas hob, integrated fridge and freezer, slate tiled floor, understairs storage and sliding patio doors out to the rear.
To the first floor are two double bedrooms, each with stripped wood flooring, the principal bedroom being a superb size with window to both the front and rear elevations, stripped wood flooring and cast iron fire surround and a stylish, recently updated shower room with white suite to include WC, wash basin and double walk-in shower enclosure with rainfall shower, full wall tiling, attractive vinyl flooring and heated towel rail. Externally, the rear garden has been paved and pebbled for ease of maintenance and has access to a large under-house store room and there is a further cottage-style garden to the front of the property.
The ‘village’ of Farsley offers a range of amenities that centre around the bustling Farsley Town Street. Additional shopping facilities are found at the nearby Owlcotes Shopping Centre which provides both Asda and Marks & Spencer superstores. For those who commute or require transport links, New Pudsey Railway Station is located adjacent to the Owlcotes Shopping Centre and provides a direct route to both Leeds and Bradford City Centres, the Leeds Outer Ring Road offers access to other areas of the city.
ADDITIONAL INFORMATION
Tenure
Freehold
Disclaimer
Any information in relation to the length of lease, service charge, ground rent and council tax has been confirmed by our sellers. We would advise that any buyer make their own enquiries through their solicitors to verify that the information provided is accurate and not been subject to any change
Brochures
Particulars- COUNCIL TAXA payment made to your local authority in order to pay for local services like schools, libraries, and refuse collection. The amount you pay depends on the value of the property.Read more about council Tax in our glossary page.
- Band: B
- PARKINGDetails of how and where vehicles can be parked, and any associated costs.Read more about parking in our glossary page.
- Ask agent
- GARDENA property has access to an outdoor space, which could be private or shared.
- Yes
- ACCESSIBILITYHow a property has been adapted to meet the needs of vulnerable or disabled individuals.Read more about accessibility in our glossary page.
- Ask agent
Priesthorpe Road, Farsley, Pudsey
Add an important place to see how long it'd take to get there from our property listings.
__mins driving to your place
Get an instant, personalised result:
- Show sellers you’re serious
- Secure viewings faster with agents
- No impact on your credit score
Your mortgage
Notes
Staying secure when looking for property
Ensure you're up to date with our latest advice on how to avoid fraud or scams when looking for property online.
Visit our security centre to find out moreDisclaimer - Property reference PUD221002. The information displayed about this property comprises a property advertisement. Rightmove.co.uk makes no warranty as to the accuracy or completeness of the advertisement or any linked or associated information, and Rightmove has no control over the content. This property advertisement does not constitute property particulars. The information is provided and maintained by Manning Stainton, Pudsey. Please contact the selling agent or developer directly to obtain any information which may be available under the terms of The Energy Performance of Buildings (Certificates and Inspections) (England and Wales) Regulations 2007 or the Home Report if in relation to a residential property in Scotland.
*This is the average speed from the provider with the fastest broadband package available at this postcode. The average speed displayed is based on the download speeds of at least 50% of customers at peak time (8pm to 10pm). Fibre/cable services at the postcode are subject to availability and may differ between properties within a postcode. Speeds can be affected by a range of technical and environmental factors. The speed at the property may be lower than that listed above. You can check the estimated speed and confirm availability to a property prior to purchasing on the broadband provider's website. Providers may increase charges. The information is provided and maintained by Decision Technologies Limited. **This is indicative only and based on a 2-person household with multiple devices and simultaneous usage. Broadband performance is affected by multiple factors including number of occupants and devices, simultaneous usage, router range etc. For more information speak to your broadband provider.
Map data ©OpenStreetMap contributors.








