61 Jackson Street, Brotton, Saltburn-by-the-Sea

Letting details
- Let available date:
- Now
- Deposit:
- £0A deposit provides security for a landlord against damage, or unpaid rent by a tenant.Read more about deposit in our glossary page.
- Min. Tenancy:
- Ask agent How long the landlord offers to let the property for.Read more about tenancy length in our glossary page.
- Let type:
- Long term
- Furnish type:
- Unfurnished
- Council Tax:
- Ask agent
- PROPERTY TYPE
Terraced
- BEDROOMS
2
- BATHROOMS
1
- SIZE
Ask agent
Key features
- Wonderful Family Home
- Short Drive to Beautiful Coastline
- Close to Excellent Local Amenities
- Excellent Transport Links
- Close to Local Park
- Very Popular Location
- 24/7 Repair and Customer Service Helpline
- Quick Decision within 2 working day GUARANTEED
Description
A BEAUTIFUL TERRACED PROPERTY right in the heart of this charming, idyllic North Yorkshire village. Properties of this standard do not come on the market very often and viewings are a must.
Get in touch early to avoid disappointment.
So what do we have here?
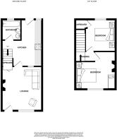
GROUND FLOOR
Upon entering this delightful freehold property, you are immediately welcomed into a bright and contemporary living room. This inviting space features a charming cast iron gas fireplace, offering a focal point and a source of warmth during cooler evenings. Practicality is also well-addressed, with a recently renewed electric fuse box ensuring modern safety standards. From the living room, there is effortless access into the adjoining dining area, creating a natural flow for both everyday living and entertaining.
Consistent with the rest of this meticulously maintained property, the living room also benefits from the comfort and style of newly fitted carpets and fresh, modern fittings, enhancing the overall appeal and ready-to-move-in feel of the home.Entering the Kitchen you have a range of mounted floor and wall base units, tiled floors, integrated electric oven and extractor hob, tiled splashbacks and access to both Bathroom and rear Courtyard.
The downstairs bathroom is a well-appointed space, featuring durable tiled flooring that is both practical and aesthetically pleasing. It includes a full-sized bath, perfect for relaxing soaks, complemented by an overhead shower for convenience. A powerful extractor fan ensures proper ventilation, maintaining a fresh and comfortable environment. The room is completed with a standard w/c and a functional sink unit, providing all the necessary amenities.
FIRST FLOOR
As you head upstairs you come to a large Master Bedroom containing a feature effect cast iron fireplace. The large windows allow for lots of natural light to flow through the upstairs rooms.
Next to the Master Bedroom is a second double Bedroom with captivating views towards Saltburn By The Sea (if you squint). This room also includes a convenient integrated storage cupboard housing a recently installed, fully serviced gas boiler.
PLEASE NOTE: uPVC DOUBLE GLAZED WINDOWS, CONVECTOR RADIATORS AND AMPLE ELECTRICAL POINTS ARE STAPLES THROUGHOUT THIS PROPERTY.
EXTERNALS
The spacious, private external yard has been stepped down in order to maximise use of the space.
On-street parking is readily available at the front of the property
The Area:
Brotton is a village in the civil parish of Skelton and is situated approximately 2.5 miles south-east of Saltburn-by-the-Sea, 9 miles from Redcar, 12 miles east of Middlesbrough and 14 miles north-west of Whitby.
Jackson Street is situated close to a range of excellent local amenities such as shops, pubs, takeaways and Post Office.
Versatile as the property is, this would make a great home for a small family and the nearby Badger Hill Primary Academy has a great reputation within the area, achieving a Good Ofsted rating.
Please note a security deposit equivalent to 1 months rent (£550) and a suitable Guarantor is required when letting this property.
Situated on the cusp of Brotton on a very quiet and peaceful residential street, this property boasts convenient access to neighbouring villages and larger towns, thanks to its close proximity to the A174 and Skelton Road. For those who love the coast, the beautiful North East Coast is just a short 5-minute drive away. Golf enthusiasts will appreciate being close to the wonderful Hunley Hotel & Golf Club, while essential amenities include East Cleveland Hospital, situated within walking distance. All of this is set on a very quiet and peaceful residential street, on the cusp of Brotton.
EweMove Estate Agents are a multi award winning agency who offer flexible viewing appointments including evenings & weekends! You can call, text, WhatsApp message or email us to secure your booking, get in touch today!
Living Room
4m x 3.71m - 13'1" x 12'2"
Kitchen
4.34m x 3.65m - 14'3" x 11'12"
Bathroom
2m x 1.55m - 6'7" x 5'1"
Bedroom 1
3.23m x 3.17m - 10'7" x 10'5"
Bedroom 2
2.9m x 2.82m - 9'6" x 9'3"
Exterior
Landing
- COUNCIL TAXA payment made to your local authority in order to pay for local services like schools, libraries, and refuse collection. The amount you pay depends on the value of the property.Read more about council Tax in our glossary page.
- Band: A
- PARKINGDetails of how and where vehicles can be parked, and any associated costs.Read more about parking in our glossary page.
- Ask agent
- GARDENA property has access to an outdoor space, which could be private or shared.
- Yes
- ACCESSIBILITYHow a property has been adapted to meet the needs of vulnerable or disabled individuals.Read more about accessibility in our glossary page.
- Ask agent
61 Jackson Street, Brotton, Saltburn-by-the-Sea
Add an important place to see how long it'd take to get there from our property listings.
__mins driving to your place
Notes
Staying secure when looking for property
Ensure you're up to date with our latest advice on how to avoid fraud or scams when looking for property online.
Visit our security centre to find out moreDisclaimer - Property reference 10403035. The information displayed about this property comprises a property advertisement. Rightmove.co.uk makes no warranty as to the accuracy or completeness of the advertisement or any linked or associated information, and Rightmove has no control over the content. This property advertisement does not constitute property particulars. The information is provided and maintained by EweMove, Covering North East England. Please contact the selling agent or developer directly to obtain any information which may be available under the terms of The Energy Performance of Buildings (Certificates and Inspections) (England and Wales) Regulations 2007 or the Home Report if in relation to a residential property in Scotland.
*This is the average speed from the provider with the fastest broadband package available at this postcode. The average speed displayed is based on the download speeds of at least 50% of customers at peak time (8pm to 10pm). Fibre/cable services at the postcode are subject to availability and may differ between properties within a postcode. Speeds can be affected by a range of technical and environmental factors. The speed at the property may be lower than that listed above. You can check the estimated speed and confirm availability to a property prior to purchasing on the broadband provider's website. Providers may increase charges. The information is provided and maintained by Decision Technologies Limited. **This is indicative only and based on a 2-person household with multiple devices and simultaneous usage. Broadband performance is affected by multiple factors including number of occupants and devices, simultaneous usage, router range etc. For more information speak to your broadband provider.
Map data ©OpenStreetMap contributors.





