Hod View, Stourpaine, Blandford Forum

- PROPERTY TYPE
Detached
- BEDROOMS
3
- BATHROOMS
2
- SIZE
Ask agent
- TENUREDescribes how you own a property. There are different types of tenure - freehold, leasehold, and commonhold.Read more about tenure in our glossary page.
Freehold
Key features
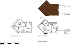
- En-suite shower room to principal bedroom and generous entrance hall with ground floor cloakroom
- Bright dual-aspect reception room with double patio doors
- Large kitchen-diner with custom-fitted units and garden access
- Underfloor heating throughout
- Samsung air source heat pump
- Landscaped gardens and large stone patio
- Driveway parking for two vehicles
- 10-year ICW warranty
Description
SUMMARY
Hod View is a beautifully appointed, BRAND NEW three-bedroom detached home located in the sought-after village of Stourpaine. This thoughtfully designed property offers modern comfort with charming village surroundings, underpinned by high-end features and energy-efficient systems.
DESCRIPTION
Completion of this stunning home set for Summer '25.
On arrival to the property, the ground floor opens into a generous entrance hall, giving access to all principal rooms and a stylish cloakroom fitted with a white suite, vanity hand basin, and feature tiling. The reception room is a bright, dual-aspect space with a front-facing window, with patio doors opening onto a large stone terrace - perfect for indoor-outdoor living.
The kitchen-diner is both stylish and functional, with a fully fitted kitchen, bespoke cabinetry, and a large front-facing window. French doors lead directly to the rear garden, ideal for entertaining.
Upstairs, the main bedroom benefits from fitted wardrobes and a luxury en-suite featuring a large walk-in shower with statement tiling, a concealed WC, and a modern vanity basin. Two further double bedrooms both offer built-in wardrobes and are served by a sleek family bathroom with a paneled bath, shower mixer attachment, and complementary fittings.
Energy-efficient systems, such as the Samsung air source heat pump, which heats the Joules hot water tank and under floor heating through out, make this home not only economical to run but also will appeal to those homeowners seeking sustainability.
Outside
The garden is attractively landscaped with established planting and a generous stone patio, perfect for al fresco dining. The property includes driveway parking for two cars and is fitted with a Samsung air source heat pump for efficient, low-carbon heating.
This exceptional home offers peaceful village living with easy access to nearby amenities in Blandford Forum and beautiful countryside walks. A must-see for those seeking a blend of modern living and rural charm.
Directions
Leave Connells Offices and head northeast on B 3082 / Salisbury Street, keep left to stay on B3082 / Whitecliff Mill Street after about 400m turn left onto A350, travel for approximately 3 miles through the traffic lights and then a further 1 miles turning right on to Hod View, the property is located on the left 150m. Hod View, Stourpaine, Blandford Forum, DT11 8TN.
Please Note
Please note that images used may be computer generated and/or from a show-home by the developer and are meant for guidance only. Images are general of the development and may not relate to your chosen Plot - clarification should be sought from our sales team.
DIRECTIONS
Leave Connells Offices and head northeast on B 3082 / Salisbury Street, keep left to stay on B3082 / Whitecliff Mill Street after about 400m turn left onto A350, travel for approximately 3 miles through the traffic lights and then a further 1 miles turning right on to Hod View, the property is located on the left 150m. Hod View, Stourpaine, Blandford Forum, DT11 8TN.
1. MONEY LAUNDERING REGULATIONS - Intending purchasers will be asked to produce identification documentation at a later stage and we would ask for your co-operation in order that there will be no delay in agreeing the sale.
2: These particulars do not constitute part or all of an offer or contract.
3: The measurements indicated are supplied for guidance only and as such must be considered incorrect.
4: Potential buyers are advised to recheck the measurements before committing to any expense.
5: Connells has not tested any apparatus, equipment, fixtures, fittings or services and it is the buyers interests to check the working condition of any appliances.
6: Connells has not sought to verify the legal title of the property and the buyers must obtain verification from their solicitor.
Brochures
PDF Property ParticularsFull Details- COUNCIL TAXA payment made to your local authority in order to pay for local services like schools, libraries, and refuse collection. The amount you pay depends on the value of the property.Read more about council Tax in our glossary page.
- Band: TBC
- PARKINGDetails of how and where vehicles can be parked, and any associated costs.Read more about parking in our glossary page.
- Yes
- GARDENA property has access to an outdoor space, which could be private or shared.
- Back garden
- ACCESSIBILITYHow a property has been adapted to meet the needs of vulnerable or disabled individuals.Read more about accessibility in our glossary page.
- Ask agent
Energy performance certificate - ask agent
Hod View, Stourpaine, Blandford Forum
Add an important place to see how long it'd take to get there from our property listings.
__mins driving to your place
Get an instant, personalised result:
- Show sellers you’re serious
- Secure viewings faster with agents
- No impact on your credit score



Your mortgage
Notes
Staying secure when looking for property
Ensure you're up to date with our latest advice on how to avoid fraud or scams when looking for property online.
Visit our security centre to find out moreDisclaimer - Property reference BLF306389. The information displayed about this property comprises a property advertisement. Rightmove.co.uk makes no warranty as to the accuracy or completeness of the advertisement or any linked or associated information, and Rightmove has no control over the content. This property advertisement does not constitute property particulars. The information is provided and maintained by Connells, Blandford Forum. Please contact the selling agent or developer directly to obtain any information which may be available under the terms of The Energy Performance of Buildings (Certificates and Inspections) (England and Wales) Regulations 2007 or the Home Report if in relation to a residential property in Scotland.
*This is the average speed from the provider with the fastest broadband package available at this postcode. The average speed displayed is based on the download speeds of at least 50% of customers at peak time (8pm to 10pm). Fibre/cable services at the postcode are subject to availability and may differ between properties within a postcode. Speeds can be affected by a range of technical and environmental factors. The speed at the property may be lower than that listed above. You can check the estimated speed and confirm availability to a property prior to purchasing on the broadband provider's website. Providers may increase charges. The information is provided and maintained by Decision Technologies Limited. **This is indicative only and based on a 2-person household with multiple devices and simultaneous usage. Broadband performance is affected by multiple factors including number of occupants and devices, simultaneous usage, router range etc. For more information speak to your broadband provider.
Map data ©OpenStreetMap contributors.