
Marlborough Street, Dunkirk, Nottingham, NG7

Letting details
- Let available date:
- 05/09/2026
- Deposit:
- £2,700A deposit provides security for a landlord against damage, or unpaid rent by a tenant.Read more about deposit in our glossary page.
- Min. Tenancy:
- Ask agent How long the landlord offers to let the property for.Read more about tenancy length in our glossary page.
- Furnish type:
- Furnished
- Council Tax:
- Ask agent
- PROPERTY TYPE
Semi-Detached
- BEDROOMS
6
- BATHROOMS
2
- SIZE
Ask agent
Key features
- Recently Renovated
- Driveway
- Large Rear Garden
- Close To QMC
- Double Bedrooms
- Two Bathrooms
- Separate W.C
- EPC rating C
Description
Recently renovated to the highest standard with additional measures to boost energy performance and efficiency, this modern 6-bed student house not only looks great but also helps reduce running costs. Features include upgraded insulation, double glazing, low-energy LED lighting, and modern energy-efficient appliances, as well as an on-site electric car charging point.
Located in an ideal spot for students at QMC, University Park, and Jubilee Campus, the property also benefits from the following;
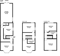
The advertised property has 6 double bedrooms in total, 2 shower rooms located on the 1st and 2nd floors respectively and a separate, guest w.c to the ground floor. There is a modern, luxury style open plan living and kitchen area to the rear ground floor, which extends and opens on to a large patio and garden area.
There are a number of excellent transport links just a short walk from the property, including Beeston Road Bus stop and Tram stops (QM07 & UN06), which provide quick and direct access to and from Nottingham city Centre, Beeston Town Centre and other popular local areas.
Recently renovated to the highest possible standard throughout, the property benefits from the following key features;
• 6 Double Bedrooms, complete with modern furnishings, including; Smart TV, Bed-frame and mattress, wardrobe with chest of drawers beneath, bedside table, desk and study chair
• 2 Luxury shower rooms with heated towel rail, large shower cubicle with matt black fittings, wash-hand basin, w.c.
• Separate, guest w.c located the ground floor
• All rooms have their own wall mounted television
• New carpets and modern lighting throughout
• Modern, spacious kitchen fitted with two fridge freezers, dishwasher, washer dryer and microwave oven.
• Open plan lounge area, with coffee table, wall mounted tv and corner sofa
• Landscaped garden, bespoke in design with large patio seating area, pergola, artificial lawn, and path providing access to a bike storage area
• Off Street Parking for multiple vehicles.
• Electric car charging point installed
Tenancy Dates - 05/09/2026 to [04/06/2027]
Deposit: £350pp
Rent pppw: £144.00pppw Inc. ALL BILLS!
EPC Rating - C
Contact us today if you would like to obtain further information and would like to view the property!
EPC rating: C.
- COUNCIL TAXA payment made to your local authority in order to pay for local services like schools, libraries, and refuse collection. The amount you pay depends on the value of the property.Read more about council Tax in our glossary page.
- Band: A
- PARKINGDetails of how and where vehicles can be parked, and any associated costs.Read more about parking in our glossary page.
- Driveway
- GARDENA property has access to an outdoor space, which could be private or shared.
- Private garden
- ACCESSIBILITYHow a property has been adapted to meet the needs of vulnerable or disabled individuals.Read more about accessibility in our glossary page.
- Ask agent
Marlborough Street, Dunkirk, Nottingham, NG7
Add an important place to see how long it'd take to get there from our property listings.
__mins driving to your place
Notes
Staying secure when looking for property
Ensure you're up to date with our latest advice on how to avoid fraud or scams when looking for property online.
Visit our security centre to find out moreDisclaimer - Property reference P3264. The information displayed about this property comprises a property advertisement. Rightmove.co.uk makes no warranty as to the accuracy or completeness of the advertisement or any linked or associated information, and Rightmove has no control over the content. This property advertisement does not constitute property particulars. The information is provided and maintained by Nicholas Humphreys, Nottingham. Please contact the selling agent or developer directly to obtain any information which may be available under the terms of The Energy Performance of Buildings (Certificates and Inspections) (England and Wales) Regulations 2007 or the Home Report if in relation to a residential property in Scotland.
*This is the average speed from the provider with the fastest broadband package available at this postcode. The average speed displayed is based on the download speeds of at least 50% of customers at peak time (8pm to 10pm). Fibre/cable services at the postcode are subject to availability and may differ between properties within a postcode. Speeds can be affected by a range of technical and environmental factors. The speed at the property may be lower than that listed above. You can check the estimated speed and confirm availability to a property prior to purchasing on the broadband provider's website. Providers may increase charges. The information is provided and maintained by Decision Technologies Limited. **This is indicative only and based on a 2-person household with multiple devices and simultaneous usage. Broadband performance is affected by multiple factors including number of occupants and devices, simultaneous usage, router range etc. For more information speak to your broadband provider.
Map data ©OpenStreetMap contributors.





