Bluebell Road

Letting details
- Let available date:
- 04/09/2026
- Deposit:
- Ask agentA deposit provides security for a landlord against damage, or unpaid rent by a tenant.Read more about deposit in our glossary page.
- Min. Tenancy:
- Ask agent How long the landlord offers to let the property for.Read more about tenancy length in our glossary page.
- Furnish type:
- Ask agent
- Council Tax:
- Ask agent
- PROPERTY TYPE
Semi-Detached
- BEDROOMS
5
- BATHROOMS
4
- SIZE
Ask agent
Key features
- 5 Bedrooms, 3 En-suite
- large communal kitchen and dining area
- Fully insulated, and central heated.
Description
We are delighted to offer this modern, new build student house, with 5 bedrooms, large communal kitchen and dining area, 3 en-suite rooms. Fully insulated, and central heated.
All bills are included in the rent.
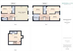
HOUSE
Entrance hall - With space for shoes and coats
Kitchen/dining area:
Oven, hob, extractor hood
Washer/Dryer, sink, fridge and freezer
Plenty of cupboard space and work surfaces
Table and chairs
Patio doors to garden
Downstairs toilet
Bathroom - with cubical shower, basin, toilet, and towel rail
5 Double Bedrooms
3 en-suite bedrooms
1 bedroom on ground floor, 3 bedrooms on 1st floor and 1 loft bedroom
All bedroom have a double bed, wardrobe, chest of draws and desk and chair
Bedrooms are carpeted
Garden
AREA
On Bluebell Road and across the street from the University of East Anglia
10 minute walk from Tesco express
YOUR NEXT STEPS
Please contact us to arrange a viewing
(86a/5/V) EPC B
- COUNCIL TAXA payment made to your local authority in order to pay for local services like schools, libraries, and refuse collection. The amount you pay depends on the value of the property.Read more about council Tax in our glossary page.
- Ask agent
- PARKINGDetails of how and where vehicles can be parked, and any associated costs.Read more about parking in our glossary page.
- Ask agent
- GARDENA property has access to an outdoor space, which could be private or shared.
- Yes
- ACCESSIBILITYHow a property has been adapted to meet the needs of vulnerable or disabled individuals.Read more about accessibility in our glossary page.
- Ask agent
Energy performance certificate - ask agent
Bluebell Road
Add an important place to see how long it'd take to get there from our property listings.
__mins driving to your place
Notes
Staying secure when looking for property
Ensure you're up to date with our latest advice on how to avoid fraud or scams when looking for property online.
Visit our security centre to find out moreDisclaimer - Property reference 30807. The information displayed about this property comprises a property advertisement. Rightmove.co.uk makes no warranty as to the accuracy or completeness of the advertisement or any linked or associated information, and Rightmove has no control over the content. This property advertisement does not constitute property particulars. The information is provided and maintained by Jones & Co, Norwich. Please contact the selling agent or developer directly to obtain any information which may be available under the terms of The Energy Performance of Buildings (Certificates and Inspections) (England and Wales) Regulations 2007 or the Home Report if in relation to a residential property in Scotland.
*This is the average speed from the provider with the fastest broadband package available at this postcode. The average speed displayed is based on the download speeds of at least 50% of customers at peak time (8pm to 10pm). Fibre/cable services at the postcode are subject to availability and may differ between properties within a postcode. Speeds can be affected by a range of technical and environmental factors. The speed at the property may be lower than that listed above. You can check the estimated speed and confirm availability to a property prior to purchasing on the broadband provider's website. Providers may increase charges. The information is provided and maintained by Decision Technologies Limited. **This is indicative only and based on a 2-person household with multiple devices and simultaneous usage. Broadband performance is affected by multiple factors including number of occupants and devices, simultaneous usage, router range etc. For more information speak to your broadband provider.
Map data ©OpenStreetMap contributors.





