
97(A) St. Peters Street, St. Albans, AL1 3EN

- PROPERTY TYPE
Maisonette
- BEDROOMS
5
- SIZE
Ask agent
Description
London Leasehold Upper Part Arranged as Three Flats Vacant Possession
Situated on St Peter's Street, close to the amenities available in St Albans City Centre and travelling facilities including St Albans City and St Albans Abbey Train Stations. Verulamium Park is also nearby.
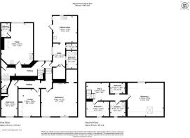
A Self-Contained Upper Part requiring modernisation with spacious accommodation arranged as Three Flatsover Two Floors comprising:
Second Floor
Flat 3
Living Room
Kitchen
Bedroom
Bathroom/WC
First Floor
Flat 1
Entrance Hall
Living Room
Bedroom (One)
Bedroom (Two)
Kitchen/Diner
Bathroom
Separate WC
Utility Area
Flat 2
Studio Room/Kitchen
Bathroom/WC
Leasehold. A new 999 year lease will be granted at a peppercorn ground rent.
Tenancy
Vacant Possession
EPC Rating
E
Council Tax Band
C
*Guides are provided as an indication of each seller's minimum expectation. They are not necessarily figures which a property will sell for and may change at any time prior to the auction. Each property will be offered subject to a Reserve (a figure below which the Auctioneer cannot sell the property during the auction) which we expect will be set within the Guide Range or no more than 10% above a single figure Guide. Guide prices will be continually updated on our website up until the day of the auction.
There is a buyers fee payable to McHugh & Co of £1,200 incl. VAT for lots sold over £10,000. Lots sold for less than £10,000 a buyers fee of £300 incl. VAT is to be paid to McHugh & Co.
The seller may charge additional fees payable upon completion. If applicable, such fees are detailed within the special conditions of sale available in the legal documentation. Buyers are deemed to bid in full knowledge of this.
Brochures
Online Bidding- COUNCIL TAXA payment made to your local authority in order to pay for local services like schools, libraries, and refuse collection. The amount you pay depends on the value of the property.Read more about council Tax in our glossary page.
- Band: C
- PARKINGDetails of how and where vehicles can be parked, and any associated costs.Read more about parking in our glossary page.
- Ask agent
- GARDENA property has access to an outdoor space, which could be private or shared.
- Ask agent
- ACCESSIBILITYHow a property has been adapted to meet the needs of vulnerable or disabled individuals.Read more about accessibility in our glossary page.
- Ask agent
Energy performance certificate - ask agent
97(A) St. Peters Street, St. Albans, AL1 3EN
Add an important place to see how long it'd take to get there from our property listings.
__mins driving to your place
Get an instant, personalised result:
- Show sellers you’re serious
- Secure viewings faster with agents
- No impact on your credit score
Your mortgage
Notes
Staying secure when looking for property
Ensure you're up to date with our latest advice on how to avoid fraud or scams when looking for property online.
Visit our security centre to find out moreDisclaimer - Property reference 312051. The information displayed about this property comprises a property advertisement. Rightmove.co.uk makes no warranty as to the accuracy or completeness of the advertisement or any linked or associated information, and Rightmove has no control over the content. This property advertisement does not constitute property particulars. The information is provided and maintained by McHugh & Co, London. Please contact the selling agent or developer directly to obtain any information which may be available under the terms of The Energy Performance of Buildings (Certificates and Inspections) (England and Wales) Regulations 2007 or the Home Report if in relation to a residential property in Scotland.
Auction Fees: The purchase of this property may include associated fees not listed here, as it is to be sold via auction. To find out more about the fees associated with this property please call McHugh & Co, London on 020 3907 9877.
*Guide Price: An indication of a seller's minimum expectation at auction and given as a Guide Price or a range of Guide Prices. This is not necessarily the figure a property will sell for and is subject to change prior to the auction.
Reserve Price: Each auction property will be subject to a Reserve Price below which the property cannot be sold at auction. Normally the Reserve Price will be set within the range of Guide Prices or no more than 10% above a single Guide Price.
*This is the average speed from the provider with the fastest broadband package available at this postcode. The average speed displayed is based on the download speeds of at least 50% of customers at peak time (8pm to 10pm). Fibre/cable services at the postcode are subject to availability and may differ between properties within a postcode. Speeds can be affected by a range of technical and environmental factors. The speed at the property may be lower than that listed above. You can check the estimated speed and confirm availability to a property prior to purchasing on the broadband provider's website. Providers may increase charges. The information is provided and maintained by Decision Technologies Limited. **This is indicative only and based on a 2-person household with multiple devices and simultaneous usage. Broadband performance is affected by multiple factors including number of occupants and devices, simultaneous usage, router range etc. For more information speak to your broadband provider.
Map data ©OpenStreetMap contributors.